E & G IMMOBILIEN > Gewerbeimmobilien > Helle Bürofläche direkt auf der Königstraße
Titelbild
Büro
Besprechung
Empfang
Treppenhaus
Küche
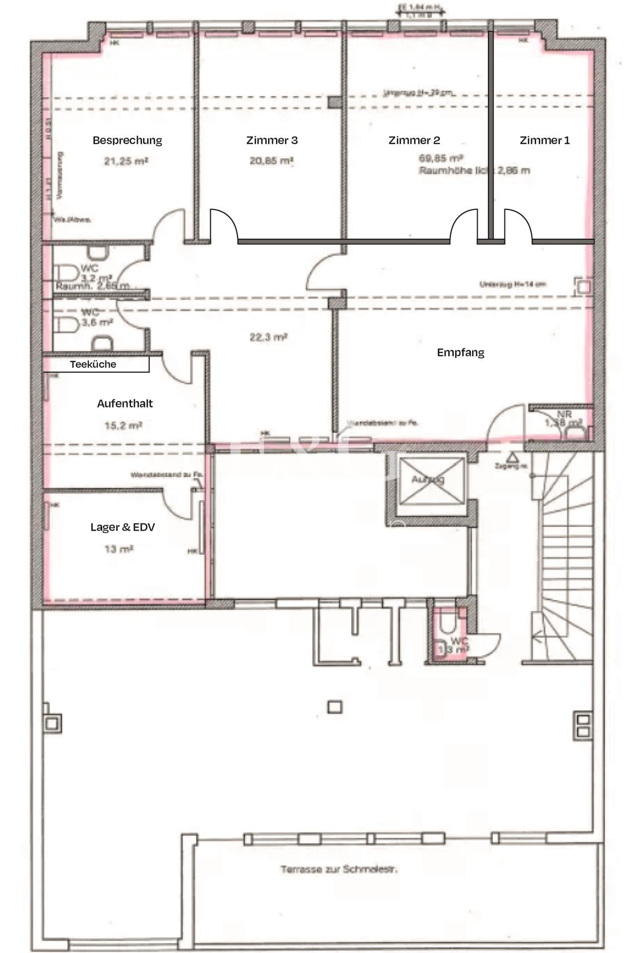
4. OG
Büro
Titelbild
Büro
Besprechung
Empfang
Treppenhaus
Küche
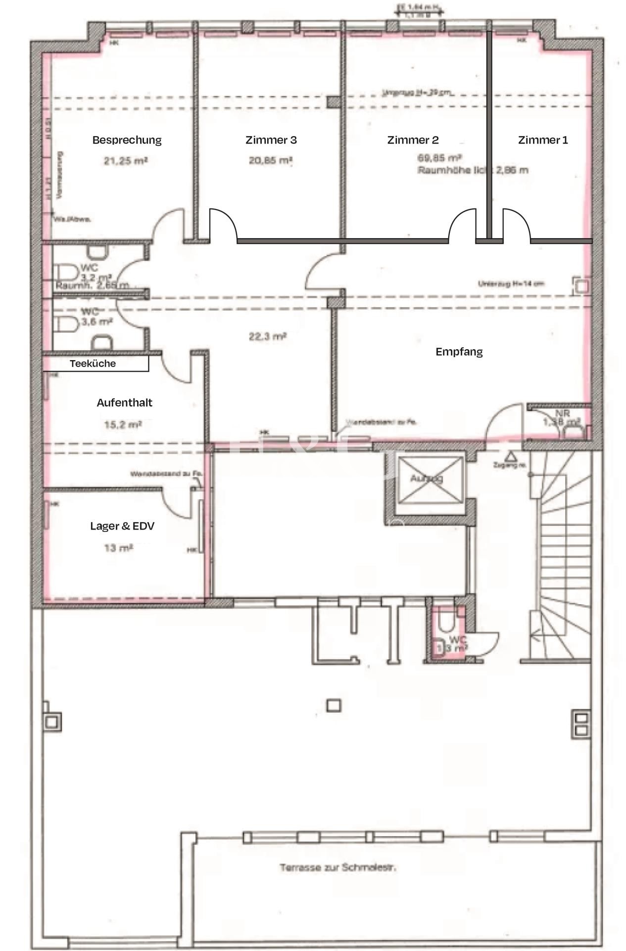
4. OG
Büro

Helle Bürofläche direkt auf der Königstraße

Stuttgart

14,20
Miete € pro m²
170
Fläche teilbar ab (m²)

Die 170 m² große Bürofläche befindet sich im zentral auf der Königstraße. Das Gebäude wurde 1950 erbaut und Anfang der 200er Jahre umfassend saniert. Die Büroeinheit ist zur Königstraße ausgerichtet und wird zur anderen Seite durch einen Lichthof mit ausreichend Tageslicht versorgt. Die Räumlichkeiten sind zeitgemäß ausgestattet mit einem pflegeleichten Teppichboden, einer CAT-7 Verkabelung über Brüstungskanäle sowie einer Teeküche und getrennten Sanitäranlagen. Eine teilweise Übernahme der vorhandenen Möblierung (Empfangstheke, Schreibtische, Stühle, Schränke) ist nach Absprache möglich. Im Objekt aktuell verfügbare Flächen: 4. OG - 170 m²


Eckdaten

OBJEKTTYP
Büro/Praxis
ORT
Stuttgart
BÜRO- /PRAXIS­FLÄCHE IN M²
170
FLÄCHE TEILBAR AB (M²)
170
BAUJAHR
1950
PROVISION
provisionsfrei
OBJEKTNUMMER
EuG10152

LAGEKRITERIEN

ENTFERNUNG NÄCHSTER HAUPTBAHNHOF
1.5 KM
ENTFERNUNG NÄCHSTE AUTOBAHN
14 KM
ENTFERNUNG ZUM ZENTRUM
0.2 KM
ENTFERNUNG NÄCHSTER FLUGHAFEN
14.3 KM
Ausstattung / Objektdetails
  • Teppichboden
  • Personenaufzug
  • Teeküche
  • Außenliegender Sonnenschutz
  • CAT7-Verkabelung über Brüstungskanäle
  • Getrennte Sanitärbereiche
Bitte lassen Sie Cookies zu,
um eine Karte von Google Maps anzuzeigen.

Kontakt

SPRECHEN SIE UNS AN!

Das könnte Sie auch interessieren

Finden Sie die individuelle Immobilie
Einfach, schnell und diskret in der Direktsuche


© 2026 - E & G Real Estate GmbH