T
+49 711 20702-700
E
gewerbe@eug.de
DE
|
EN
Wohnen
Gewerbe
Immobilien
Industrie & Logistik
Büro & Praxis
Service
Bürovermietung
Industrie & Logistik
Investment
Research
Einzelhandelsvermietung
Suchauftrag
Research
Büromarkt Stuttgart
Investmentmarkt Süddeutschland
Industrie- & Logistikmarkt Stuttgart
Büro- & Investmentmarkt München
Objekt anbieten
Über Uns
Unsere Werte
Unser Service
Geschichte
Team
Kontakt
Unsere Standorte
Stuttgart
München
Grossmann & Berger Gruppe
German Property Partners
Referenzen
Stuttgart | Bürovermietung
Stuttgart | Investment
Stuttgart | Industrie & Logistik
München | Bürovermietung
München | Investment
Aktuelles
Pressenews
Newsletter
Marktberichte
Research
Karriere
Stellenangebote
Kontakt
Arbeitsumfeld
DEUTSCH
ENGLISH
×
+49 711 20702-800
Zum Direktkontakt
Rufen Sie uns jederzeit an
Exposé-Anfragen
Fordern Sie jetzt die spezifischen Objektunterlagen an
Herr
Frau
Keine Angabe
* hierbei handelt es sich um ein Pflichtfeld
Ich habe die
Datenschutzbestimmung
zur Kenntnis genommen.
Senden
E & G IMMOBILIEN
>
Gewerbeimmobilien
>
Bürofläche am BÄRLE-ECK
Vorheriges
Objekt
Nächstes
Objekt
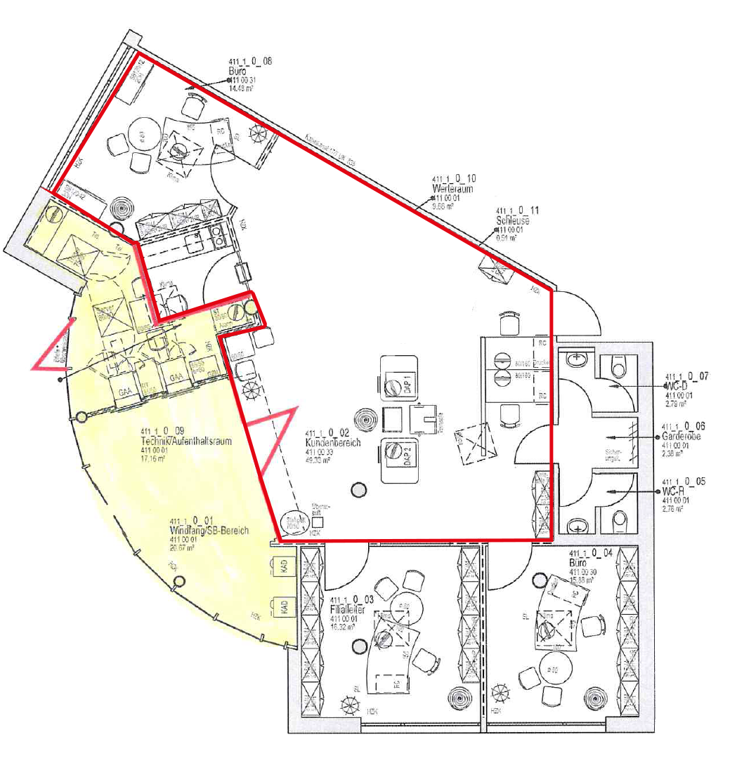
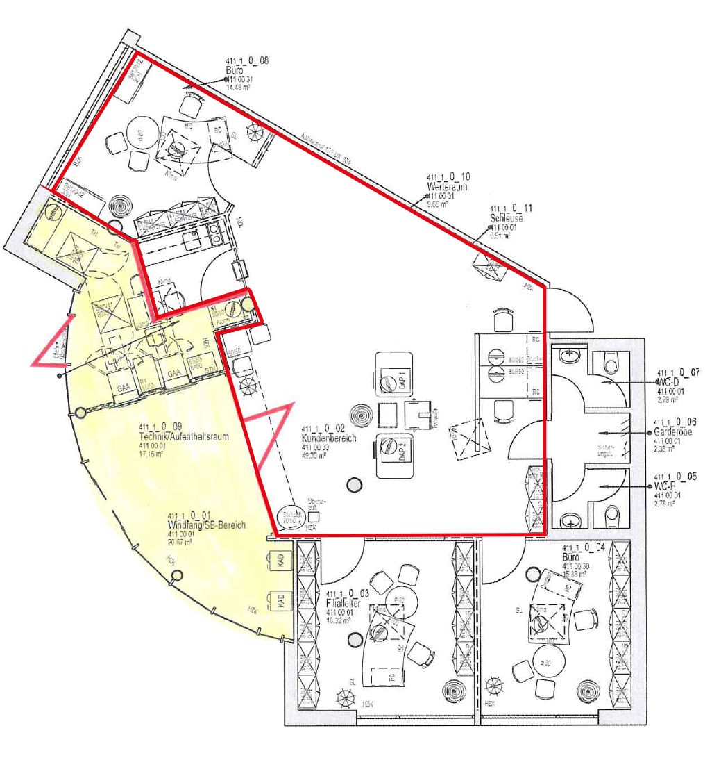
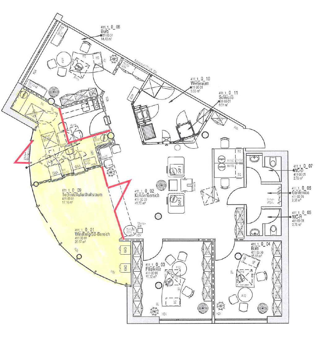
Bürofläche am BÄRLE-ECK
Sindelfingen
10,00
Miete € pro m²
120
Fläche teilbar ab (m²)
Im Objekt aktuell verfügbare Flächen: EG - 120 m²
Eckdaten
OBJEKTTYP
Büro/Praxis
ORT
Sindelfingen
BÜRO- /PRAXISFLÄCHE IN M²
120
FLÄCHE TEILBAR AB (M²)
120
PROVISION
Dieses Angebot ist provisionspflichtig
OBJEKTNUMMER
EuG11773
LAGEKRITERIEN
ENTFERNUNG NÄCHSTER HAUPTBAHNHOF
19.1 KM
ENTFERNUNG NÄCHSTE AUTOBAHN
3.1 KM
ENTFERNUNG NÄCHSTER FLUGHAFEN
18 KM
ENTFERNUNG NÄCHSTE BUSHALTESTELLE
0.01 KM
Ausstattung / Objektdetails
–
2 separate Eingänge
–
4 separate Büroräume
–
Gut frequentierte Lage!
–
2 Kurzzeitparkplätze
–
Abgehängte Decke
–
Eingangs-Rolltor
–
NK nach Verbrauch
–
Glastrennwände
Bitte lassen Sie Cookies zu,
um eine Karte von Google Maps anzuzeigen.
Cookiebanner anzeigen
Kontakt
SPRECHEN SIE UNS AN!
Hans-Werner Petrak
Ihr Kontakt zu uns
+49 7031 734468-6
hans-werner.petrak@eug.de
Exposé anfordern
Das könnte Sie auch interessieren
Tamm
Penthouse Büro in Tamm-Hohenstange
8,50
Miete € pro m²
3.600
Büro- / Praxisfläche in m²
Tamm
Penthouse Büro in Tamm-Hohenstange
Leinfelden-Echterdingen
Attraktiver Bürocampus in Flughafennähe
12,53
Miete € pro m²
2.764
Büro- / Praxisfläche in m²
Leinfelden-Echterdingen
Attraktiver Bürocampus in Flughafennähe
Weissach
IM ALLEINAUFTRAG - Hochwertige Werkstatt- und Büroflächen
12,00
Miete € pro m²
1.039
Büro- / Praxisfläche in m²
3.767
Gesamtfläche in ca. m²
Weissach
IM ALLEINAUFTRAG - Hochwertige Werkstatt- und Büroflächen
Sindelfingen
Arbeiten und Schlafen unter einem Dach
8,00
Miete € pro m²
202
Büro- / Praxisfläche in m²
Sindelfingen
Arbeiten und Schlafen unter einem Dach
Ludwigsburg
Exklusive Flächen in historischer Gründerzeitvilla
auf Anfrage
Preis
515
Büro- / Praxisfläche in m²
Ludwigsburg
Exklusive Flächen in historischer Gründerzeitvilla
Finden Sie die individuelle Immobilie
Einfach, schnell und diskret in der Direktsuche
SUCHEN
WOHNEN
GEWERBE
ÜBER UNS
KONTAKT
E & G Real Estate GmbH
Börsenplatz 1
70174 Stuttgart
T
+49 711 20702-700
Für Eigentümer
Bürovermietung
Unser Service
Objekt anbieten
Für Bauträger
Industrie & Logistik
Unser Team
Standorte
Suchauftrag
Investment
Karriere
Aktuelles
Immobilien
Research
Grossmann & Berger Gruppe
German Property Partners
Einzelhandelsvermietung
© 2026 - E & G Real Estate GmbH
Impressum
|
Datenschutz
|
AGB
×
E & G News
Bleiben Sie auf dem Laufenden!
Herr
Frau
Keine Angabe
* hierbei handelt es sich um ein Pflichtfeld
Ich habe die
Datenschutzbestimmung
zur Kenntnis genommen.
Jetzt abonnieren
×
Marktberichte
Erhalten Sie unsere Marktberichte in Zukunft per Post.
Herr
Frau
Keine Angabe
Publikationen
Büromarktbericht Stuttgart
Investmentmarktbericht Stuttgart
Industrie- & Logistikmarktbericht Stuttgart
Büro- und Investmentmarktbericht München
Top 7 Standorte Industrie- & Logistikmarktbericht
Top 7 Standorte Büro-/Investmentmarktbericht
* hierbei handelt es sich um ein Pflichtfeld
Ich habe die
Datenschutzbestimmung
zur Kenntnis genommen.
Jetzt Abonnieren
Vielen Dank
Fehler
×