E & G IMMOBILIEN > Gewerbeimmobilien >
Außenansicht
Büro
Büro
Büro
Treppenhaus
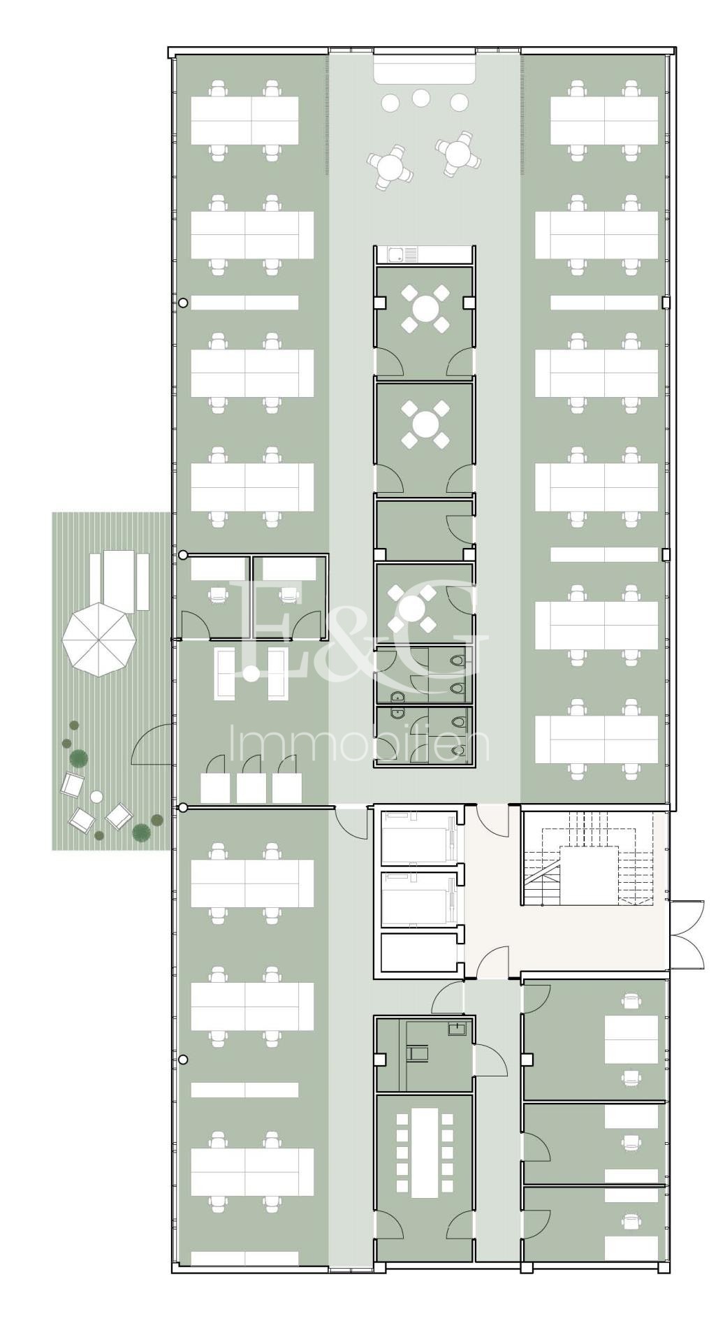
Grundriss EG
Regelgeschoss 1-4 OG
Grundriss DG
Terrasse
Außenansicht
Büro
Büro
Büro
Treppenhaus
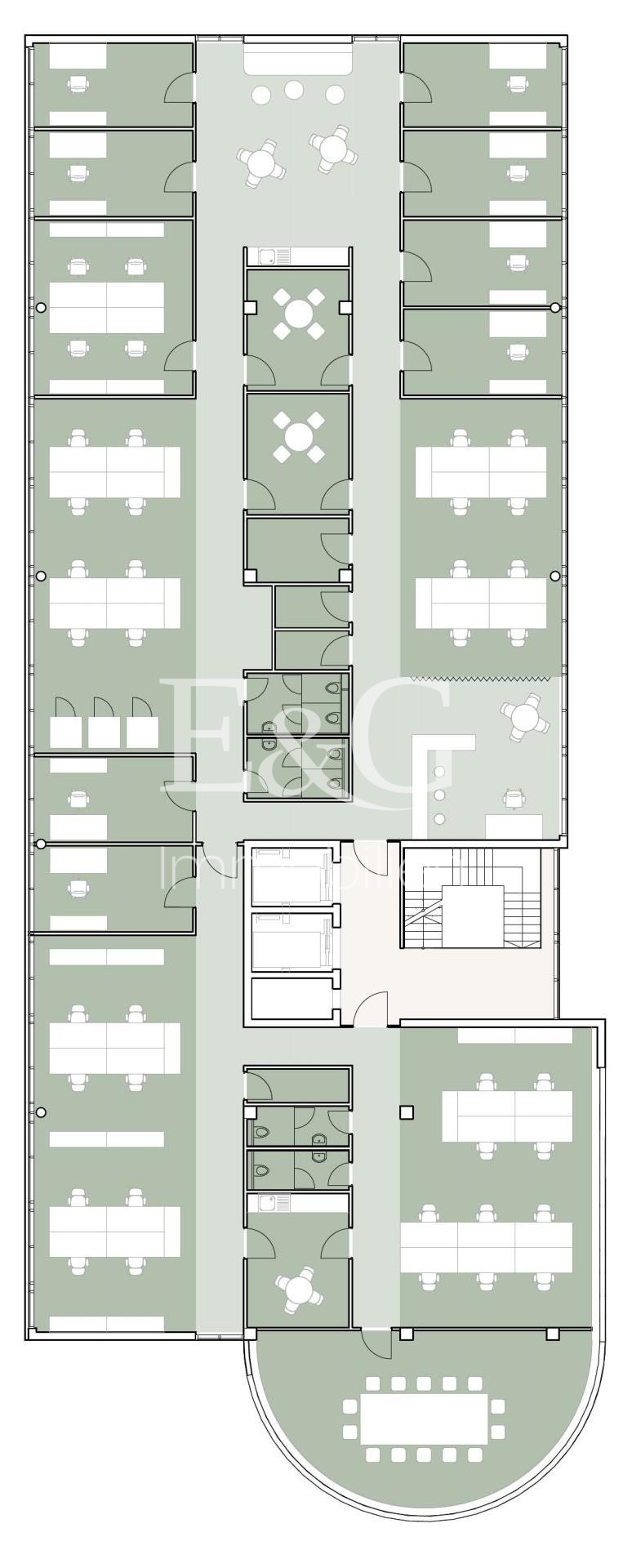
Grundriss EG
Regelgeschoss 1-4 OG
Grundriss DG
Terrasse
Stuttgart

auf Anfrage
Preis
733
Fläche teilbar ab (m²)

Das M50 befindet sich an einem der attraktivsten Büro- und Wohn-standorte in Stuttgart, in unmittelbarer Nähe zum City-Ring. Der Standort kombiniert die Vorteile einer erstklassigen Innenstadtlage mit exzellenter Infrastruktur, einer lebendigen Umgebung und großzügigen Grünflächen. Direkt nebenan befindet sich die Karlshöhe, eine wunderschöne Grünanlage mit einem spektakulären Blick auf die Stadt und gleichzeitig eine der exklusivsten Premium-Lagen Stuttgarts. Hier finden sich neben hochwertigen Büroflächen auch prächtige Villen und elegante Wohngebäude. Das M50 wird umfassend saniert, wobei besonders die Fassadensanierung des Kopfbaus und die stilvolle Umgestaltung des Entrees den Raum für einen optimalen Unternehmensempfang bieten.Das Umfeld rund um das M50 bietet zudem zahlreiche Gastronomie-optionen und Einkaufsmöglichkeiten. In nur 4 Minuten zu Fuß gelangt man zur Königstraße, der Hauptstraße für Einkäufe in Stuttgart, die sich über etwa 1,1 km erstreckt. Zudem liegt das Einkaufszentrum "Das Gerber" in unmittelbarer Nähe und bietet eine breite Auswahl an Lebensmittel-geschäften sowie weiteren Angeboten für den täglichen Bedarf. Kurz gesagt: Das M50 ist eine ausgezeichnete Wahl an einem exklusiven Standort im Herzen von Stuttgart. 5


Eckdaten

OBJEKTTYP
Büro/Praxis
ORT
Stuttgart
BÜRO- /PRAXIS­FLÄCHE IN M²
4.138
FLÄCHE TEILBAR AB (M²)
733
PROVISION
provisionsfrei
OBJEKTNUMMER
EuG12113

LAGEKRITERIEN

ENTFERNUNG NÄCHSTER HAUPTBAHNHOF
1.7 KM
ENTFERNUNG NÄCHSTE AUTOBAHN
12.5 KM
ENTFERNUNG NÄCHSTER FLUGHAFEN
13.1 KM
Bitte lassen Sie Cookies zu,
um eine Karte von Google Maps anzuzeigen.

Kontakt

SPRECHEN SIE UNS AN!

Das könnte Sie auch interessieren

Finden Sie die individuelle Immobilie
Einfach, schnell und diskret in der Direktsuche


© 2026 - E & G Real Estate GmbH