E & G IMMOBILIEN > Gewerbeimmobilien > Attraktive Büros im Loftstyle
Titelbild
Büro
Büro
Büro
Büro
Büro
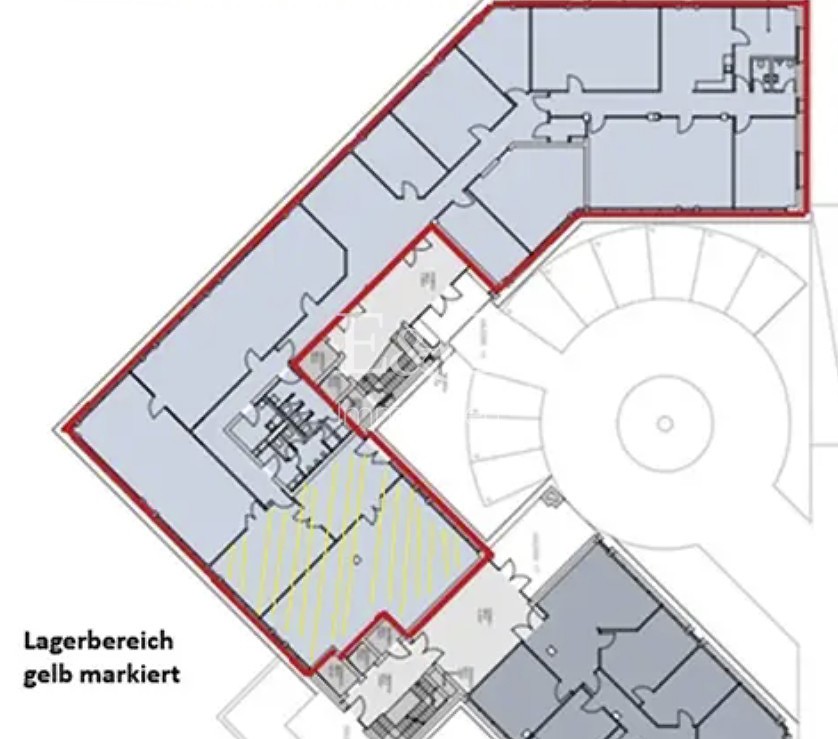
Grundriss EG, 720 m²
Grundriss EG, 854 m²
Belegungsplan Waldburgstraße links
Außenansicht
Titelbild
Büro
Büro
Büro
Büro
Büro
Grundriss EG, 720 m²
Grundriss EG, 854 m²
Belegungsplan Waldburgstraße links
Außenansicht

Attraktive Büros im Loftstyle

Stuttgart

14,00
Miete € pro m²
355
Fläche teilbar ab (m²)

Der gepflegte Bürokomplex aus dem Jahr 1987, mit zeitloser Klinkerfassade, besteht aus zwei Gebäudeteilen und hat die Form eines "S". Die großen Glaselementen wurden mit außenliegenden Raffstoren ausgestattet. Die beiden einladenden, barrierefreien Eingangsbereiche verfügen über je zwei Aufzüge. In der hauseigenen Tiefgarage stehen ausreichend Stellplätze zur Verfügung. Ebenso bietet der Hinterhof mit seinen Außenstellplätzen Parkmöglichkeiten. Die gepflegten Außenanlagen ermöglichen mit ihren Sitzbänken eine hervorragende Aufenthaltsqualität. Die Energieversorgung des Objekts erfolgt mittels Gas.


Eckdaten

OBJEKTTYP
Büro/Praxis
ORT
Stuttgart
BÜRO- /PRAXIS­FLÄCHE IN M²
1.574
FLÄCHE TEILBAR AB (M²)
355
BAUJAHR
1987
PROVISION
provisionsfrei
OBJEKTNUMMER
EuG12134

LAGEKRITERIEN

ENTFERNUNG NÄCHSTER HAUPTBAHNHOF
12.4 KM
ENTFERNUNG NÄCHSTE AUTOBAHN
2.4 KM
ENTFERNUNG NÄCHSTER FLUGHAFEN
11.7 KM
Ausstattung / Objektdetails

Links:

  • 3,14 m hohe offene Betondecken
  • Lineares LED-Beleuchtungssystem
  • Teppichboden
  • Pflegeleichter Linoleumboden im Flur, Küchen-, und - Aufenthaltsbereich
  • Bodentanks mit offenen Kabelpritschen ermöglichen eine komfortable Verkabelung
  • Einzelheizkörper mit Thermostatventilen



Mitte:

  • Schallabsorbierende Abhangdecke mit integrierter Arbeitsplatzbeleuchtung
  • Innenliegenden Vertikaljalousien ausgestattet, - Außenverschattungsmöglichkeit vorhanden
  • Bodentanks mit offenen Kabelpritschen Einzelheizkörper mit Thermostatventilen
  • Die Fläche verfügt über einen Lager-/Werkstattbereich mit doppelflügeliger Zugangstür
Bitte lassen Sie Cookies zu,
um eine Karte von Google Maps anzuzeigen.

Kontakt

SPRECHEN SIE UNS AN!

Das könnte Sie auch interessieren

Finden Sie die individuelle Immobilie
Einfach, schnell und diskret in der Direktsuche


© 2026 - E & G Real Estate GmbH