E & G IMMOBILIEN > Gewerbeimmobilien > Funktionale Flächen in verkehrsgünstiger Lage
Außenansicht
Außenansicht
Außenansicht
Büro
Büro
Büro
Büro
Büro
Büro
Büro
Büro
EG
1.OG
2.OG
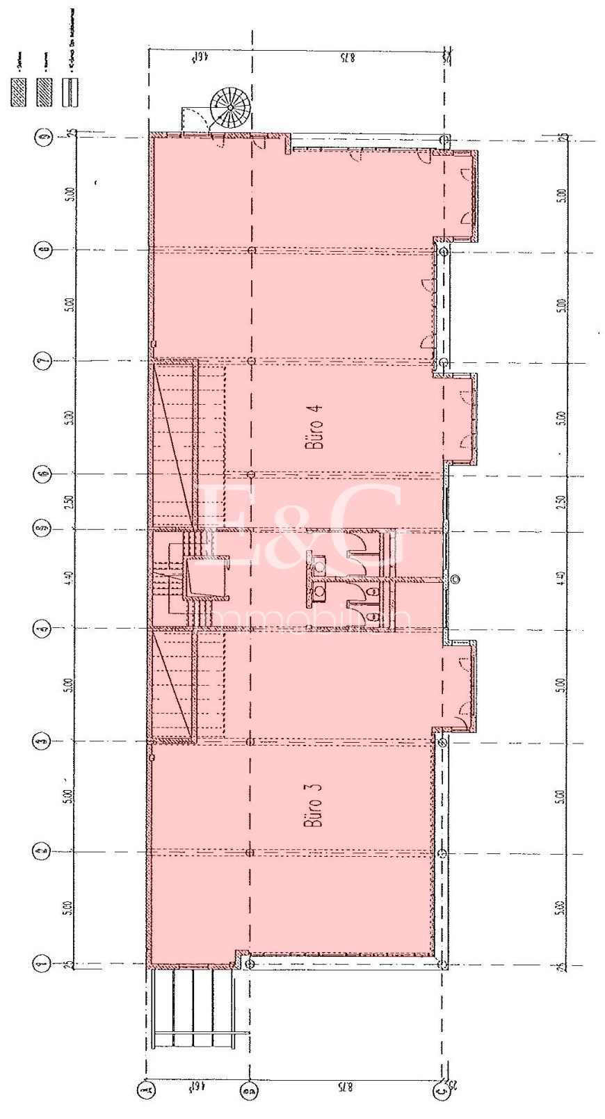
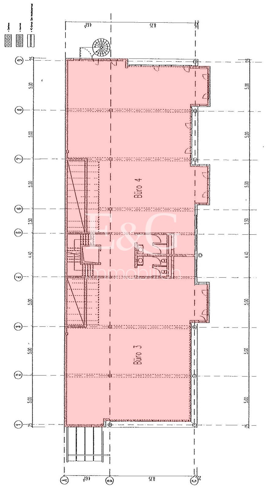
3.OG
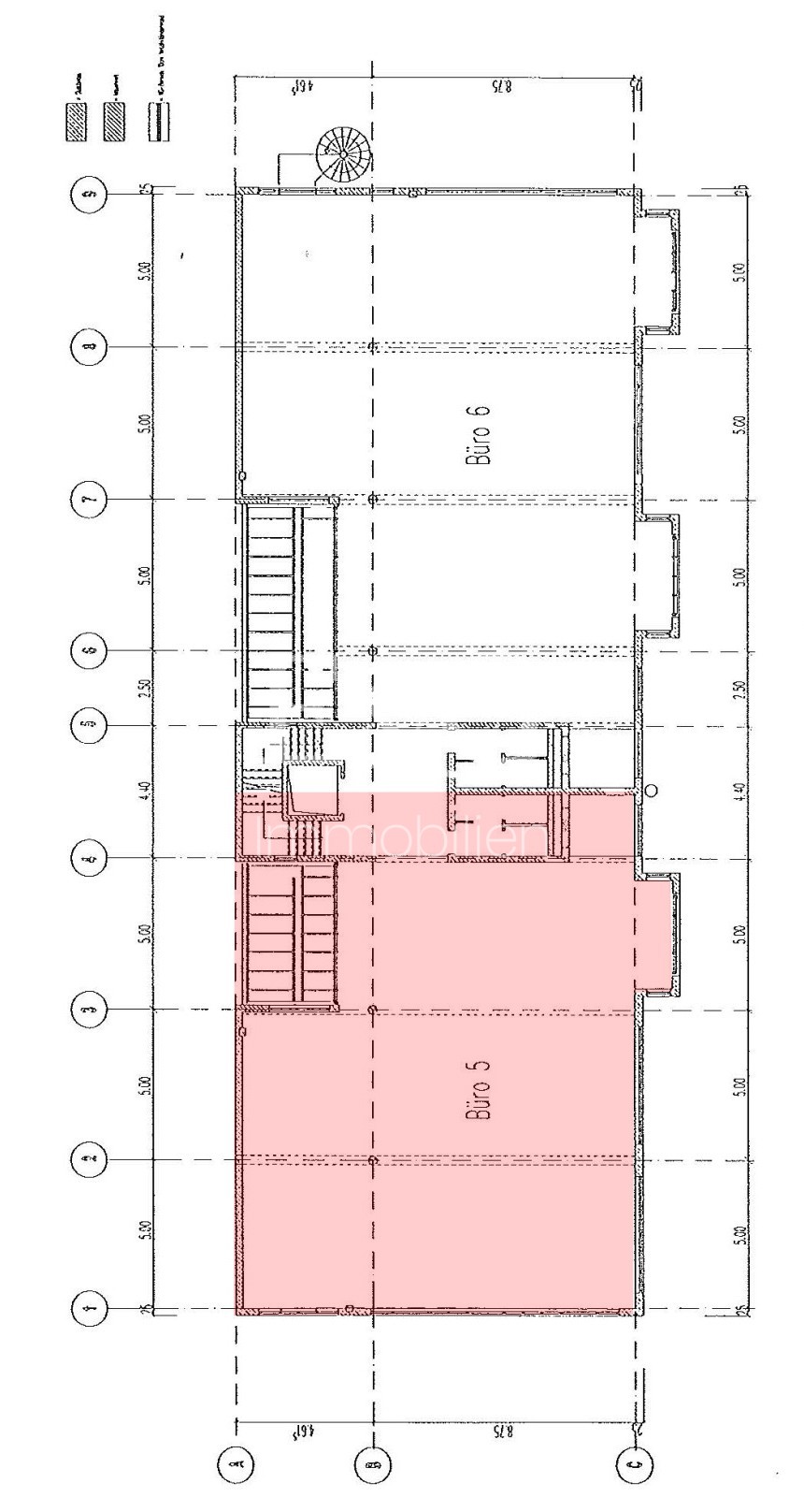
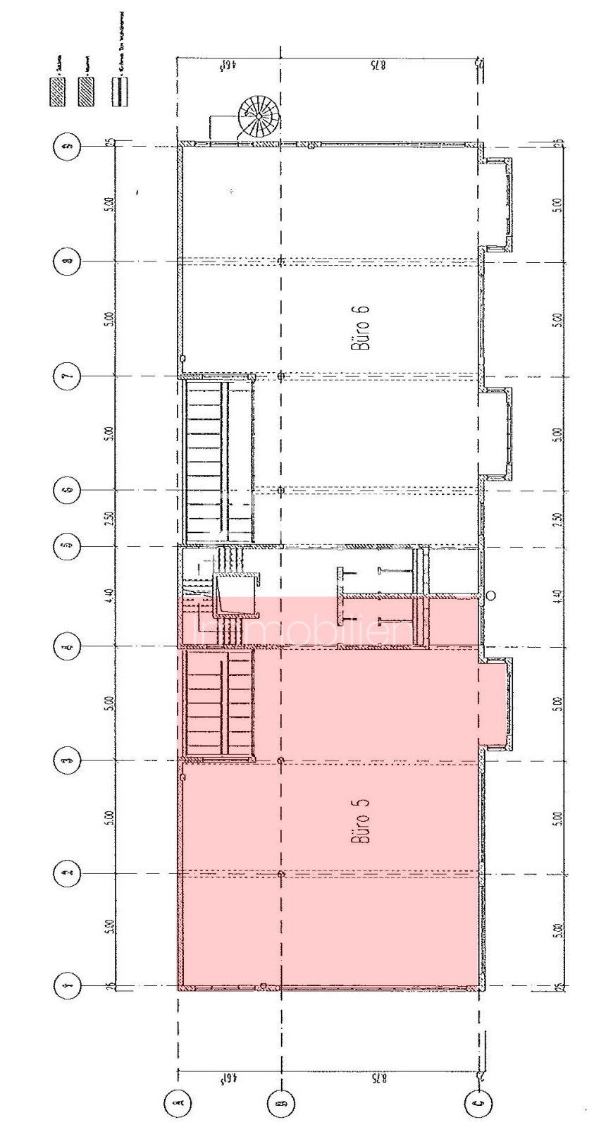
4.OG
Außenansicht
Außenansicht
Außenansicht
Büro
Büro
Büro
Büro
Büro
Büro
Büro
Büro
EG
1.OG
2.OG
3.OG
4.OG

Funktionale Flächen in verkehrsgünstiger Lage

Stuttgart

auf Anfrage
Preis
191
Fläche teilbar ab (m²)

Die Immobilie in der Heßbrühlstraße 15 befindet sich im Stuttgarter Stadtteil Vaihingen. Das Gebäude besteht aus mehreren Etagen und bietet flexibel nutzbare Büro- und Praxisflächen. Dank des übersichtlichen Grundrisses und der guten Anbindung eignet sich das Objekt besonders für Unternehmen, die funktionale Flächen im südlichen Stadtgebiet suchen. Der Standort punktet außerdem mit einem etablierten Umfeld aus Gewerbe und Dienstleistungen sowie einer zuverlässigen Anbindung an den öffentlichen Nahverkehr. Im Objekt aktuell verfügbare Flächen: EG - 254 m² 1. OG - 449 m² (teilbar ab 206 m²) 2. OG - 209 m² 3. OG - 437 m² (teilbar ab 194 m²) 4. OG - 191 m²


Eckdaten

OBJEKTTYP
Büro/Praxis
ORT
Stuttgart
BÜRO- /PRAXIS­FLÄCHE IN M²
1.540
FLÄCHE TEILBAR AB (M²)
191
PROVISION
provisionsfrei
OBJEKTNUMMER
EuG12236

LAGEKRITERIEN

ENTFERNUNG NÄCHSTER HAUPTBAHNHOF
10.7 KM
ENTFERNUNG NÄCHSTE AUTOBAHN
3.7 KM
ENTFERNUNG ZUM ZENTRUM
1.9 KM
ENTFERNUNG NÄCHSTER FLUGHAFEN
9 KM
Ausstattung / Objektdetails
  • Nicht barrierefrei
  • Gasheizung
  • Brüstungskanäle
  • Teilweise Teppich, teilweise Parkett
  • Teilweise Rasterleuchten, teilweise integrierte LED-- Beleuchtung
  • Mechanische Be-/Entlüftung
  • Tiefgarage: Mechanische Doppelparker
  • Fahrradstellplätze
  • Terrassenfläche im 4. Obergeschoss
  • Personenaufzug
Bitte lassen Sie Cookies zu,
um eine Karte von Google Maps anzuzeigen.

Kontakt

SPRECHEN SIE UNS AN!

Das könnte Sie auch interessieren

Finden Sie die individuelle Immobilie
Einfach, schnell und diskret in der Direktsuche


© 2026 - E & G Real Estate GmbH