E & G IMMOBILIEN > Gewerbeimmobilien > Innenstadtnah und direkt an der B14
Titelbild
Besprechung
Büro
Empfang
1.OG
3.OG
Büro
Titelbild
Besprechung
Büro
Empfang
1.OG
3.OG
Büro

Innenstadtnah und direkt an der B14

Stuttgart

11,10
Miete € pro m²

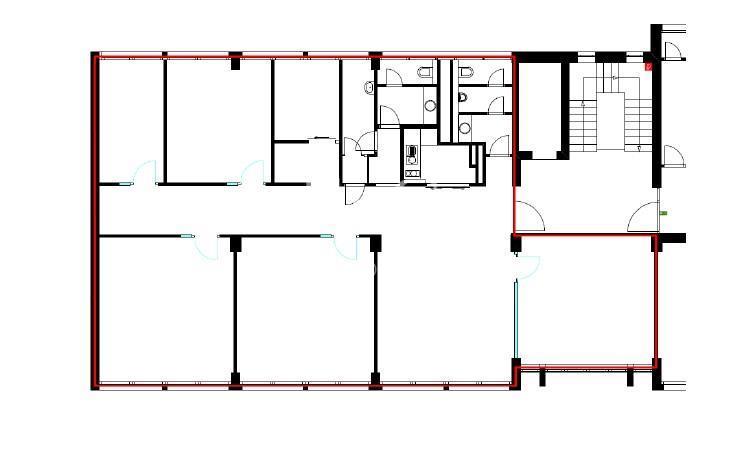
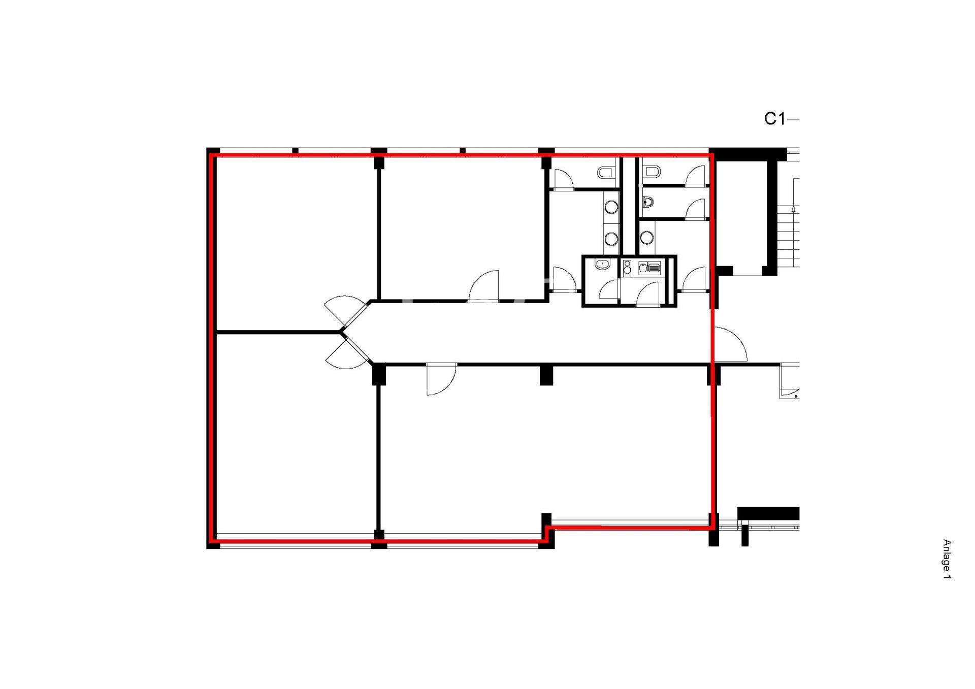
Die Büroflächen in der Willi-Brandt-Straße 50 und 54 überzeugen durch ihre hervorragende Lage und exzellente Anbindung. Die Stuttgarter Innenstadt und der Hauptbahnhof sind in wenigen Minuten erreichbar. Nur drei Gehminuten entfernt liegt die U-Bahn-Haltestelle Neckartor, von der aus die Linien U1, U2, U9, U11 und U14 eine schnelle Verbindung in alle Richtungen bieten. Direkt an der B14 gelegen, sind die Flächen gut sichtbar und repräsentativ. In der Umgebung gibt es zahlreiche Cafés und Restaurants für optimale Pausenmöglichkeiten, während der Schlossgarten direkt vor der Tür eine ruhige Auszeit im Grünen ermöglicht. Eine ideale Lage für Unternehmen, die Wert auf Erreichbarkeit, Sichtbarkeit und ein attraktives Arbeitsumfeld legen.


Eckdaten

OBJEKTTYP
Büro/Praxis
ORT
Stuttgart
BÜRO- /PRAXIS­FLÄCHE IN M²
367
BAUJAHR
1993
PROVISION
provisionsfrei
OBJEKTNUMMER
EuG1435

LAGEKRITERIEN

ENTFERNUNG NÄCHSTER HAUPTBAHNHOF
1 KM
ENTFERNUNG NÄCHSTE AUTOBAHN
10 KM
ENTFERNUNG NÄCHSTER FLUGHAFEN
13 KM
Ausstattung / Objektdetails

Die Fläche überzeugt durch eine hochwertige Ausstattung:

  • Flexible Trennwände
  • Hohlraumböden zur Kabelführung
  • Teppichboden
  • Jalousien als Sonnenschutz
  • Kühldecke als Raumklimatisierung
  • Personenaufzug
Bitte lassen Sie Cookies zu,
um eine Karte von Google Maps anzuzeigen.

Kontakt

SPRECHEN SIE UNS AN!

Das könnte Sie auch interessieren

Finden Sie die individuelle Immobilie
Einfach, schnell und diskret in der Direktsuche


© 2025 - E & G Real Estate GmbH