E & G IMMOBILIEN > Gewerbeimmobilien > An der Löwentorbrücke zu Ihrem Unternehmenserfolg
Außenansicht
Außenansicht
Außenansicht
Innenansicht
Innenansicht
Treppenhaus
Innenansicht
Innenansicht
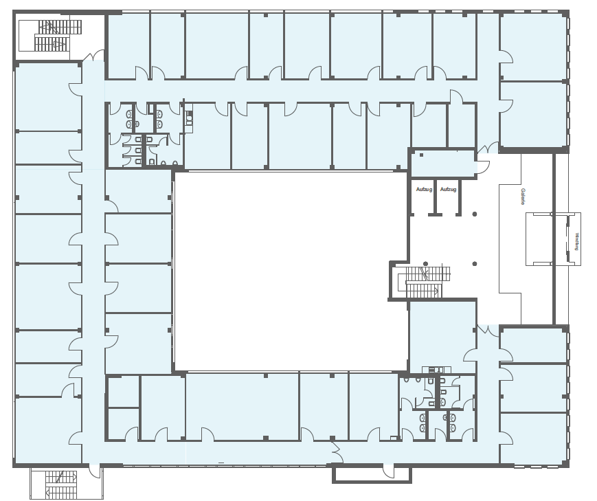
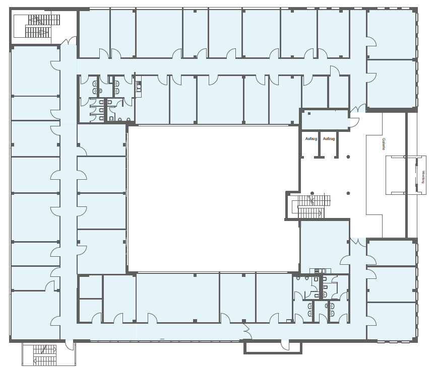
1. Obergeschoss
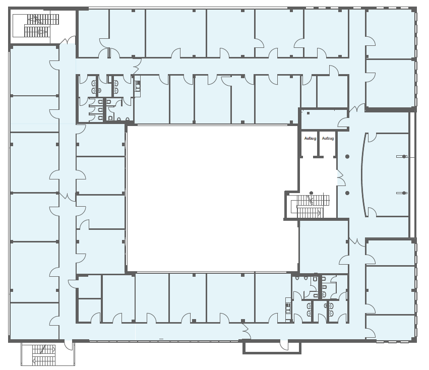
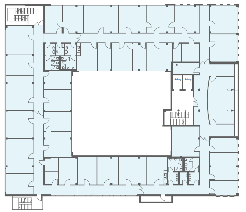
2. Obergeschoss
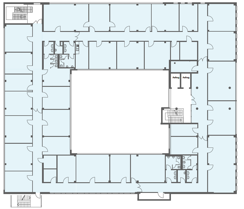
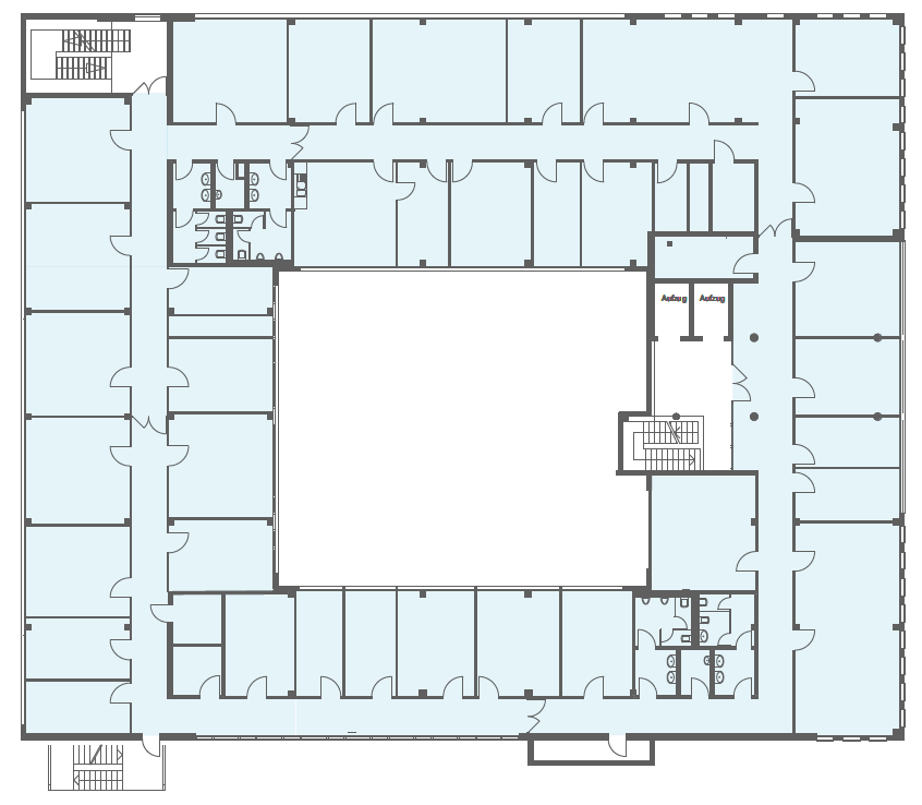
3. Obergeschoss
4. Obergeschoss
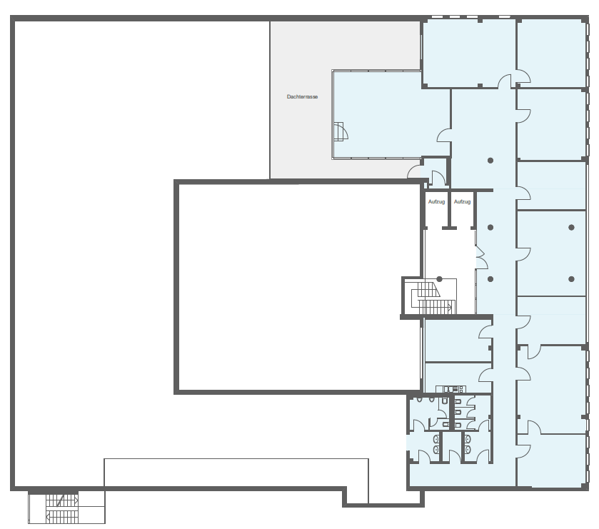
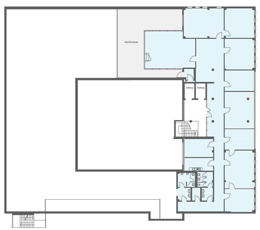
5. Obergeschoss
Außenansicht
Außenansicht
Außenansicht
Außenansicht
Innenansicht
Innenansicht
Treppenhaus
Innenansicht
Innenansicht
1. Obergeschoss
2. Obergeschoss
3. Obergeschoss
4. Obergeschoss
5. Obergeschoss
Außenansicht

An der Löwentorbrücke zu Ihrem Unternehmenserfolg

Stuttgart

16,80
Miete € pro m²
635
Fläche teilbar ab (m²)

Das Bürogebäude, welches im Jahr 1999 fertiggestellt wurde, erstreckt sich über sechs Etagen und bietet eine moderne und gut strukturierte Arbeitsumgebung. Derzeit ist das Erdgeschoss bereits vermietet, sodass die verfügbaren Büroflächen auf den fünf Obergeschossen liegen. Diese variieren in der Größe zwischen 634 m² und 1.306 m² je Etage und sind ab Juli 2025 verfügbar. Das Gebäude zeichnet sich durch seine verkehrsgünstige Lage an der Heilbronner Straße aus, zwischen den U-Bahnstationen Pragfriedhof und Löwentorbrücke. Die B27, eine wichtige Verkehrsachse, verbindet das Bürogebäude direkt mit der Stuttgarter Innenstadt und dem nördlichen Teil der Stadt. Die A81 ist innerhalb von 15 Minuten vom Gebäude aus erreichbar, was die Immobilie besonders für Unternehmen attraktiv macht, die auf eine gute Anbindung an den regionalen und überregionalen Verkehr angewiesen sind. Im Objekt aktuell verfügbare Flächen: 1. OG - 1.210,7 m² 2. OG - 1.280,7 m² 3. OG - 1.297,6 m² 4. OG - 1.306 m² 5. OG - 634,6 m²


Eckdaten

OBJEKTTYP
Büro/Praxis
ORT
Stuttgart
BÜRO- /PRAXIS­FLÄCHE IN M²
5.731
FLÄCHE TEILBAR AB (M²)
635
PROVISION
provisionsfrei
OBJEKTNUMMER
EuG1503

LAGEKRITERIEN

ENTFERNUNG NÄCHSTER HAUPTBAHNHOF
2.5 KM
ENTFERNUNG NÄCHSTE AUTOBAHN
11 KM
ENTFERNUNG NÄCHSTER FLUGHAFEN
16 KM
ENTFERNUNG NÄCHSTE BUSHALTESTELLE
4.4 KM
Ausstattung / Objektdetails

Die Flächen verfügen über folgende Ausstattung:

  • Fernwärmeanschluss
  • 2 Personenaufzüge
  • Küchenzeilen vorhanden
  • Teilweise klimatisiert
  • Elektrische Aussenjalousien
  • EDV-Verkabelung vom Vormieter kann übernommen werden
  • Serverräume vorhanden (außer 5. OG)
  • Tiefgaragenplätze
  • Kellerräume können angemietet werden
Bitte lassen Sie Cookies zu,
um eine Karte von Google Maps anzuzeigen.

Kontakt

SPRECHEN SIE UNS AN!

Das könnte Sie auch interessieren

Finden Sie die individuelle Immobilie
Einfach, schnell und diskret in der Direktsuche


© 2026 - E & G Real Estate GmbH