E & G IMMOBILIEN > Gewerbeimmobilien > Bürofläche im BÜX verfügbar!
Titelbild
Eingang
Büro
Flur
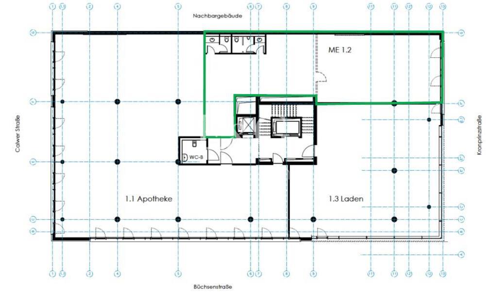
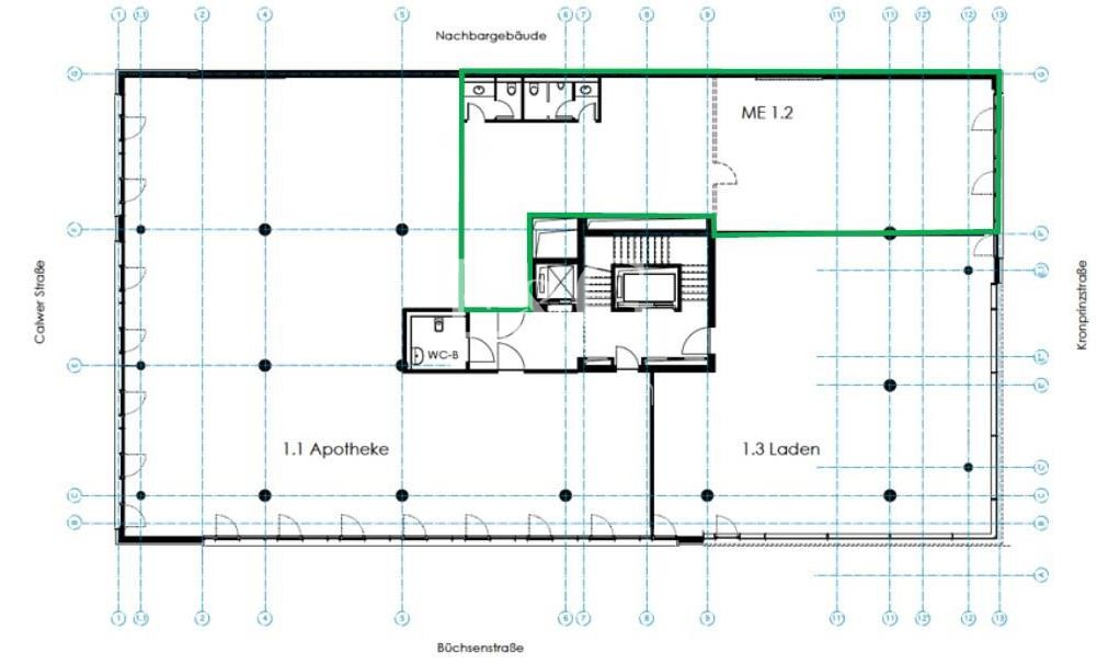
1. OG_Einheit 1.2
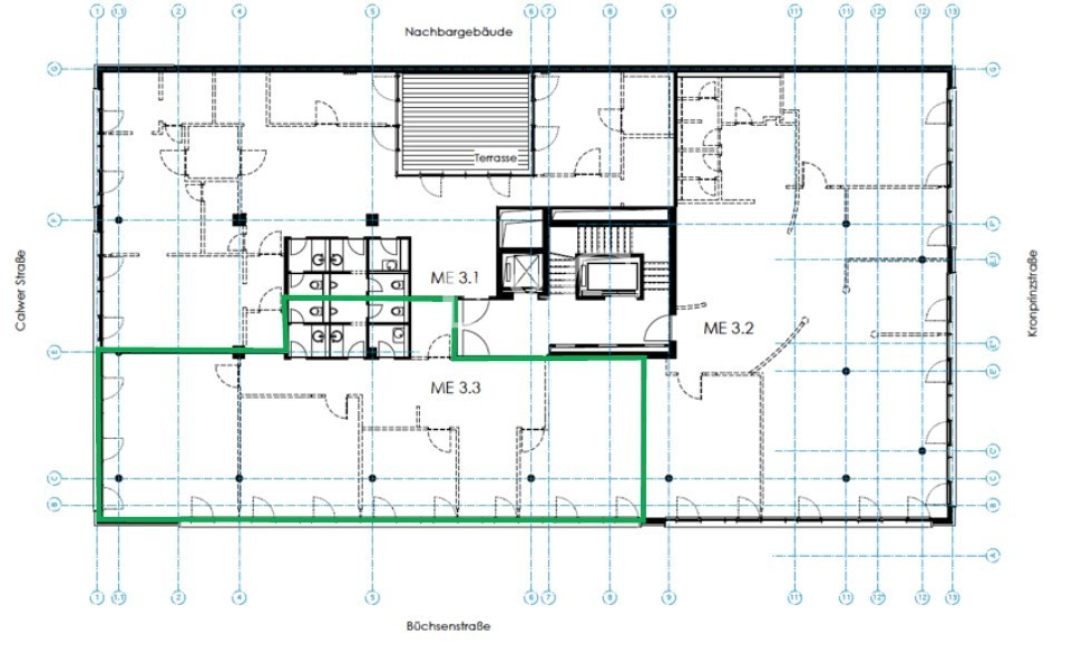
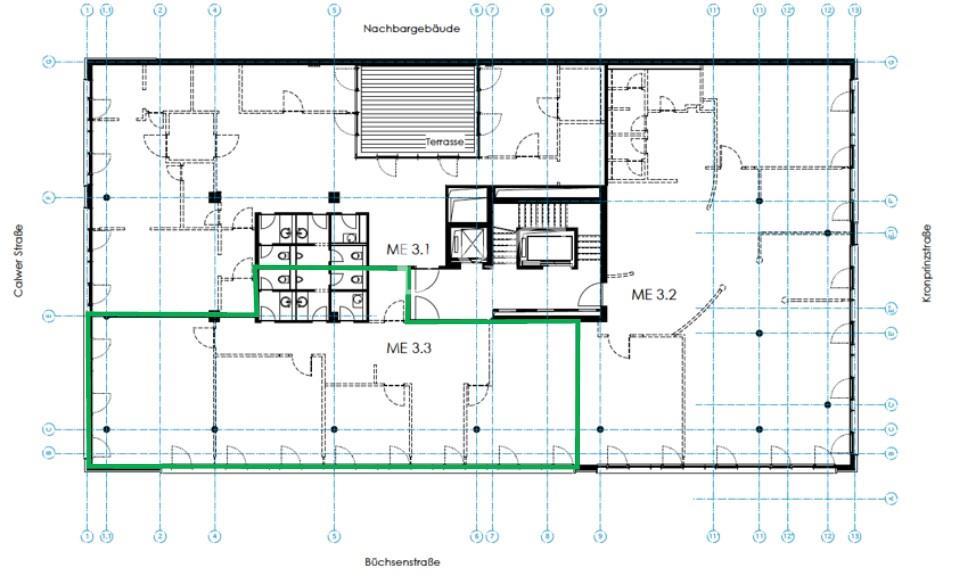
3. Obergeschoss_Einheit 3.3
5. Obergeschoss_Einheitz 5.1
Eingang
Titelbild
Eingang
Büro
Flur
1. OG_Einheit 1.2
3. Obergeschoss_Einheit 3.3
5. Obergeschoss_Einheitz 5.1
Eingang

Bürofläche im BÜX verfügbar!

Stuttgart

26,00
Miete € pro m²
162
Fläche teilbar ab (m²)

Die repräsentative Fläche im Geschäftshaus BüX an der Büchsenstraße 10 befindet sich in einer Top-Citylage Stuttgarts. Das Gebäude, ursprünglich im Jahr 1967 errichtet, wurde im Rahmen einer umfassenden Kernsanierung im Jahr 2009 auf einen modernen und hochwertigen Standard gebracht. Die Büchsenstraße zählt zu den am häufigsten besuchten Geschäftsadressen in der baden-württembergischen Landeshauptstadt. Vor allem ihre Funktion als Hauptverbindung zwischen dem S-Bahnhof "Stadtmitte" und der Stuttgarter Haupteinkaufsstraße Königstraße trägt maßgeblich zu ihrer hohen Frequenz bei. Diese infrastrukturell begünstigte Lage macht das Geschäftshaus BüX nicht nur für Einzelhändler zu einem gefragten Top-Standort, sondern auch für Unternehmen, Freiberufler und Ärzte, die neben einer erstklassigen Gebäudequalität insbesondere den überdurchschnittlich gut erreichbaren Standort zu schätzen wissen.


Eckdaten

OBJEKTTYP
Büro/Praxis
ORT
Stuttgart
BÜRO- /PRAXIS­FLÄCHE IN M²
556
FLÄCHE TEILBAR AB (M²)
162
BAUJAHR
1967
PROVISION
provisionsfrei
OBJEKTNUMMER
EuG2473

LAGEKRITERIEN

ENTFERNUNG NÄCHSTER HAUPTBAHNHOF
1.6 KM
ENTFERNUNG NÄCHSTE AUTOBAHN
11 KM
ENTFERNUNG NÄCHSTER FLUGHAFEN
14.3 KM
Ausstattung / Objektdetails

Die hier angebotenen Büroflächen überzeugen durch ihre hochwertige Ausstattung und einen optimalen Zugang für Kunden sowie Mitarbeiter:

  • Automatische Eingangstüre, die direkt von der Bürofläche aus geöffnet werden kann
  • Moderne Klingelanlage mit Freisprecheinrichtung und Videozugriff
  • Öffentliche Behindertentoilette im Geschoss
  • Raumhöhe von ca. 3 m
  • Hohlraumböden mit Bodentanks
  • Kühlung durch Klimasplitgeräte
  • Stehleuchten für eine angenehme Beleuchtung
  • Tiefgaragenstellplatz (Zufahrt über die
  • Kronprinzstraße bzw. das Kronprinzparkhaus) steht zur Vermietung bereit
  • Teeküche
  • Personenaufzug
Bitte lassen Sie Cookies zu,
um eine Karte von Google Maps anzuzeigen.

Kontakt

SPRECHEN SIE UNS AN!

Das könnte Sie auch interessieren

Finden Sie die individuelle Immobilie
Einfach, schnell und diskret in der Direktsuche


© 2026 - E & G Real Estate GmbH