E & G IMMOBILIEN > Gewerbeimmobilien > Individuelle Businessflächen für Ihr Unternehmen in Top-Lage!
Außenansicht
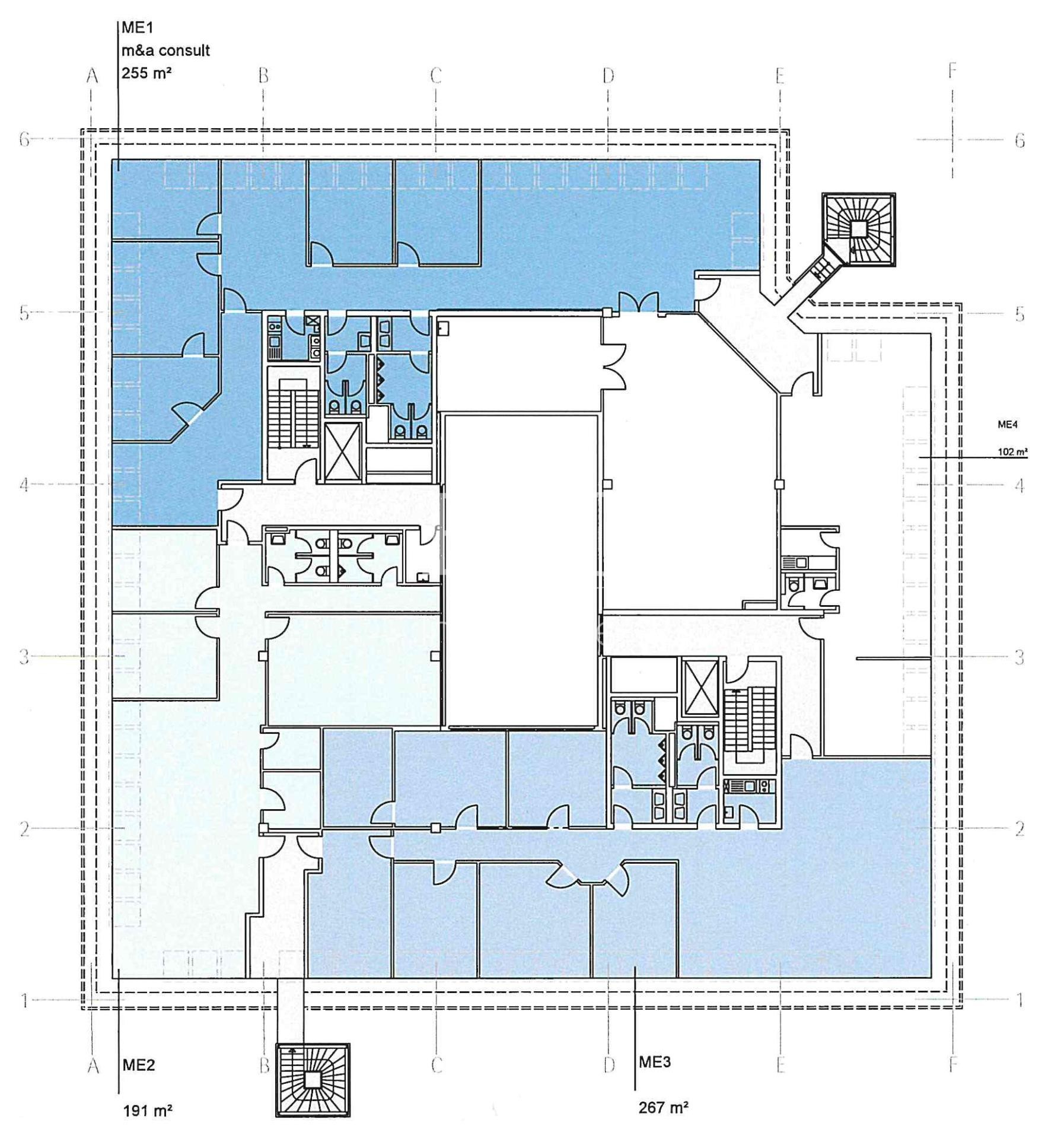
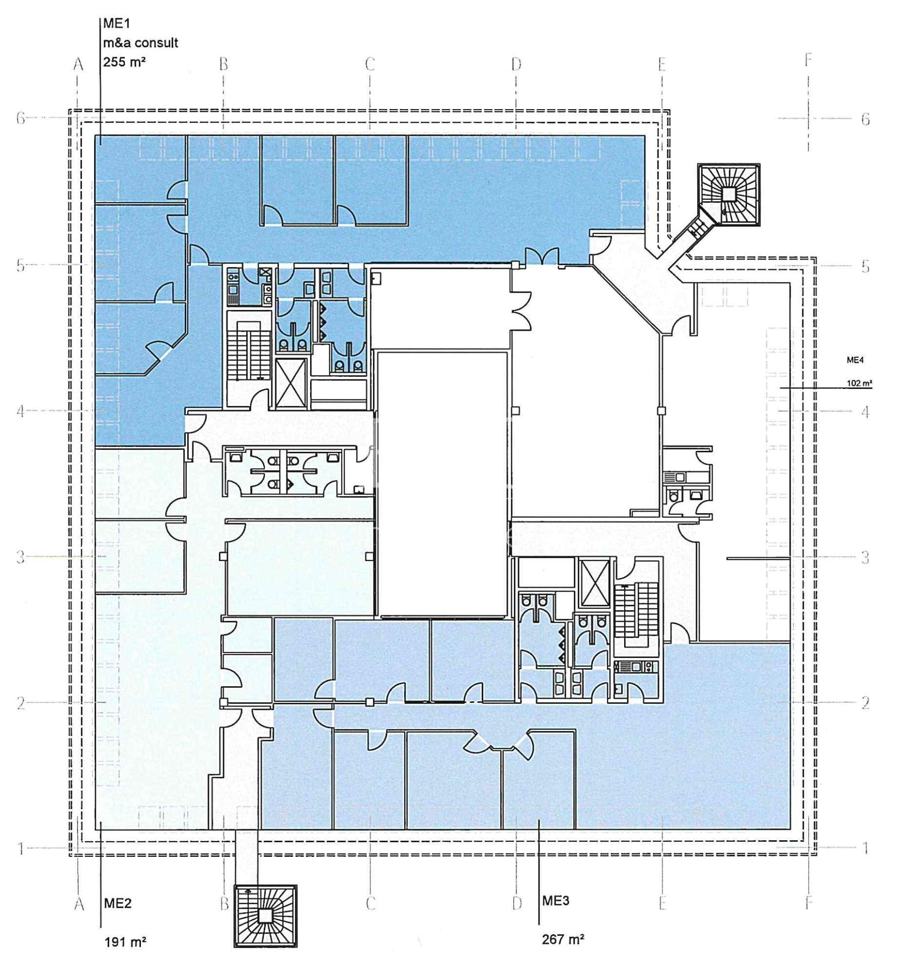
1.OG
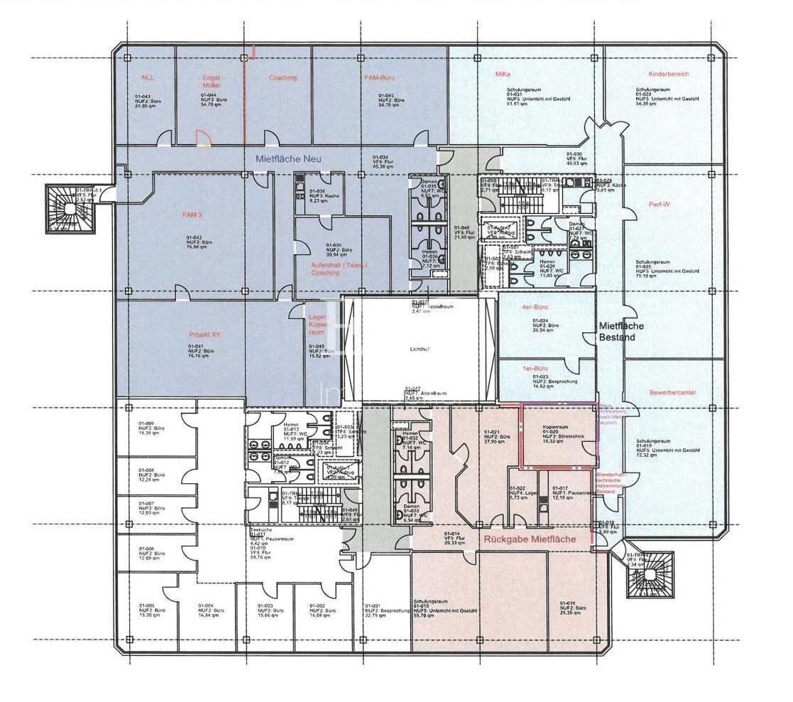
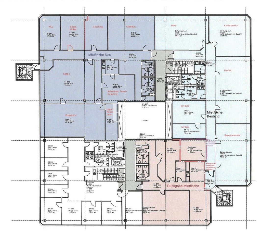
4. Obergeschoss
Außenansicht
1.OG
4. Obergeschoss

Individuelle Businessflächen für Ihr Unternehmen in Top-Lage!

Böblingen

11,50
Miete € pro m²
221
Fläche teilbar ab (m²)

Das Bürohaus bietet die idealen Businessflächen für Ihr Unternehmen. Das helle Büroobjekt verfügt über ein großzügiges Foyer und 2 Aufzüge. Ausreichend Parkplätze in den beiden Tiefgaragenebenen sind vorhanden, Kundenparkplätze stehen direkt am Haus zur Verfügung. 2019 werden der Foyerbereich und die Flure aufgewertet (neuer Boden und Anstrich). Eine neue Briefkastenanlage wird ebenfalls installiert. Die Tiefgarage wird ab Mai 2019 saniert. Die Büroausstattung entspricht dem heutigen Ansprüchen: abgehängte Decken, Teppichboden, Kabelkanal, Raumtrennung nach Mieterwunsch, Einbauküche und Verkabelung. Im Objekt aktuell verfügbare Flächen: 1. OG - 221 m² 4. OG (EH1) - 287,9 m² 4. OG (EH2) - 303,1 m²


Eckdaten

OBJEKTTYP
Büro/Praxis
ORT
Böblingen
BÜRO- /PRAXIS­FLÄCHE IN M²
812
FLÄCHE TEILBAR AB (M²)
221
BAUJAHR
1988
PROVISION
provisionsfrei
OBJEKTNUMMER
EuG10534

LAGEKRITERIEN

ENTFERNUNG NÄCHSTE AUTOBAHN
2.3 KM
ENTFERNUNG NÄCHSTER FLUGHAFEN
20 KM
Ausstattung / Objektdetails

Die Flächen verfügen über eine großzügige Ausstattung:

  • Helle und hochwertige Fläche
  • Großzügiges Foyer
  • Personenaufzug
  • Außenliegender Sonnenschutz
  • Abgehängte Decken
  • Teppichboden
  • Kabelkanal
  • Raumgestaltung nach Mieterwunsch
  • Einbauküche
  • Ausreichend Parkplätze vorhanden
Bitte lassen Sie Cookies zu,
um eine Karte von Google Maps anzuzeigen.

Kontakt

SPRECHEN SIE UNS AN!

Das könnte Sie auch interessieren

Finden Sie die individuelle Immobilie
Einfach, schnell und diskret in der Direktsuche


© 2026 - E & G Real Estate GmbH