E & G IMMOBILIEN > Gewerbeimmobilien > Moderne Bürofläche
Aussenansicht
Besprechung
Eingangsbereich
Büro
Büro
1. OG
Aussenansicht
Aussenansicht
Besprechung
Eingangsbereich
Büro
Büro
1. OG
Aussenansicht

Moderne Bürofläche

Stuttgart

11,00
Miete € pro m²
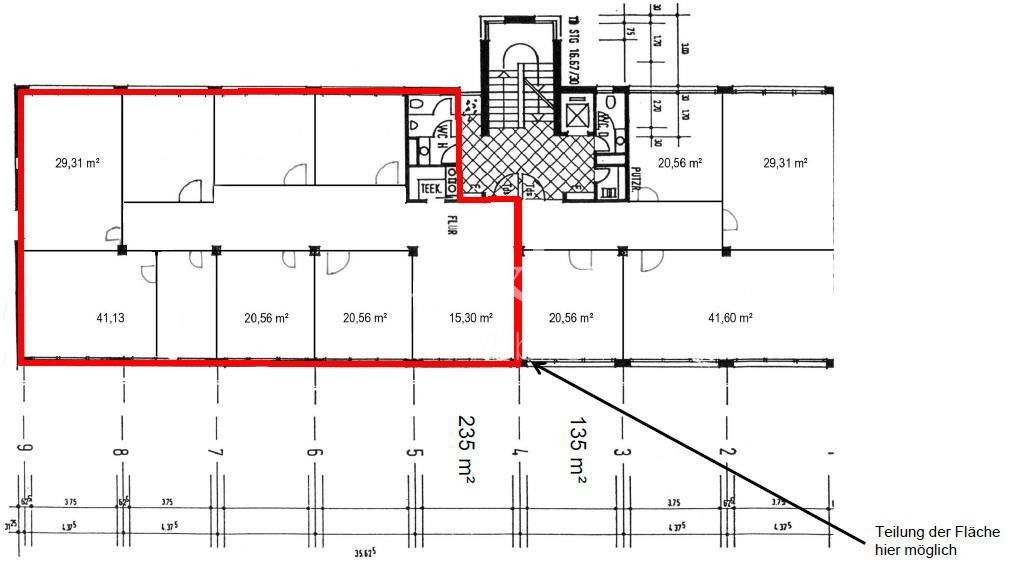
235
Fläche teilbar ab (m²)

Das Industriegebiet Stuttgart-Vaihingen/Möhringen mit namhaften, teilweise weltweit tätigen Unternehmen mit ca. 20.000 Mitarbeitern, befindet sich in verkehrsgünstiger Lage. Die Autobahn A 8 ist in wenigen Minuten mit dem Auto zu erreichen. Der Flughafen Stuttgart ist ca. 8 Minuten entfernt. Die Haltestelle der Buslinie 80 ist nur ca. 170 m vom Objekt entfernt, fußläufig ist man 10 Gehminuten zur nächsten U-Bahnhaltestelle unterwegs. Mit dem Bus ist der Vaihinger Bahnhof in Kürze erreichbar und hat somit über die S-Bahn eine direkte Verbindung an den Flughafen sowie die Messe, die Stuttgarter Innenstadt und den Hauptbahnhof. Bei dem Objekt handelt es sich um ein modernes Bürogebäude, das 1986 fertiggestellt wurde. Die Büroräume bieten beste Voraussetzungen für komfortables Arbeiten. Die Architektur ist großzügig und die Optik überzeugt durch klare Formen und moderne Baumaterialien. Im Jahr 2014 wurden neue Energiesparfenster eingebaut. Die Räume erfüllen alle Anforderungen an ein repräsentatives Büro. Je Stockwerk steht eine kleine Teeküche sowie zwei getrennte Sanitärkerne zur Verfügung. Die angebotene Fläche befindet sich im 1. Obergeschoss.


Eckdaten

OBJEKTTYP
Büro/Praxis
ORT
Stuttgart
BÜRO- /PRAXIS­FLÄCHE IN M²
235
FLÄCHE TEILBAR AB (M²)
235
PROVISION
provisionsfrei
OBJEKTNUMMER
EuG10818

LAGEKRITERIEN

ENTFERNUNG NÄCHSTE AUTOBAHN
2.5 KM
ENTFERNUNG NÄCHSTER FLUGHAFEN
7.4 KM
ENTFERNUNG NÄCHSTE BUSHALTESTELLE
0.1 KM
ENTFERNUNG NÄCHSTER BAHNHOF
0.23 KM
Ausstattung / Objektdetails

Die Fläche besticht durch eine großzügige und hochwertige Ausstattung:

  • Personenaufzug
  • Energiesparfenster
  • Teppichboden
  • CAT 5 Verkabelung vorhanden
  • Glasfaseranschluss vorhanden
  • Teeküche
  • 4 Außenstellplätze je 50 EUR/Stück
Bitte lassen Sie Cookies zu,
um eine Karte von Google Maps anzuzeigen.

Kontakt

SPRECHEN SIE UNS AN!

Das könnte Sie auch interessieren

Finden Sie die individuelle Immobilie
Einfach, schnell und diskret in der Direktsuche


© 2026 - E & G Real Estate GmbH