E & G IMMOBILIEN > Gewerbeimmobilien > Neubau Büroflächen am Gaskessel mit NK Bindung!
Titelbild
Aufenthalt
Büro
Küche
Flur
Aufzug
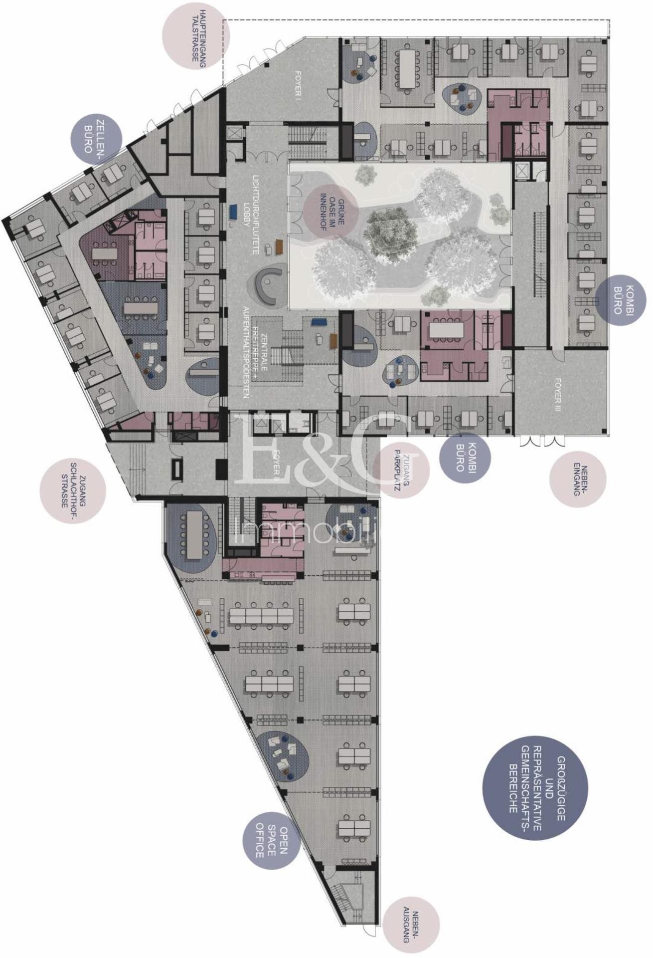
Erdgeschoss
1. Obergeschoss
2. Obergeschoss
3. Obergeschoss
Treppenhaus
Titelbild
Aufenthalt
Büro
Küche
Flur
Aufzug
Erdgeschoss
1. Obergeschoss
2. Obergeschoss
3. Obergeschoss
Treppenhaus

Neubau Büroflächen am Gaskessel mit NK Bindung!

Stuttgart

24,00
Miete € pro m²
286
Fläche teilbar ab (m²)

Valley-One24 befindet sich direkt am Stuttgarter Gaskessel und bietet eine helle Bürofläche, die durch eine moderne, großzügige Fensterfront besticht. Das Innenleben präsentiert sich topmodern und überzeugt mit einem durchdachten sowie zeitlosen architektonischen Design. Die Betonbauweise in Kombination mit einem unverkennbaren Innendesign schafft eine außergewöhnlich exklusive Arbeitsatmosphäre, die den Ansprüchen moderner Unternehmen gerecht wird. Neben der optimalen Erreichbarkeit – dank der U9, die in nur 15 Minuten den Weg in die Stuttgarter Innenstadt ermöglicht – erfüllt Valley-One24 den Passivhausstandard und setzt als Green Building neue Maßstäbe in Sachen Nachhaltigkeit. Abgerundet wird das Angebot durch einen begrünter Innenhof mit hoher Aufenthaltsqualität und eine repräsentative Lobby, die den stilvollen Gesamteindruck dieses zukunftsweisenden Standorts unterstreicht.


Eckdaten

OBJEKTTYP
Büro/Praxis
ORT
Stuttgart
BÜRO- /PRAXIS­FLÄCHE IN M²
8.002
FLÄCHE TEILBAR AB (M²)
286
PROVISION
provisionsfrei
OBJEKTNUMMER
EuG10988

LAGEKRITERIEN

ENTFERNUNG NÄCHSTER HAUPTBAHNHOF
3.5 KM
ENTFERNUNG NÄCHSTE AUTOBAHN
12.8 KM
ENTFERNUNG NÄCHSTER FLUGHAFEN
15.2 KM
Ausstattung / Objektdetails

Die hochmodernen Büroflächen verfügen über eine exklusive und qualitative Ausstattung:

  • Nebenkosten für 10 Jahre 1,50 EUR / m², davon 1,00 EUR für - Heizung und Kühlung gedeckelt
  • Großzügige Fensterfronten
  • Kühlung
  • Begrünter Innenhof mit Aufenthaltsqualität
  • Dachterrasse
  • Repräsentative Lobby
  • Hochwertige Ausstattungsmaterialien
  • Fahrradboxen
  • Glasfaseranschluss / CAT 7 Verkabelung
Bitte lassen Sie Cookies zu,
um eine Karte von Google Maps anzuzeigen.

Kontakt

SPRECHEN SIE UNS AN!

Das könnte Sie auch interessieren

Finden Sie die individuelle Immobilie
Einfach, schnell und diskret in der Direktsuche


© 2025 - E & G Real Estate GmbH