E & G IMMOBILIEN > Gewerbeimmobilien > Zweckmässige BÜROFLÄCHEN
Außenansicht
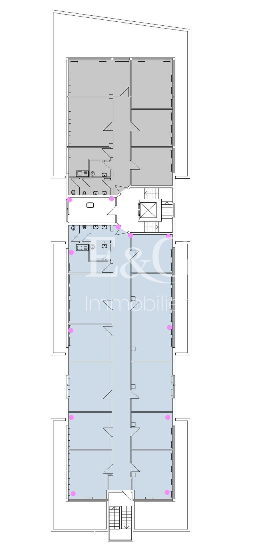
1. Obergeschoss
3. Obergeschoss
Büro
Außenansicht
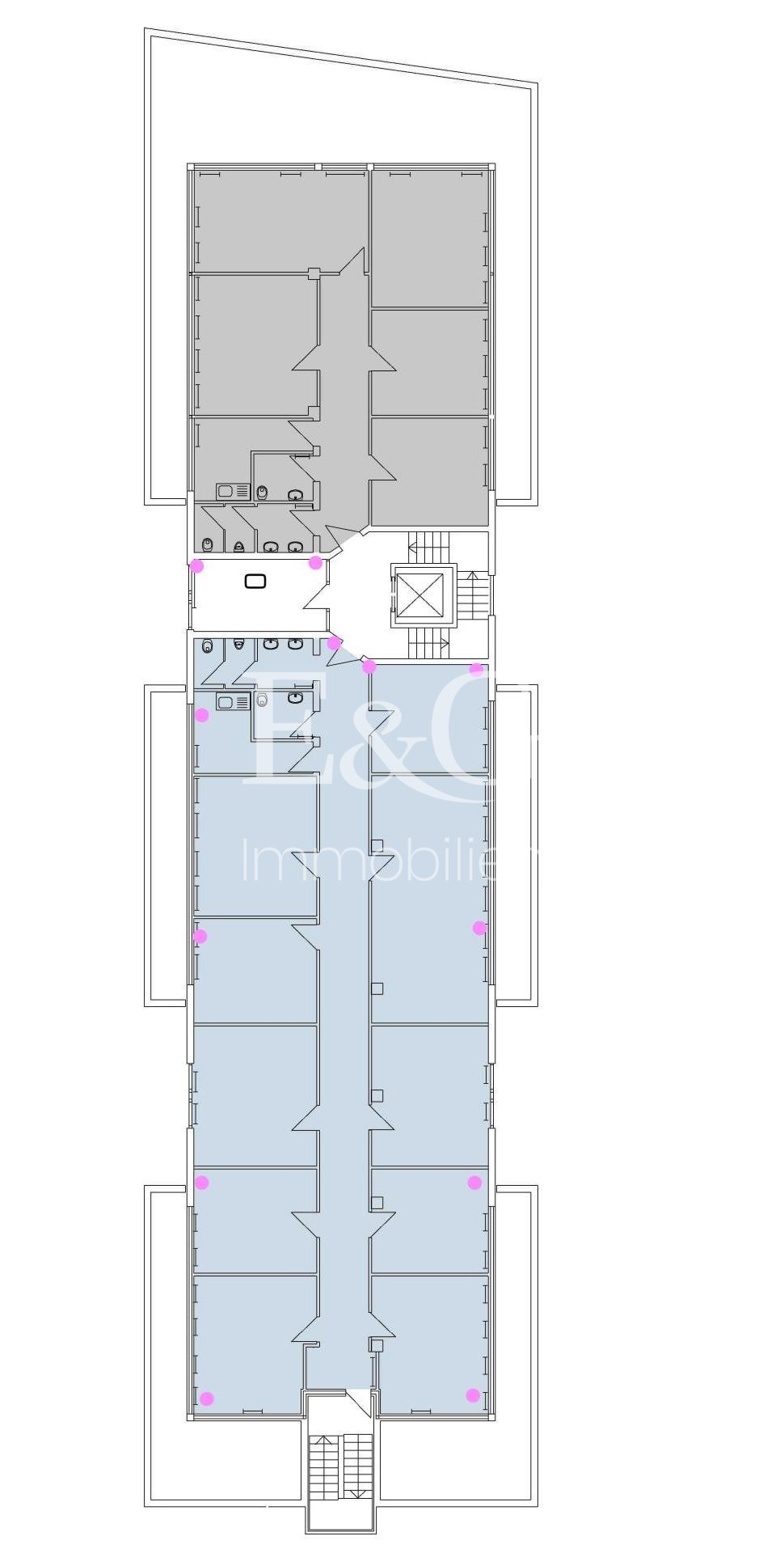
1. Obergeschoss
3. Obergeschoss
Büro

Zweckmässige BÜROFLÄCHEN

Sindelfingen

10,00
Miete € pro m²
136
Fläche teilbar ab (m²)

Die 1994 errichtete Gewerbeimmobilie in der Neckarstraße 16 in Sindelfingen bietet zweckmäßige Büro- und Praxisflächen, die ab sofort verfügbar sind. Helle Räume mit klarer Grundrissstruktur ermöglichen eine flexible Aufteilung und individuelle Nutzung. Der gepflegte Zustand und die funktionale Architektur schaffen ein professionelles Umfeld für Dienstleister, Praxen oder klassische Büronutzungen. Im Objekt aktuell verfügbare Flächen: 1. OG (EH1) - 358,1 m² 1. OG (EH2) - 238,8 m² 2. OG (EH1) - 358,1 m² 2. OG (EH2) - 238,8 m² 3. OG (EH1) - 278,8 m² 3. OG (EH2) - 136,5 m²


Eckdaten

OBJEKTTYP
Büro/Praxis
ORT
Sindelfingen
BÜRO- /PRAXIS­FLÄCHE IN M²
1.609
FLÄCHE TEILBAR AB (M²)
136
BAUJAHR
1994
PROVISION
provisionsfrei
Nebenkosten in €/Monat
2.8
OBJEKTNUMMER
EuG11197

LAGEKRITERIEN

ENTFERNUNG NÄCHSTER HAUPTBAHNHOF
19.5 KM
ENTFERNUNG NÄCHSTE AUTOBAHN
1.5 KM
ENTFERNUNG NÄCHSTER FLUGHAFEN
16.8 KM
Ausstattung / Objektdetails

Die Fläche verfügt über folgende Ausstattung:

  • Teppichboden
  • Aufzug
  • TG Plätze
  • Außenjalousien elektrisch
  • Behindertenbühne
  • Deckenbeleuchtung
  • 2 WC
  • EBK
  • Lamellen
Bitte lassen Sie Cookies zu,
um eine Karte von Google Maps anzuzeigen.

Kontakt

SPRECHEN SIE UNS AN!

Das könnte Sie auch interessieren

Finden Sie die individuelle Immobilie
Einfach, schnell und diskret in der Direktsuche


© 2026 - E & G Real Estate GmbH