E & G IMMOBILIEN > Gewerbeimmobilien > "Kurzfristig beziehbar: Attraktive Neubaufläche im SDK Campus"
Titelbild
Büro
IMG_5358
IMG_6779
Eingang
Küche
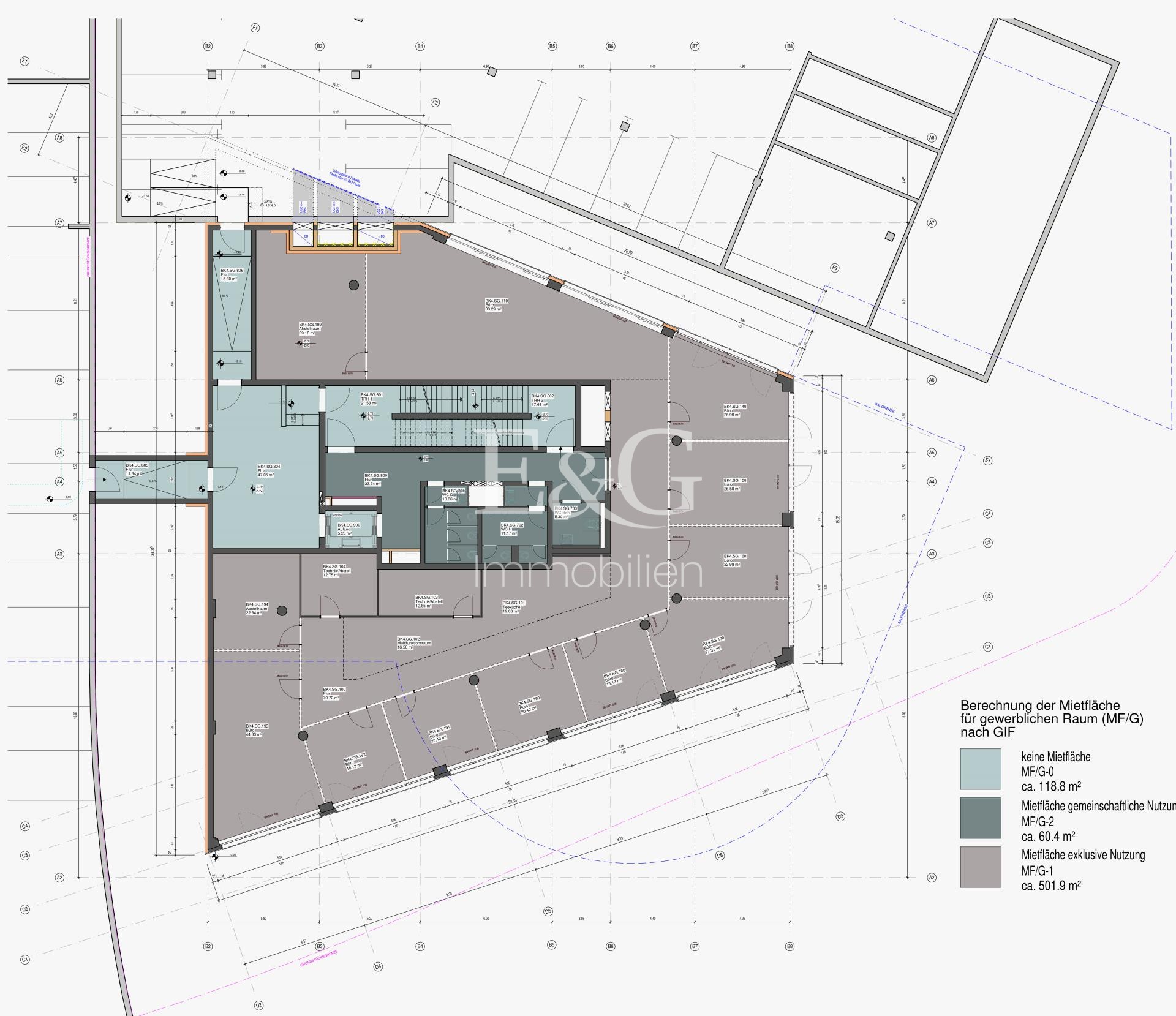
Sockelgeschoss
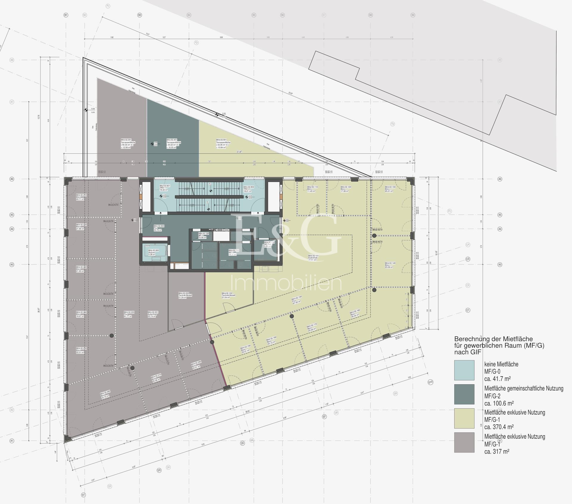
2. Obergeschoss
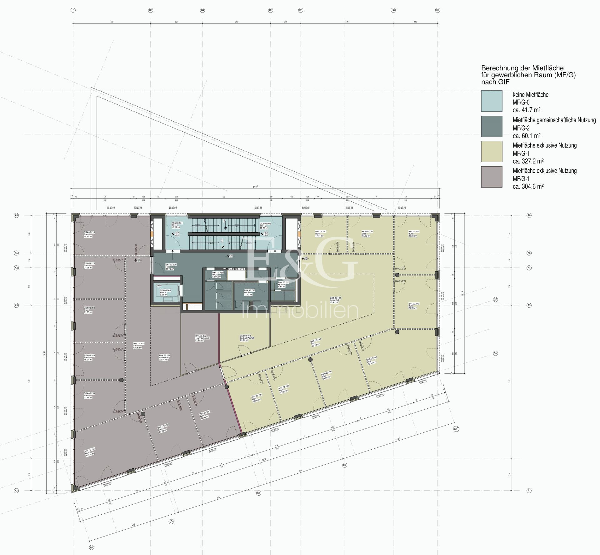
3.-5. Obergeschoss
Titelbild
Büro
IMG_5358
IMG_6779
Eingang
Küche
Sockelgeschoss
2. Obergeschoss
3.-5. Obergeschoss

"Kurzfristig beziehbar: Attraktive Neubaufläche im SDK Campus"

Fellbach

auf Anfrage
Preis
274
Fläche teilbar ab (m²)

Der SDK Campus in Fellbach bietet moderne Neubauflächen im Erstbezug, die höchste Ansprüche an Ausstattung und Funktionalität erfüllen. Die durchdacht gestalteten Innenräume und liebevoll angelegten Außenbereiche schaffen flexible Arbeitswelten sowie hochwertige Pausen- und Aufenthaltszonen. Dank der direkten Lage am Bahnhof Fellbach genießen Mieter eine hervorragende ÖPNV-Anbindung, während der fußläufig erreichbare Ortskern für optimale Nahversorgung sorgt. Fellbach, eine Stadt in Baden-Württemberg und Teil der Region Mittlerer Neckar sowie der europäischen Metropolregion Stuttgart, bildet zusammen mit Waiblingen, der Kreisstadt des Rems-Murr-Kreises, ein bedeutendes Mittelzentrum. Eingebettet im Süden des Neckarbeckens auf einer Hochfläche zwischen Neckar und Remstal, beeindruckt die Stadt durch markante Erhebungen wie den Kappelberg (469 m) und den Kernen (512,7 m) sowie durch das nördlich in das sogenannte "Schmidener Feld" reichende Stadtgebiet. Die verkehrstechnische Anbindung ist ebenso exzellent: Die B29 am östlichen Ortsrand verknüpft mit der B14, und ein untertunnelter Abschnitt leitet den Verkehr der alten B14 effizient unter der Stadt hindurch. Somit vereint der SDK Campus in Fellbach modernste Arbeitswelten mit optimaler Erreichbarkeit und einem lebendigen urbanen Umfeld – ein idealer Standort für zukunftsorientierte Unternehmen. Im Objekt aktuell verfügbare Flächen: UG (Lager) - 30 m² Sockelgeschoss - 589 m² 2. OG (MB1) - 378 m² 2. OG (MB2) - 408 m² 3. OG (MB1) - 379 m² 3. OG (MB2) - 353 m² 4. OG (MB1) - 379 m² 4. OG (MB2) - 353 m² 5. OG (MB1) - 375 m² 5. OG (MB2) - 379 m²


Eckdaten

OBJEKTTYP
Büro/Praxis
ORT
Fellbach
BÜRO- /PRAXIS­FLÄCHE IN M²
3.981
FLÄCHE TEILBAR AB (M²)
274
PROVISION
provisionsfrei
OBJEKTNUMMER
EuG11203
Ausstattung / Objektdetails

Die Flächen verfügen über eine großzügige Ausstattung:

  • Dachterrasse
  • Duschen
  • Teeküchen
  • Betonkerntemperierung mit integrierter Lüftung (heizen/kühlen)
  • Hohlraumboden
  • Elektroverteilung über Bodentanks
  • Beleuchtung über Stehleuchten
  • Mechanische Be- und Entlüftung
  • Elektrisch steuerbare Außenjalousien
  • Tiefgarage
  • Ladeinfrastruktur für E-Mobilität geplant
  • Mietflächen nach Absprache gestaltbar (Einzel-/Gruppen-/Großraumbüro)
Bitte lassen Sie Cookies zu,
um eine Karte von Google Maps anzuzeigen.

Kontakt

SPRECHEN SIE UNS AN!

Das könnte Sie auch interessieren

Finden Sie die individuelle Immobilie
Einfach, schnell und diskret in der Direktsuche


© 2026 - E & G Real Estate GmbH