E & G IMMOBILIEN > Gewerbeimmobilien > SEHR GUT ANGEBUNDENES BÜROGEBÄUDE
Außenansicht
Treppenhaus
Flur
Empfang
Luftbild
Innenhof
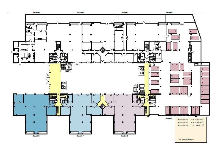
Sockelgeschoss
1. OG
EG Bauteil H
Ansicht
Außenansicht
Treppenhaus
Flur
Empfang
Luftbild
Innenhof
Sockelgeschoss
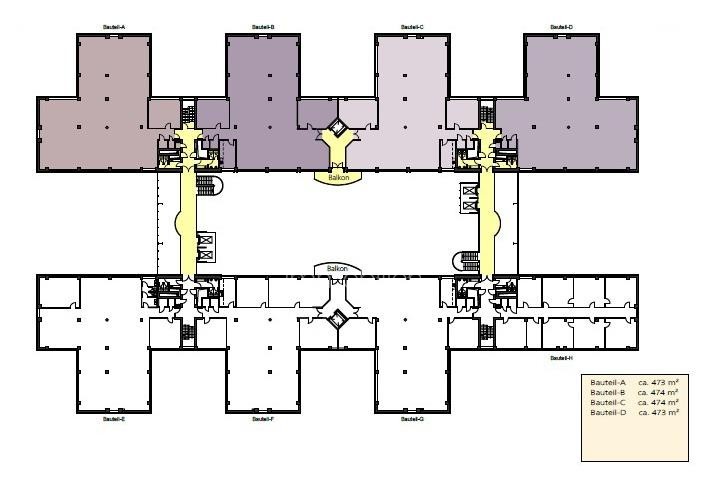
1. OG
EG Bauteil H
Ansicht

SEHR GUT ANGEBUNDENES BÜROGEBÄUDE

Böblingen

11,90
Miete € pro m²
321
Fläche teilbar ab (m²)

Das 6-geschossige Gebäude bietet eine großzügige Raumhöhe von ca. 3 Metern im Bürobereich und ermöglicht eine flexible Raumaufteilung, die sich an die individuellen Bedürfnisse der Mieter anpassen lässt. Ein besonderer Highlight ist der begrünte Innenhof mit Glasdach, der für eine angenehme Atmosphäre sorgt und als Rückzugsort dient. Zusätzlich sind Balkone in Richtung Innenhof vorhanden, die den Mietern weiteren Raum zur Erholung bieten. Im Objekt aktuell verfügbare Flächen: SG - 1.388 m² (teilbar ab 459 m²) EG - 321 m² 1. OG - 1.894 m² (teilbar ab 473 m²)


Eckdaten

OBJEKTTYP
Büro/Praxis
ORT
Böblingen
BÜRO- /PRAXIS­FLÄCHE IN M²
3.603
FLÄCHE TEILBAR AB (M²)
321
PROVISION
provisionsfrei
OBJEKTNUMMER
EuG11235

LAGEKRITERIEN

ENTFERNUNG NÄCHSTER HAUPTBAHNHOF
25.2 KM
ENTFERNUNG NÄCHSTE AUTOBAHN
2.4 KM
ENTFERNUNG NÄCHSTER FLUGHAFEN
23.5 KM
ENTFERNUNG NÄCHSTE BUSHALTESTELLE
0.19 KM
Ausstattung / Objektdetails

Die Flächen verfügen über großzügige Ausstattung:

  • Außenliegender Sonnenschutz
  • Hohlraum- und Doppelböden
  • Barrierefreier Zugang
  • 6 Personenaufzüge
  • Zahlreiche PKW-Stellplätze in der Tiefgarage und im Parkhaus
  • Kundenparkplätze
  • Kantine
  • Klimatisierte Einheiten
Bitte lassen Sie Cookies zu,
um eine Karte von Google Maps anzuzeigen.

Kontakt

SPRECHEN SIE UNS AN!

Das könnte Sie auch interessieren

Finden Sie die individuelle Immobilie
Einfach, schnell und diskret in der Direktsuche


© 2026 - E & G Real Estate GmbH