E & G IMMOBILIEN > Gewerbeimmobilien > Büro oder Praxis in Feuerbach
Außenaufnahme
1. OG Büro
1. OG Open Space
1. OG Büro
Küche
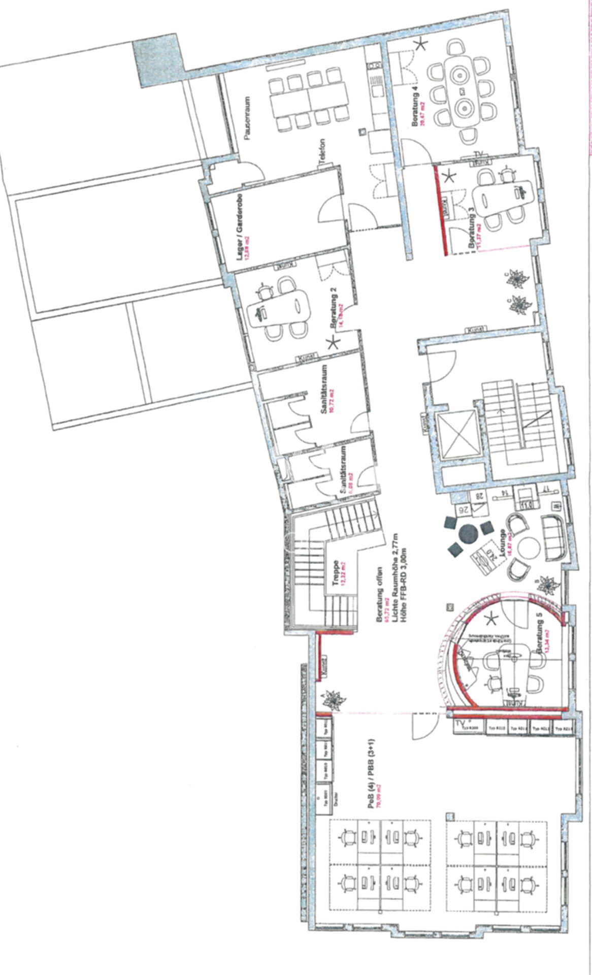
1. Obergeschoss
Büro
Außenaufnahme
1. OG Büro
1. OG Open Space
1. OG Büro
Küche
1. Obergeschoss
Büro

Büro oder Praxis in Feuerbach

Stuttgart

17,50
Miete € pro m²
147
Fläche teilbar ab (m²)

Diese Bürofläche überzeugt durch ihre zentrale Lage im Herzen von Feuerbach an einer stark frequentierten Straße, die eine hohe Sichtbarkeit und Werbewirksamkeit gewährleistet. Für Pausen und Geschäftsessen stehen in unmittelbarer Umgebung zahlreiche Cafés, Bäckereien und Restaurants zur Verfügung. Die Anbindung an den öffentlichen Nahverkehr ist ideal: Die U-Bahn-Haltestelle Wilhelm-Geiger-Platz ist in nur sieben Minuten fußläufig erreichbar, von dort bringt Sie die U6 in zehn Minuten direkt zum Stuttgarter Hauptbahnhof. Damit ist der Standort sowohl mit dem Auto als auch mit den öffentlichen Verkehrsmitteln bestens erreichbar.


Eckdaten

OBJEKTTYP
Büro/Praxis
ORT
Stuttgart
BÜRO- /PRAXIS­FLÄCHE IN M²
427
FLÄCHE TEILBAR AB (M²)
147
PROVISION
provisionsfrei
OBJEKTNUMMER
EuG11622

LAGEKRITERIEN

ENTFERNUNG NÄCHSTER HAUPTBAHNHOF
5.5 KM
ENTFERNUNG NÄCHSTE AUTOBAHN
8.6 KM
ENTFERNUNG NÄCHSTER FLUGHAFEN
33 KM
Ausstattung / Objektdetails

Die Fläche besticht durch eine großzügige Ausstattung:

  • CAT-7 Verkabelung, Cat-6 Verkabelung
  • Kühlung teilweise vorhanden
  • Barrierefreier Zugang
  • Öffenbare Fenster
  • Teppichboden/Laminatboden
  • Aussenliegender Sonnenschutz
  • Deckenspots/Pendelleuchten
  • Doppel-/Hohlraumboden, Fensterbankkabelkanäle
Bitte lassen Sie Cookies zu,
um eine Karte von Google Maps anzuzeigen.

Kontakt

SPRECHEN SIE UNS AN!

Das könnte Sie auch interessieren

Finden Sie die individuelle Immobilie
Einfach, schnell und diskret in der Direktsuche


© 2026 - E & G Real Estate GmbH