E & G IMMOBILIEN > Gewerbeimmobilien > Flächen im STEP 7.2
Außenansicht
Treppenhaus
Treppenhaus
Büro
Büro
Büro
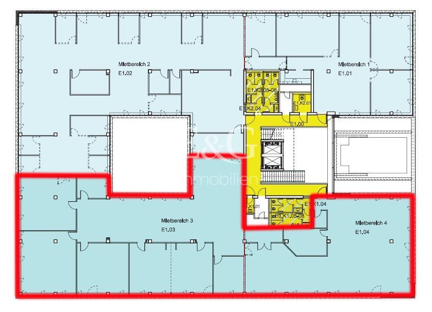
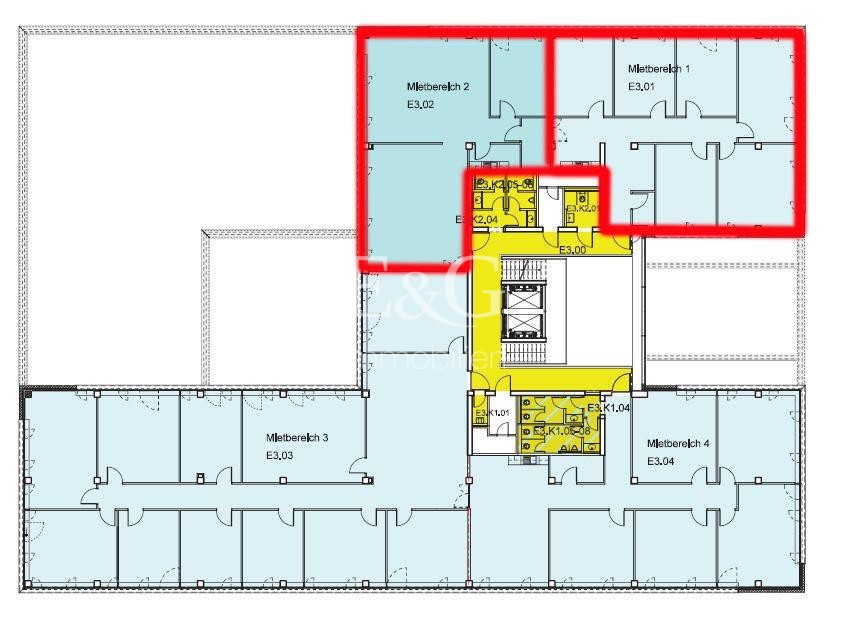
EG
1.OG
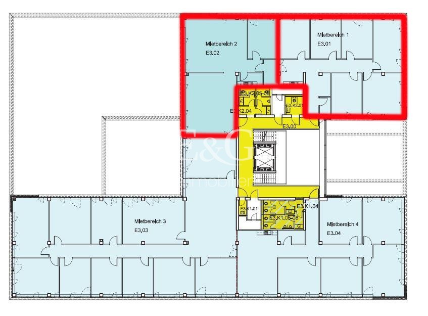
3. OG
4.OG
Titelbild
Außenansicht
Treppenhaus
Treppenhaus
Büro
Büro
Büro
EG
1.OG
3. OG
4.OG
Titelbild

Flächen im STEP 7.2

Stuttgart

16,50
Miete € pro m²
176
Fläche teilbar ab (m²)

Der STEP Stuttgarter Engineering Park befindet sich an einem erstklassigen Standort im Südwesten der Landeshauptstadt Stuttgart, im Ortsteil Stuttgart-Vaihingen, und verfügt über ideale Verkehrsanbindungen. Die S-Bahnhaltestelle "Österfeld" grenzt unmittelbar an das STEP-Areal an, eine Omnibus-Haltestelle befindet sich ebenfalls in nächster Nähe. Über die angrenzende B14 sowie den direkten Autobahnanschluss an die A8 und A81 ist das Objekt zudem bequem mit dem Pkw erreichbar, was eine schnelle und optimale Anbindung an den Flughafen Stuttgart (ca. 11 km) und die Messe ermöglicht – ein entscheidender Vorteil insbesondere für internationale Geschäftskontakte. Der Hauptbahnhof Stuttgart und das Stadtzentrum liegen jeweils nur rund 10,7 km entfernt. Darüber hinaus stehen in Laufnähe bei der S-Bahnhaltestelle "Österfeld" 514 Stellplätze in einem Park-and-Ride-Parkhaus zur Verfügung. Die B14 ist in etwa 750 m, die B27 in ca. 5 km, die Autobahnen A8 und A81 in rund 4,5 km zu erreichen. Die S-Bahn-Linien S1, S2, S3 und S11 liegen etwa 400 m entfernt.


Eckdaten

OBJEKTTYP
Büro/Praxis
ORT
Stuttgart
BÜRO- /PRAXIS­FLÄCHE IN M²
2.826
FLÄCHE TEILBAR AB (M²)
176
PROVISION
provisionsfrei
OBJEKTNUMMER
EuG11850

LAGEKRITERIEN

ENTFERNUNG NÄCHSTER HAUPTBAHNHOF
1.6 KM
ENTFERNUNG NÄCHSTE AUTOBAHN
2 KM
ENTFERNUNG NÄCHSTER FLUGHAFEN
11 KM
ENTFERNUNG NÄCHSTER BAHNHOF
1.2 KM
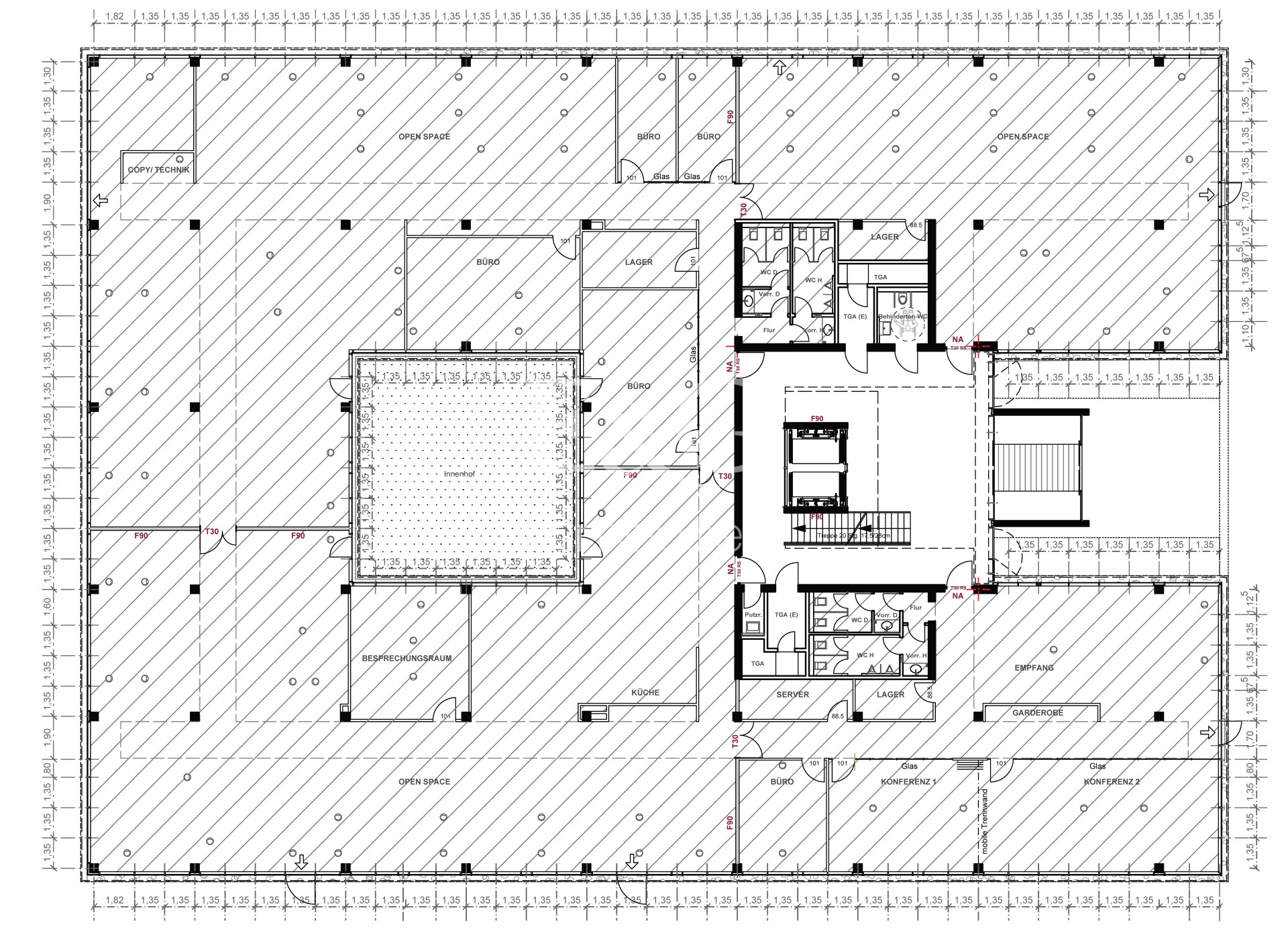
Ausstattung / Objektdetails

Das STEP 7.2 ist hochmodern und großzügig ausgestattet:

  • Moderner und hochwertiger Standard
  • Repräsentativer Eingang
  • Großzügige Fensterfronten
  • Moderne Teeküche
  • Hohlraumboden mit Bodentanks
  • Flexible Stehleuchten
  • Betonkernaktivierung
  • Außenliegender Sonnenschutz
  • Exklusiv nutzbarer Innenhof
Bitte lassen Sie Cookies zu,
um eine Karte von Google Maps anzuzeigen.

Kontakt

SPRECHEN SIE UNS AN!

Das könnte Sie auch interessieren

Finden Sie die individuelle Immobilie
Einfach, schnell und diskret in der Direktsuche


© 2026 - E & G Real Estate GmbH