E & G IMMOBILIEN > Gewerbeimmobilien > Attraktives Bürogebäude im Gewerbegebiet Echterdingen!
Außenansicht
Außenansicht
Büro
Büro
Büro
Büro
Büro
Büro
Büro
Büro
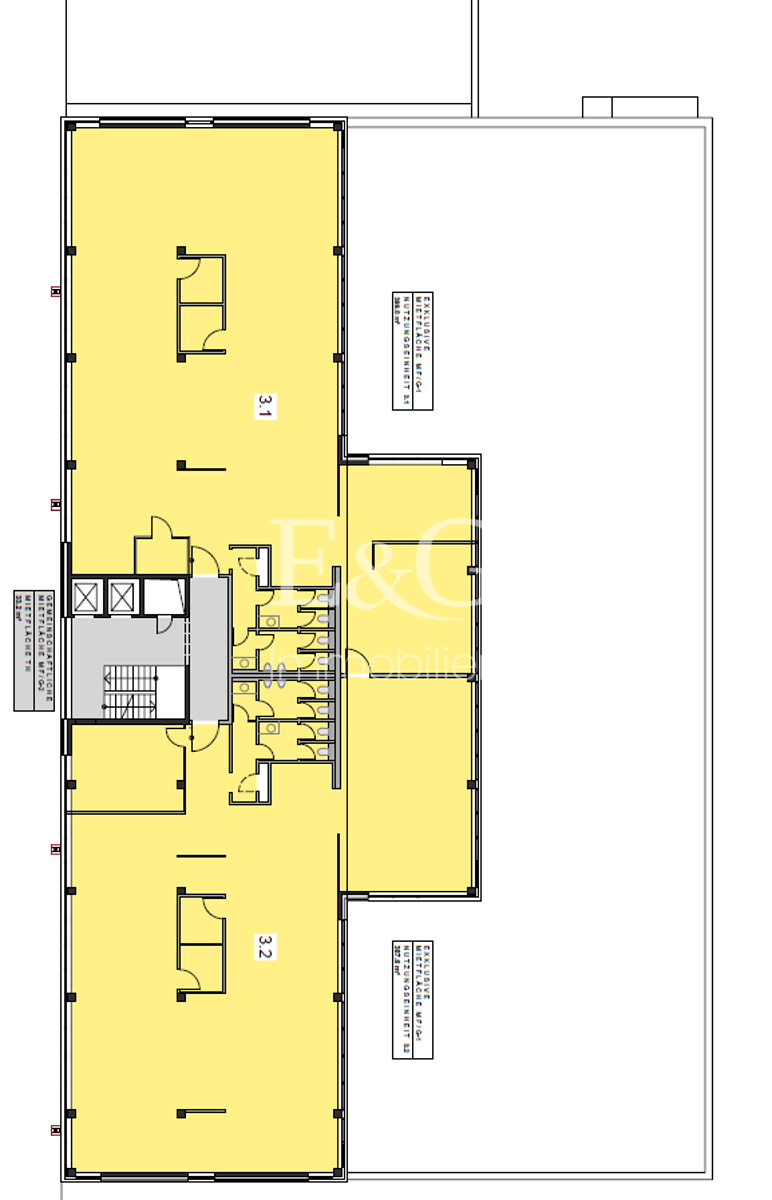
Grundriss Ebene 3
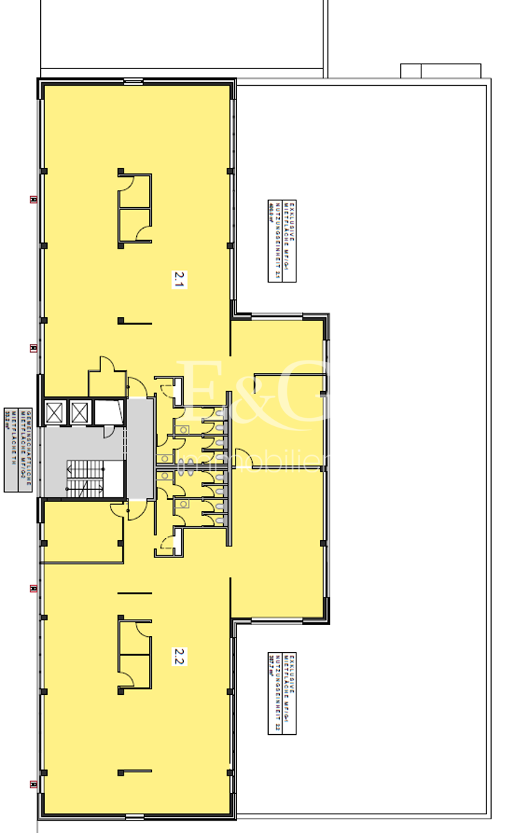
Grundriss Ebene 4
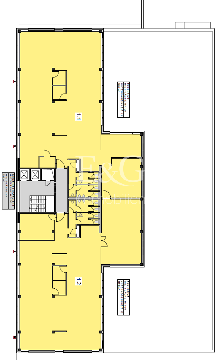
Grundriss Ebene 5
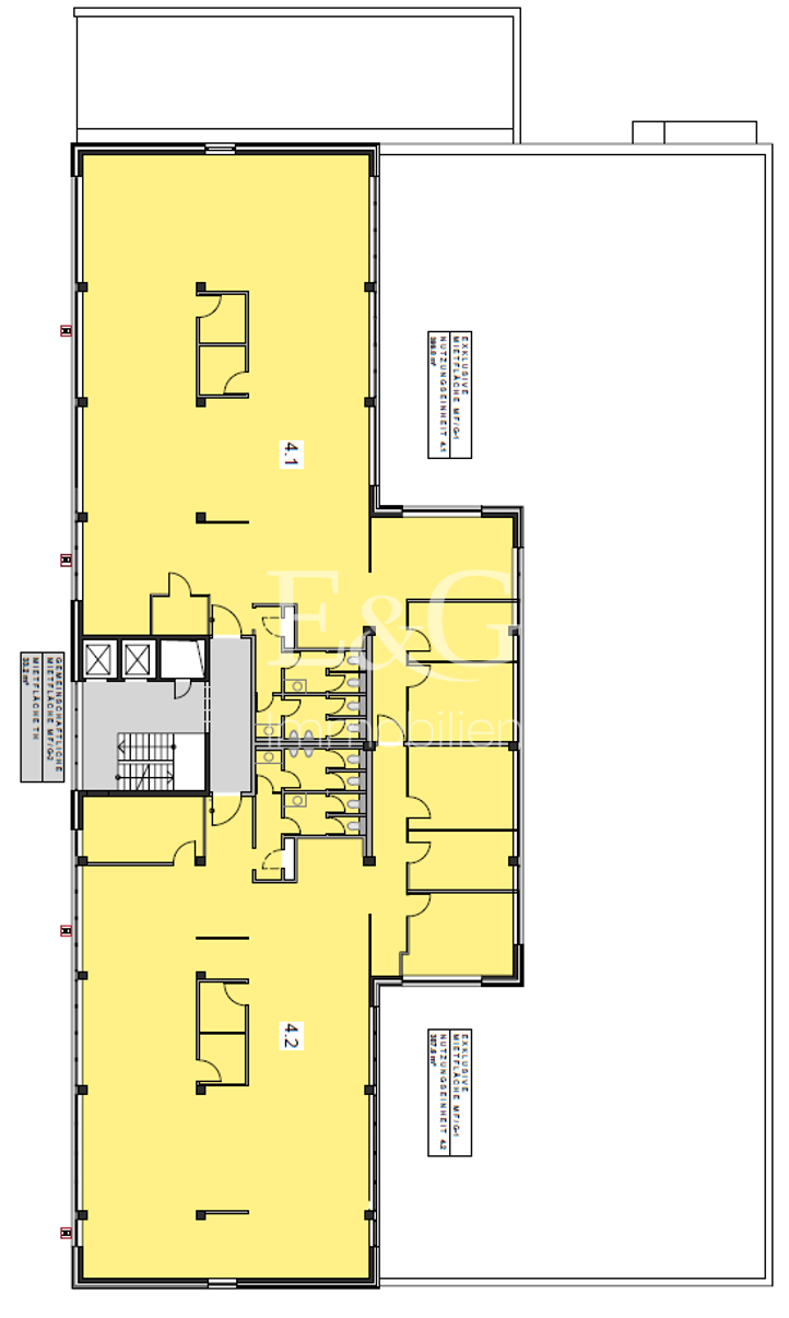
Grundriss Ebene 6
Außenansicht
Außenansicht
Büro
Büro
Büro
Büro
Büro
Büro
Büro
Büro
Grundriss Ebene 3
Grundriss Ebene 4
Grundriss Ebene 5
Grundriss Ebene 6

Attraktives Bürogebäude im Gewerbegebiet Echterdingen!

Leinfelden-Echterdingen

15,00
Miete € pro m²
787
Fläche teilbar ab (m²)

Das viergeschossige Bürogebäude in der Gutenbergstraße 20 hat eine Nutzfläche von insgesamt ca. 3.148 m² und bietet sich neben einer etagenweisen Vermietung auch hervorragend als Single-Tenant-Objekt an. Die hochwertige Natursteinfassade und die großzügigen Glasflächen in der Eingangshalle sowie dem Treppenhaus prägen ein repräsentatives und freundliches Ambiente. Zwei Personenaufzüge erschließen die Obergeschosse. Die Büroflächen werden durch großzügige Fensterflächen hervorragend belichtet. Für ein angenehmes Raumklima ist bauseitig eine Kühlung durch Betonkernaktivierung vorgesehen. Genügend Stellplätze stehen durch die hauseigenen Parkdecks auf drei Ebenen zur Verfügung.


Eckdaten

OBJEKTTYP
Büro/Praxis
ORT
Leinfelden-Echterdingen
BÜRO- /PRAXIS­FLÄCHE IN M²
3.148
FLÄCHE TEILBAR AB (M²)
787
PROVISION
provisionsfrei
OBJEKTNUMMER
EuG12079

LAGEKRITERIEN

ENTFERNUNG NÄCHSTE AUTOBAHN
2.4 KM
ENTFERNUNG NÄCHSTER FLUGHAFEN
2.9 KM
ENTFERNUNG NÄCHSTER BAHNHOF
1.1 KM
Ausstattung / Objektdetails
  • Hochwertige Natursteinfassade
  • Kühlung mit Betonkernaktivierung
  • Flexible Grundrisse
  • Innenlamellen als Blendschutz
  • Elektrisch steuerbare Außenjalousien
  • Barrierefreier Zugang über Rampe
  • Großzügige Tiefgarage
Bitte lassen Sie Cookies zu,
um eine Karte von Google Maps anzuzeigen.

Kontakt

SPRECHEN SIE UNS AN!

Das könnte Sie auch interessieren

Finden Sie die individuelle Immobilie
Einfach, schnell und diskret in der Direktsuche


© 2026 - E & G Real Estate GmbH