E & G IMMOBILIEN > Gewerbeimmobilien > Vermietung moderner Büroflächen im "City Plaza"
Außenansicht
Büro
Büro
Küche 3.OG
Büro/Einzelhandel EG
Büro 3.OG
Aufenthalt
Büro 3.OG
Küche
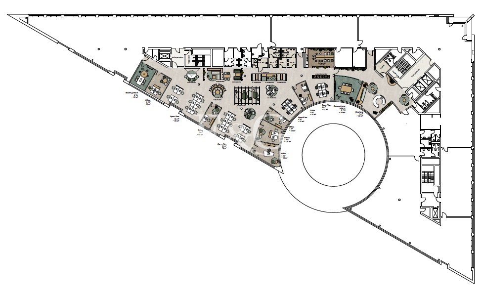
EG_470 m²
3.OG_890 m²
3. OG_890 m²
4.OG_835 m² + 867m²
4.OG_1.702 m²
5.OG_2.726 m²
5. OG_2.726 m²
Büro
Außenansicht
Büro
Büro
Küche 3.OG
Büro/Einzelhandel EG
Büro 3.OG
Aufenthalt
Büro 3.OG
Küche
EG_470 m²
3.OG_890 m²
3. OG_890 m²
4.OG_835 m² + 867m²
4.OG_1.702 m²
5.OG_2.726 m²
5. OG_2.726 m²
Büro

Vermietung moderner Büroflächen im "City Plaza"

Stuttgart

25,00
Miete € pro m²
470
Fläche teilbar ab (m²)

Dieses hochwertige und repräsentative Geschäftshaus, das im Jahr 2002 in moderner und bemerkenswerter Architektur fertiggestellt wurde, besticht in bester Lage. Der dreieckige Gebäudekörper verfügt über einen modernen und repräsentativen Eingangsbereich mit einem hochwertigen Foyer und Empfangsbereich. Die Ausstattung sowie die flexible Aufteilung der Flächen erfolgen ganz nach Mieterwunsch und werden an die speziellen Bedürfnisse des Mieters angepasst. Hervorzuheben ist zudem die DNGB Gold Zertifizierung des Gebäudes, die seinen hohen Standard unterstreicht. Die zur Vermietung kommende Bürofläche befindet sich in zentralster Innenstadtlage, direkt am Rotebühlplatz mit dem wichtigen ÖPNV-Knotenpunkt "Stadtmitte". In unmittelbarer Nachbarschaft laden die Einkaufsmeile Königstraße sowie die Calwer Passage zum Bummeln und Verweilen ein. Eine direkte Anbindung an die innerstädtische B 27 mit Anschluss an den City-Ring, an die Bundesstraßen B 10 und B 14 zur Bundesautobahn A 8 sowie A 81 und zum Flughafen sorgt für optimale Erreichbarkeit und verkehrstechnische Vorteile. Im Objekt aktuell verfügbare Flächen: EG - 470 m² 3. OG - 890 m² 4. OG (Büro 1) - 835 m² 4. OG (Büro 2) - 867 m² 5. OG - 2.726 m²


Eckdaten

OBJEKTTYP
Büro/Praxis
ORT
Stuttgart
BÜRO- /PRAXIS­FLÄCHE IN M²
5.788
FLÄCHE TEILBAR AB (M²)
470
BAUJAHR
2002
PROVISION
provisionsfrei
OBJEKTNUMMER
EuG1539

LAGEKRITERIEN

ENTFERNUNG NÄCHSTER HAUPTBAHNHOF
1.3 KM
ENTFERNUNG NÄCHSTE AUTOBAHN
15 KM
ENTFERNUNG NÄCHSTER FLUGHAFEN
15 KM
Ausstattung / Objektdetails

Die anmietbaren Flächen verfügen über folgende Ausstattung:

  • Sonnenschutz außenliegend / elektrisch
  • Be- und Entlüftung mit unterstützender Kühlung
  • LED-Beleuchtung
  • Personenaufzüge
  • Hauseigene Tiefgarage
  • Hohlraum-/Doppelböden
  • Raumanpassung in Abstimmung möglich
Bitte lassen Sie Cookies zu,
um eine Karte von Google Maps anzuzeigen.

Kontakt

SPRECHEN SIE UNS AN!

Das könnte Sie auch interessieren

Finden Sie die individuelle Immobilie
Einfach, schnell und diskret in der Direktsuche


© 2026 - E & G Real Estate GmbH