E & G IMMOBILIEN > Gewerbeimmobilien > Mietfläche mit traumhafter Aussicht im "Calwer Turm"!
Außenansicht
Außenansicht
Konferenzraum
Büro1
Großraumbüro
Büro2
Büro3
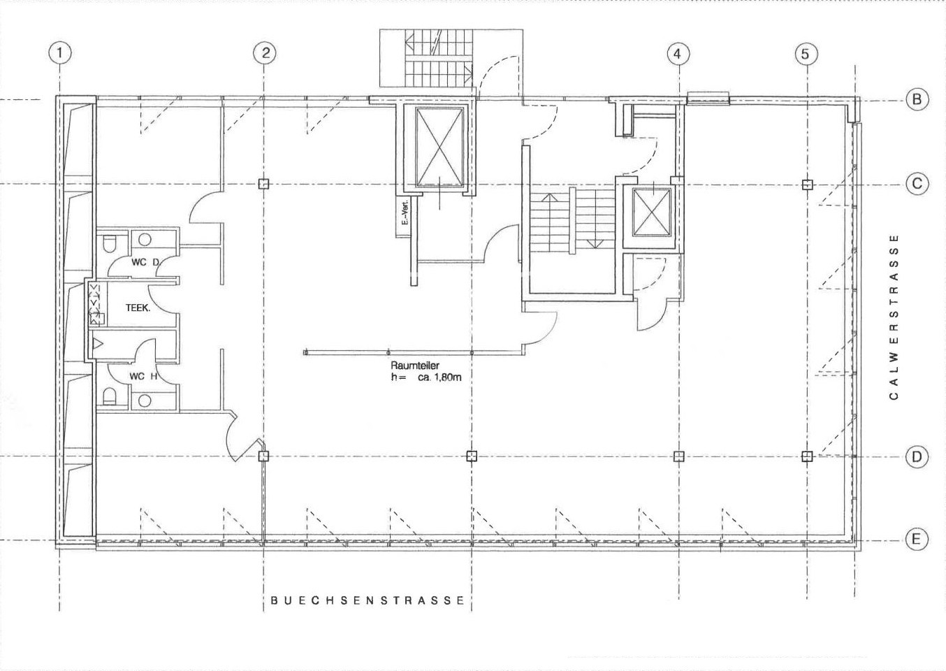
Grundriss 8.OG
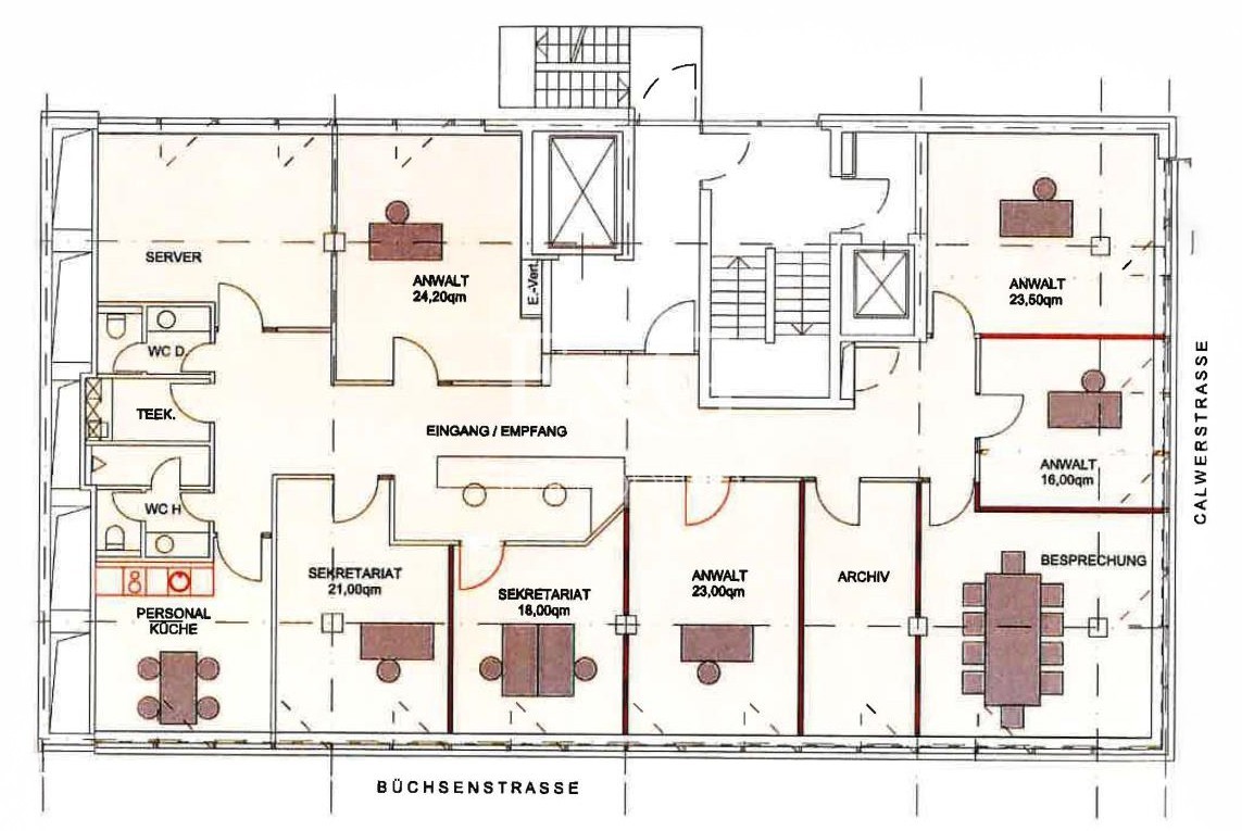
Mögliche Aufteilungsvariante
Ausblick
Büroausblick
Außenansicht
Außenansicht
Konferenzraum
Büro1
Großraumbüro
Büro2
Büro3
Grundriss 8.OG
Mögliche Aufteilungsvariante
Ausblick
Büroausblick

Mietfläche mit traumhafter Aussicht im "Calwer Turm"!

Stuttgart

28,00
Miete € pro m²

Beim Calwer Turm handelt es sich um ein attraktives Büro- und Geschäftsgebäude, das sich direkt am Zugang der S-Bahn-Haltestelle "Stadtmitte" befindet und ist damit optimal an den ÖPNV angebunden. Die Calwer Straße ist eine Parallelstraße zur Königstraße, der Haupteinkaufsmeile von Stuttgart. Durch die hervorragende City-Lage befinden sich sämtliche Einkaufsmöglichkeiten sowie zahlreiche Gastronomieangebote im Umfeld. Die zur Vermietung kommende Fläche befindet sich im 8. Obergeschoss.


Eckdaten

OBJEKTTYP
Büro/Praxis
ORT
Stuttgart
BÜRO- /PRAXIS­FLÄCHE IN M²
288
BAUJAHR
1970
PROVISION
provisionsfrei
OBJEKTNUMMER
EuG1937

LAGEKRITERIEN

ENTFERNUNG NÄCHSTE AUTOBAHN
12.5 KM
ENTFERNUNG NÄCHSTER FLUGHAFEN
14.5 KM
Ausstattung / Objektdetails

Die Flächen im 8. Obergeschoss sind modern ausgestattet mit:

  • Klimatisierung
  • Netzwerkverkabelung
  • Abgehängten Decken
  • Arbeitsplatzgerechten Rasterleuchten
  • Zugangskontrolle über Videoüberwachung
  • Sonnen- und Blendschutz
  • Öffenbaren Fenstern
  • Lagerraum im Untergeschoss
  • Anpassung Raumaufteilung möglich, ggf. mit Mietaufschlag
Bitte lassen Sie Cookies zu,
um eine Karte von Google Maps anzuzeigen.

Kontakt

SPRECHEN SIE UNS AN!

Das könnte Sie auch interessieren

Finden Sie die individuelle Immobilie
Einfach, schnell und diskret in der Direktsuche


© 2026 - E & G Real Estate GmbH