E & G IMMOBILIEN > Gewerbeimmobilien > Günstige Gewerbesteuer | sehr gute Infrastruktur | zeitnaher Bezug
Außenansicht
Außenansicht
Innenansicht
Innenansicht
Innenansicht
Innenansicht
Innenansicht
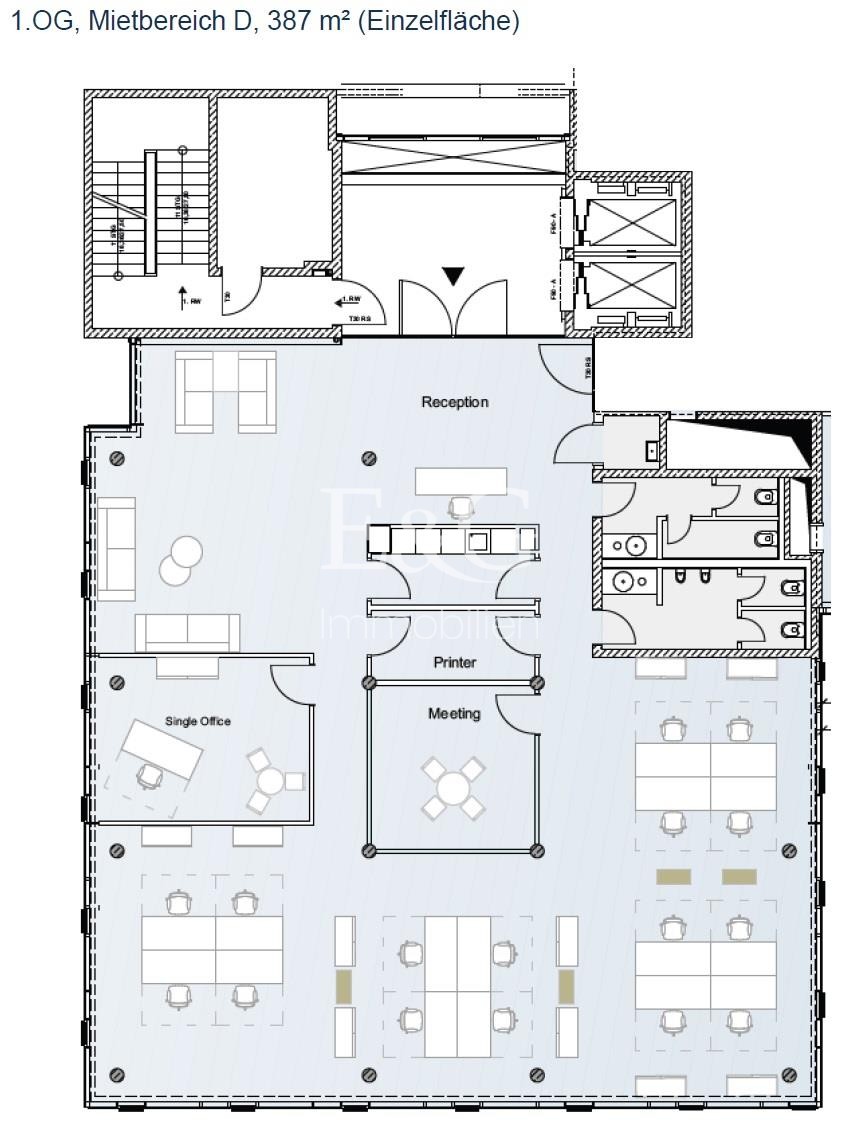
1. Obergeschoss D
1. Obergeschoss B, C
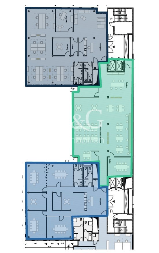
1. Obergeschoss B,C,D
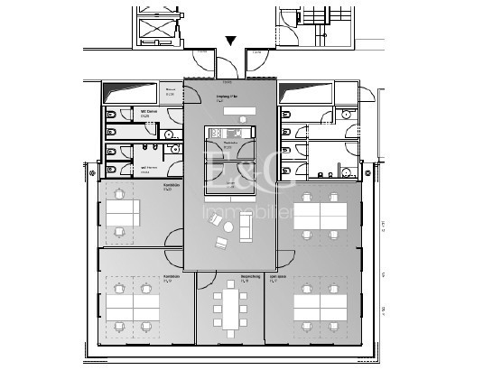
2. Obergeschoss A
4. Obergeschoss B
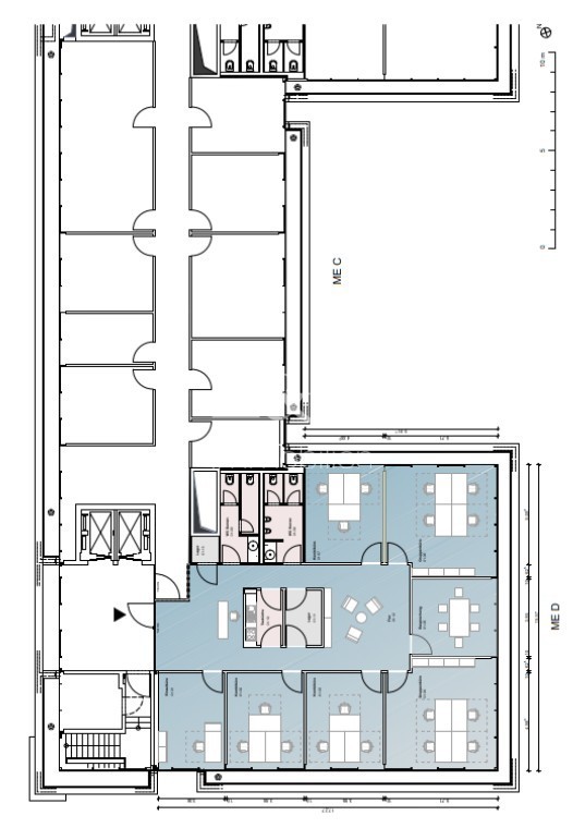
4. Obergeschoss C
4. Obergeschoss D
Außenansicht
Außenansicht
Innenansicht
Innenansicht
Innenansicht
Innenansicht
Innenansicht
1. Obergeschoss D
1. Obergeschoss B, C
1. Obergeschoss B,C,D
2. Obergeschoss A
4. Obergeschoss B
4. Obergeschoss C
4. Obergeschoss D

Günstige Gewerbesteuer | sehr gute Infrastruktur | zeitnaher Bezug

Unterföhring

14,50
Miete € pro m²
263
Fläche teilbar ab (m²)

- repräsentatives Bürogebäude - Baujahr 2001 - helle und attraktive Büroflächen, die nach Mieterwunsch aufgeteilt und ausgestattet werden - flexible Raumaufteilung


Eckdaten

OBJEKTTYP
Büro/Praxis
ORT
Unterföhring
BÜRO- /PRAXIS­FLÄCHE IN M²
2.589
FLÄCHE TEILBAR AB (M²)
263
BAUJAHR
2002
PROVISION
provisionsfrei
OBJEKTNUMMER
EuG20069

LAGEKRITERIEN

ENTFERNUNG NÄCHSTER HAUPTBAHNHOF
9 KM
ENTFERNUNG NÄCHSTE AUTOBAHN
5.4 KM
ENTFERNUNG NÄCHSTER FLUGHAFEN
28.2 KM
Ausstattung / Objektdetails
  • außenliegender Sonnenschutz
  • Teeküchen
  • Personenaufzug
  • Tiefgaragenstellplätze
  • Außenstellplätze
  • teilweise Kühlung
  • EDV-Verkabelung
Bitte lassen Sie Cookies zu,
um eine Karte von Google Maps anzuzeigen.

Kontakt

SPRECHEN SIE UNS AN!

Das könnte Sie auch interessieren

Finden Sie die individuelle Immobilie
Einfach, schnell und diskret in der Direktsuche


© 2026 - E & G Real Estate GmbH