E & G IMMOBILIEN > Gewerbeimmobilien > Attraktives Bürogebäude mit flexibler Aufteilung - Haidhausen
Außenansicht
Außenansicht
Innenhof
Terrasse
Besprecher
Innenansicht
Empfang
Innenansicht
1. Obergeschoss
2. Obergeschoss
4. Obergeschoss
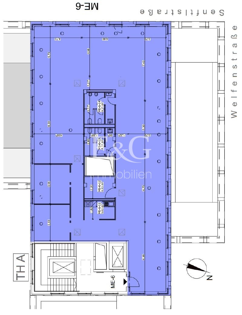
6. Obergeschoss
Außenansicht
Außenansicht
Innenhof
Terrasse
Besprecher
Innenansicht
Empfang
Innenansicht
1. Obergeschoss
2. Obergeschoss
4. Obergeschoss
6. Obergeschoss

Attraktives Bürogebäude mit flexibler Aufteilung - Haidhausen

München

21,00
Miete € pro m²
323
Fläche teilbar ab (m²)

Das Büro-und Geschäftsgebäude aus dem Jahr 2012 befindet sich im schönen Stadtteil Haidhausen. Das Gebäude besticht durch seine flexible Struktur sowie der hochwertigen Ausstattung.


Eckdaten

OBJEKTTYP
Büro/Praxis
ORT
München
BÜRO- /PRAXIS­FLÄCHE IN M²
2.245
FLÄCHE TEILBAR AB (M²)
323
BAUJAHR
2012
PROVISION
provisionsfrei
OBJEKTNUMMER
EuG6222

LAGEKRITERIEN

ENTFERNUNG NÄCHSTER HAUPTBAHNHOF
3.7 KM
ENTFERNUNG NÄCHSTE AUTOBAHN
3.2 KM
ENTFERNUNG NÄCHSTER FLUGHAFEN
37.7 KM
ENTFERNUNG NÄCHSTER BAHNHOF
1.2 KM
Ausstattung / Objektdetails
  • Büro-und Geschäftsgebäude
  • Baujahr 2012
  • DGNB Gold zertifiziert
  • Bodenbelag nach Mieterwunsch (in Absprache mit dem Vermieter)
  • EDV-Verkabelung über Hohlraumboden
  • große Fensterfronten mit außenliegendem Sonnenschutz
  • teilweise innenliegender Blendschutz
  • Teeküche
  • Personenaufzug
Bitte lassen Sie Cookies zu,
um eine Karte von Google Maps anzuzeigen.

Kontakt

SPRECHEN SIE UNS AN!

Das könnte Sie auch interessieren

Finden Sie die individuelle Immobilie
Einfach, schnell und diskret in der Direktsuche


© 2025 - E & G Real Estate GmbH