E & G IMMOBILIEN > Gewerbeimmobilien > Helle Büroflächen direkt an der BAB A 831
Titelbild
2. Obergeschoss
4. Obergeschoss
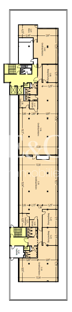
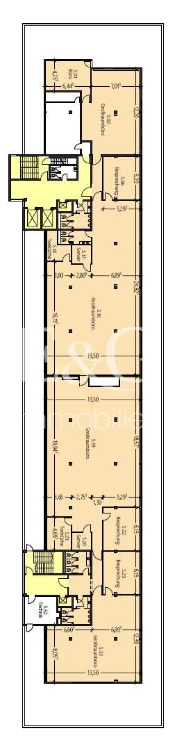
5. Obergeschoss
Titelbild
2. Obergeschoss
4. Obergeschoss
5. Obergeschoss

Helle Büroflächen direkt an der BAB A 831

Sindelfingen

15,00
Miete € pro m²
822
Fläche teilbar ab (m²)

Diese moderne Bürofläche liegt direkt an der A81 und bietet eine erstklassige Anbindung an Stuttgart sowie umliegende Städte. In der Nähe finden sich Hotels, Restaurants und Supermärkte, die den täglichen Bedarf decken. Das Objekt eignet sich hervorragend für Unternehmen, die eine optimale Verkehrsanbindung und eine zentrale Lage suchen.


Eckdaten

OBJEKTTYP
Büro/Praxis
ORT
Sindelfingen
BÜRO- /PRAXIS­FLÄCHE IN M²
4.930
FLÄCHE TEILBAR AB (M²)
822
PROVISION
provisionsfrei
OBJEKTNUMMER
EuG6801

LAGEKRITERIEN

ENTFERNUNG NÄCHSTER HAUPTBAHNHOF
18 KM
ENTFERNUNG NÄCHSTE AUTOBAHN
1.5 KM
ENTFERNUNG NÄCHSTER FLUGHAFEN
15 KM
Ausstattung / Objektdetails

Die Fläche verfügt über folgende Ausstattung:

  • Klimatisierung
  • Umbau nach Mieterwunsch
  • Eine Aufteilung in 2 Einheiten pro Etage a ca. 822 m² ist möglich
Bitte lassen Sie Cookies zu,
um eine Karte von Google Maps anzuzeigen.

Kontakt

SPRECHEN SIE UNS AN!

Das könnte Sie auch interessieren

Finden Sie die individuelle Immobilie
Einfach, schnell und diskret in der Direktsuche


© 2025 - E & G Real Estate GmbH