E & G IMMOBILIEN > Gewerbeimmobilien > Moderne Neubau Büros mit Terrassen und urbanem Flair
Außenansicht
Außenansicht
Visualisierung
Visualisierung
Visualisierung
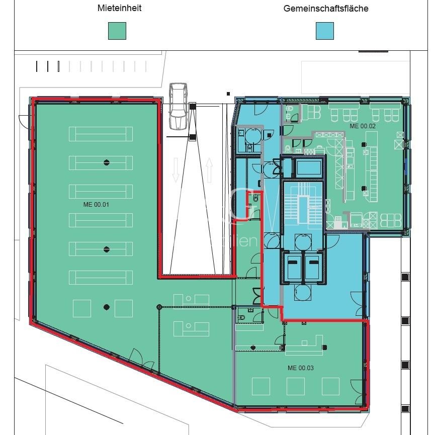
Erdgeschoss
3. Obergeschoss
Außenansicht
Außenansicht
Visualisierung
Visualisierung
Visualisierung
Erdgeschoss
3. Obergeschoss

Moderne Neubau Büros mit Terrassen und urbanem Flair

München

22,00
Miete € pro m²
406
Fläche teilbar ab (m²)

- Baujahr 2017 - Gebäudeensemble Büro-Wohnen-Einzelhandel - repräsentative Eingangsbereiche - helle Büroflächen - flexible Raumaufteilung - modernste Haus-/ und Klimatechnik - Kühlung optional - EDV- Verkabelung über Hohlraumboden - Raumhöhe EG:3,50 m - Achsmaß: ca. 1,35 m


Eckdaten

OBJEKTTYP
Büro/Praxis
ORT
München
BÜRO- /PRAXIS­FLÄCHE IN M²
1.396
FLÄCHE TEILBAR AB (M²)
406
BAUJAHR
2017
PROVISION
provisionsfrei
OBJEKTNUMMER
EuG7893

LAGEKRITERIEN

ENTFERNUNG NÄCHSTER HAUPTBAHNHOF
7.3 KM
ENTFERNUNG NÄCHSTE AUTOBAHN
1.8 KM
ENTFERNUNG NÄCHSTER FLUGHAFEN
31.3 KM
ENTFERNUNG NÄCHSTER BAHNHOF
1.8 KM
Ausstattung / Objektdetails
  • Neubau, Erstbezug
  • Gebäudeensemble Büro-Wohnen-Einzelhandel
  • repräsentative Eingangsbereiche
  • helle Büroflächen
  • Personenaufzüge
  • flexible Raumaufteilung
  • modernste Haus- und Klimatechnik
  • Terrassenflächen
  • Hohlraumboden mit EDV-Verkabelung
  • außenliegender Sonnenschutz
  • Stellplätze in der Tiefgarage verfügbar
Bitte lassen Sie Cookies zu,
um eine Karte von Google Maps anzuzeigen.

Kontakt

SPRECHEN SIE UNS AN!

Das könnte Sie auch interessieren

Finden Sie die individuelle Immobilie
Einfach, schnell und diskret in der Direktsuche


© 2026 - E & G Real Estate GmbH