E & G IMMOBILIEN > Gewerbeimmobilien > Neue Arbeitswelten in attraktivem Bürocampus
Titel
Aussenbild
Campus
Bürofläche
Besprechung
Empfang
Gemeinschaftsraum
Büro
Besprechung
Büro
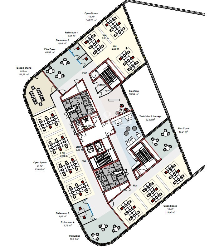
2. Obergeschoss
Lageplan
Gemeinschaftsraum
Titel
Aussenbild
Campus
Bürofläche
Besprechung
Empfang
Gemeinschaftsraum
Büro
Besprechung
Büro
2. Obergeschoss
Lageplan
Gemeinschaftsraum

Neue Arbeitswelten in attraktivem Bürocampus

Stuttgart

21,00
Miete € pro m²
520
Fläche teilbar ab (m²)

Der projektierte leo Business Campus wird als der neue führende Businessstandort in Stuttgart etabliert werden. Der Campus soll so angelegt werden, dass zwischen den Mietern der verschiedenen Gebäude Synergieeffekte entstehen können. Hierfür sollen unter anderem der großzügig gestaltete Innenhof oder die großen Dachterrassen genutzt werden. Der Bürokomplex wird auf höchsten Qualitätsstandards errichtet, sodass die Flächen den heutigen Bedürfnissen an Büroflächen gerecht werden. Unter anderem wird bei dem Bau des Gebäudes auf Nachhaltigkeit gesetzt, es wird die Gold-Zertifizierung nach DGNB angestrebt, was sich ebenfalls positiv auf die Nebenkostenzahlungen auswirken wird. Der Campus soll aus 3 Gebäuden bestehen, die durch ihre flexiblen Ausbauraster verschiedene Bürokonfigurationen ermöglichen. Großflächige Bürowelten auf einer Ebene mit variablen Tagungs- und Meetingräumen oder attraktive Haus-in-Haus-Konzepte lassen sich ebenso realisieren wie kleinteilige Büroeinheiten. Geplant ist eine Gebäudetechnik auf dem höchsten Standard, unter anderem mit Heizung, Kühlungs- und Klimatechnik mit individueller Einzelraumsteuerung sowie ein effektiver Schall- und Sonnenschutz sorgen für ein angenehmes, produktives Arbeitsumfeld. Großzügige Fensterflächen erlauben den Blick auf Weinberge und das nahe Grün rund um den leo Business Campus Stuttgart.


Eckdaten

OBJEKTTYP
Büro/Praxis
ORT
Stuttgart
BÜRO- /PRAXIS­FLÄCHE IN M²
1.115
FLÄCHE TEILBAR AB (M²)
520
BAUJAHR
2022
PROVISION
provisionsfrei
OBJEKTNUMMER
EuG10188

LAGEKRITERIEN

ENTFERNUNG NÄCHSTER HAUPTBAHNHOF
3.3 KM
ENTFERNUNG NÄCHSTE AUTOBAHN
10 KM
ENTFERNUNG ZUM ZENTRUM
4.2 KM
ENTFERNUNG NÄCHSTER FLUGHAFEN
16.5 KM
Ausstattung / Objektdetails
  • Nachhaltigkeitszertifikat DGNB GOLD
  • Helle Räume mit attaktiver Raumhöhe über 3 m
  • Kühldecken mit Akkustikfunktion
  • Stehleuchten mit Direkt-/Indirektanteil
  • Hochwertige Teppichfliesen und Vinylboden in Holzoptik
  • Datenverkabelung über Hohlraumböden
  • Attraktive Designelemente aus Holz
  • Think Tanks als Rückzugsmöglichkeit
  • Hauseigene Tiefgarage mit Stellplätzen
Bitte lassen Sie Cookies zu,
um eine Karte von Google Maps anzuzeigen.

Kontakt

SPRECHEN SIE UNS AN!

Das könnte Sie auch interessieren

Finden Sie die individuelle Immobilie
Einfach, schnell und diskret in der Direktsuche


© 2026 - E & G Real Estate GmbH