E & G IMMOBILIEN > Gewerbeimmobilien > LOFTS - Lifestyle Office Fitness Trends Sindelfingen
Eingang
Besprechung
Büro
Büro
Küche/Aufenthalt
Büro
Gebäudeübersicht
Bauteil 96, 1.OG
Bauteil 96, 2.OG
Bauteil 96 4.OG
Bauteil 96, EG
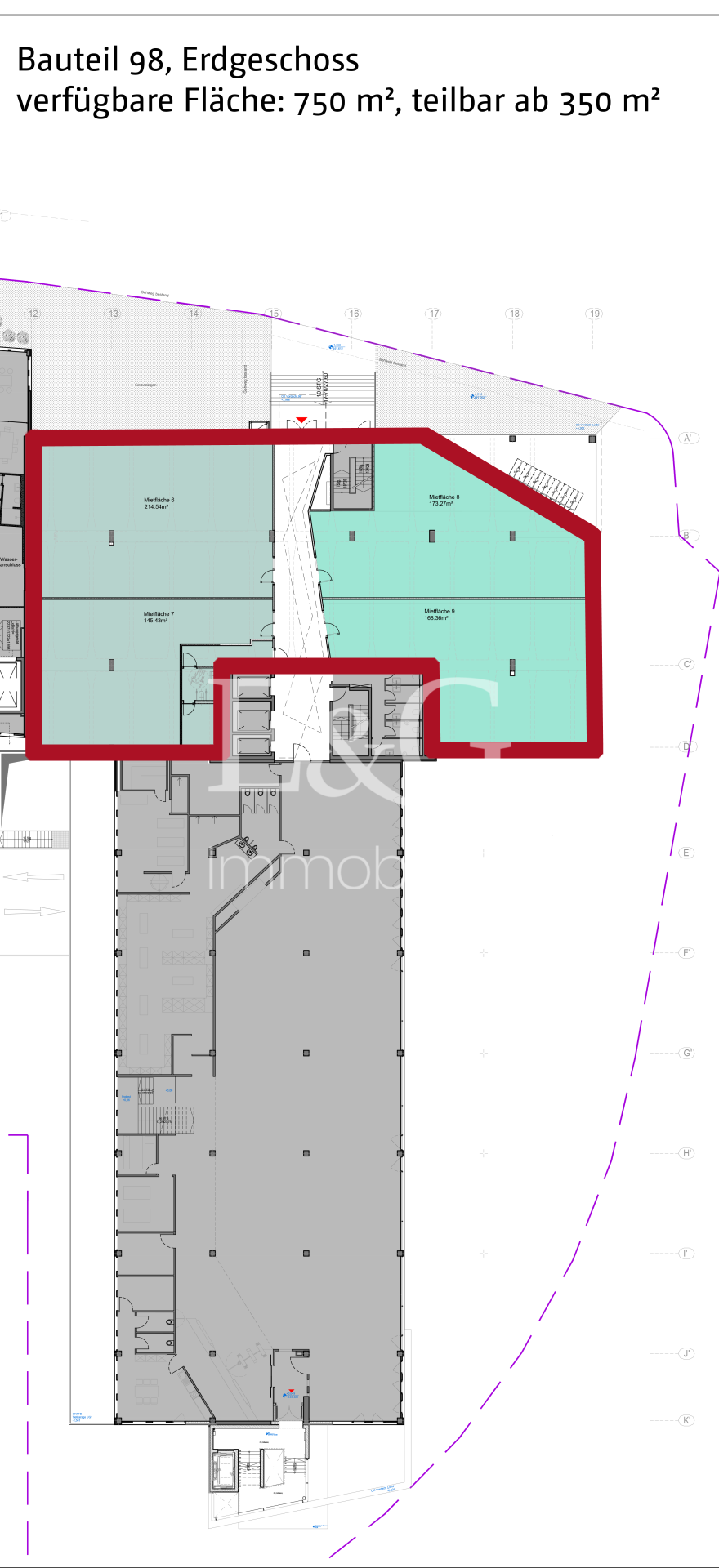
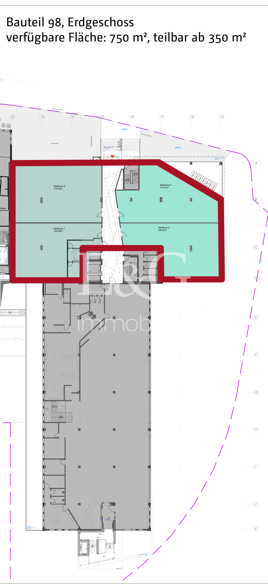
Bauteil 98, EG
Außenansicht
Eingang
Besprechung
Büro
Büro
Küche/Aufenthalt
Büro
Gebäudeübersicht
Bauteil 96, 1.OG
Bauteil 96, 2.OG
Bauteil 96 4.OG
Bauteil 96, EG
Bauteil 98, EG
Außenansicht

LOFTS - Lifestyle Office Fitness Trends Sindelfingen

Böblingen-Sindelfingen

16,50
Miete € pro m²
30
Fläche teilbar ab (m²)

Durch die gute Infrastruktur und den werbewirksamen Standort ist die Lage optimal. Das Objekt befindet sich im unmittelbaren Umfeld des Breuningerland Sindelfingen und der A 81, wodurch das Gebäude über eine optimale Verkehrsanbindung verfügt. Eine neue BAB Ausfahrt wird in unmittelbarer Nähe gebaut. Öffentliche Verkehrsmittel befinden sich ebenfalls in Laufnähe zum Objekt. Zur S-Bahnhaltestelle Goldberg sind es ca. 1000 Meter (3 Bushaltestellen entfernt) eine Bushaltestelle befindet sich direkt gegenüber des Bürohauses. Weitere Mieter im Gebäude: - XTRAFIT - Bundesbehörde - E-Infra - Simplan - Momenth Reha-Zentrum - Simplan - NXP - ITW Automotive - Trinity Church Im Objekt aktuell verfügbare Flächen: Bauteil 96: EG - 1.850 m² (teilbar ab 200 m²) 1. OG - 3.000 m² (teilbar ab 450 m²) 2. OG - 1.400 m² 2. OG - 1.000 m² (teilbar ab 30 m²) 4.OG - 1.200 m² (teilbar ab 400 m²) Bauteil 98: EG - 750 m² (teilbar ab 350 m²) 3. OG - 550 m² 5. OG - 390 m²


Eckdaten

OBJEKTTYP
Büro/Praxis
ORT
Böblingen-Sindelfingen
BÜRO- /PRAXIS­FLÄCHE IN M²
10.140
FLÄCHE TEILBAR AB (M²)
30
BAUJAHR
1976/1986
PROVISION
provisionsfrei
OBJEKTNUMMER
EuG10533

LAGEKRITERIEN

ENTFERNUNG NÄCHSTER HAUPTBAHNHOF
17.5 KM
ENTFERNUNG NÄCHSTE AUTOBAHN
3.3 KM
ENTFERNUNG NÄCHSTER FLUGHAFEN
15.8 KM
Ausstattung / Objektdetails

Die Flächen verfügen über folgende Ausstattung:

  • Verschiedene Ausbaumöglichkeiten
  • Fitnessstudio: XtraFit
  • Kindertagesstätte: Denk mit
  • Physiopraxis: Momenth
  • 400 PKW-Stellplätzen in der Tiefgarage
  • Über 60 Fahrradstellplätze
  • Duschen für Radfahrer
  • Glasfaseranschluss
  • Fernwärme
  • PV Mieterstrom (ab 2025)
  • E-Ladesäulen
  • Bauen im Bestand
  • Rohstoff Recycling



1.& 2.OG kann zusammenhängend angemietet werden

TG-Stellplätze: fest zugeorndet 85,00 EUR/Stück oder variabel (intelligentes Parksystem) 65,00 EUR/Stück

Bitte lassen Sie Cookies zu,
um eine Karte von Google Maps anzuzeigen.

Kontakt

SPRECHEN SIE UNS AN!

Das könnte Sie auch interessieren

Finden Sie die individuelle Immobilie
Einfach, schnell und diskret in der Direktsuche


© 2026 - E & G Real Estate GmbH