E & G IMMOBILIEN > Gewerbeimmobilien > Neubau Büro- und Dienstleistungsflächen im City Quartier Böblingen
Aussenaufnahme
Rohbau innen
Rohbau innen
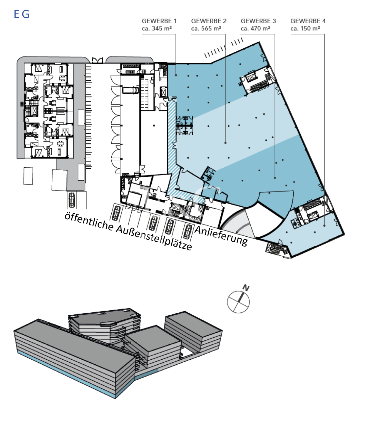
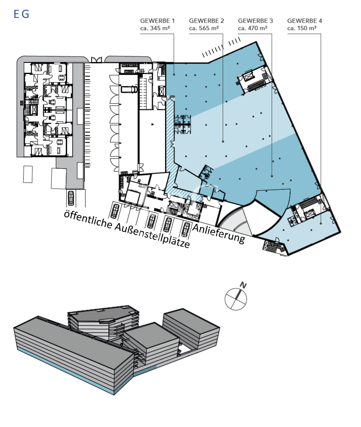
Erdgeschoss
1. Obergeschoss
Visualisierung 2
Aussenaufnahme
Rohbau innen
Rohbau innen
Erdgeschoss
1. Obergeschoss
Visualisierung 2

Neubau Büro- und Dienstleistungsflächen im City Quartier Böblingen

Böblingen

20,00
Miete € pro m²
115
Fläche teilbar ab (m²)

Die zentrale Lage im City Carré Böblingen überzeugt durch ihre hervorragende Infrastruktur. Der Autobahnanschluss an die A81 ist nur rund 1,4 km entfernt, die Bundesstraße B464 in etwa 8 km, sodass eine schnelle regionale und überregionale Erreichbarkeit gewährleistet ist. Die S-Bahn-Station Böblingen mit den Linien S1, S6, S11 und S60 befindet sich nur etwa 300 Meter entfernt, zudem halten mehrere Buslinien direkt vor dem Objekt. Der Stuttgarter Flughafen und die Neue Messe sind in rund 20 Minuten erreichbar. Im direkten Umfeld befinden sich zahlreiche Restaurants, Cafés und Einkaufsmöglichkeiten, die für eine optimale Nahversorgung sorgen. Das dynamische wirtschaftliche Umfeld ist geprägt von namhaften Unternehmen wie Daimler, Porsche, Bosch oder IBM, die in unmittelbarer Nähe ansässig sind. Im Objekt aktuell verfügbare Flächen: EG (EH1) - 345 m² EG (EH2) - 565 m² EG (EH3) - 470 m² EG (EH4) - 150 m² 1. OG (EH1) - 155 m² 1. OG (EH2) - 290 m² 1. OG (EH3) - 295 m² 1. OG (EH4) - 115 m²


Eckdaten

OBJEKTTYP
Büro/Praxis
ORT
Böblingen
BÜRO- /PRAXIS­FLÄCHE IN M²
2.385
FLÄCHE TEILBAR AB (M²)
115
PROVISION
provisionsfrei
OBJEKTNUMMER
EuG10539

LAGEKRITERIEN

ENTFERNUNG NÄCHSTER HAUPTBAHNHOF
20 KM
ENTFERNUNG NÄCHSTE AUTOBAHN
1.4 KM
ENTFERNUNG NÄCHSTER FLUGHAFEN
20 KM
ENTFERNUNG NÄCHSTE BUSHALTESTELLE
0.19 KM
Ausstattung / Objektdetails

Die Flächen verfügen über eine großzügige Ausstattung:

  • Barrierefreie Zugänge
  • 10 öffentliche Kurzzeit-Parkplätze für Besucher und Kunden
  • Fahrradstellplätze
  • Dezentrale Klima- und Lüftungsanlage
  • Die EG Flächen werden im veredelten Rohbau übergeben
  • 200 Wohnungen befinden sich im Carré
Bitte lassen Sie Cookies zu,
um eine Karte von Google Maps anzuzeigen.

Kontakt

SPRECHEN SIE UNS AN!

Das könnte Sie auch interessieren

Finden Sie die individuelle Immobilie
Einfach, schnell und diskret in der Direktsuche


© 2026 - E & G Real Estate GmbH