E & G IMMOBILIEN > Gewerbeimmobilien > Penthouse Büroflächen
Aussenaufnahme
Büro
Büro
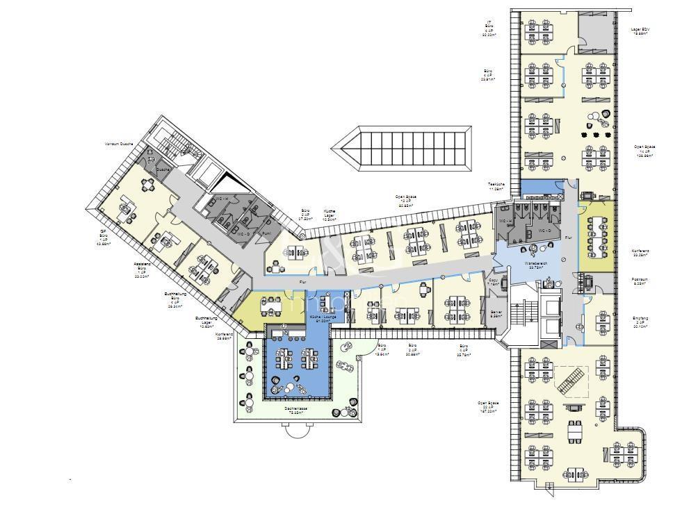
6. OG (Musterplanung)
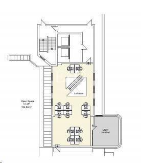
7. OG (Musterplanung)
Aussenaufnahme
Aussenaufnahme
Büro
Büro
6. OG (Musterplanung)
7. OG (Musterplanung)
Aussenaufnahme

Penthouse Büroflächen

Stuttgart

25,50
Miete € pro m²
1.445
Fläche teilbar ab (m²)

Ab Q2 2025 steht diese frisch sanierte Bürofläche zur Verfügung. Auf insgesamt 1.445 m², verteilt auf 131 m² im 7. OG und 1.314 m² im 6. OG, überzeugen bodentiefe Fenster für lichtdurchflutete Räumlichkeiten. Die modernen Flächen bieten flexible Nutzungsmöglichkeiten: Neben einem großzügigen Open-Space-Konzept können abgetrennte Einzelbüros und Besprechungsräume individuell gestaltet werden. Dank der repräsentativen Lage mitten in der Stuttgarter Innenstadt sind sämtliche Annehmlichkeiten des urbanen Lebens in unmittelbarer Nähe – von gemütlichen Cafés und Restaurants bis hin zu kulturellen Highlights. Nur vier Minuten zu Fuß trennen den Standort vom Schlossplatz, während die nahegelegenen U-Bahn-Haltestellen Börsenplatz und Schlossplatz einen schnellen Zugang zu den Linien U6, U7, U5, U12, U11, U15 und U14 ermöglichen. Dieses erstbezugfähige Objekt kombiniert moderne Architektur mit zentraler Lage und bietet so den idealen Rahmen für anspruchsvolle Unternehmen.


Eckdaten

OBJEKTTYP
Büro/Praxis
ORT
Stuttgart
BÜRO- /PRAXIS­FLÄCHE IN M²
1.445
FLÄCHE TEILBAR AB (M²)
1.445
PROVISION
provisionsfrei
OBJEKTNUMMER
EuG11461

LAGEKRITERIEN

ENTFERNUNG NÄCHSTER HAUPTBAHNHOF
0.85 KM
ENTFERNUNG NÄCHSTE AUTOBAHN
13.3 KM
ENTFERNUNG NÄCHSTER FLUGHAFEN
14.1 KM
ENTFERNUNG NÄCHSTE BUSHALTESTELLE
0.13 KM
ENTFERNUNG NÄCHSTER BAHNHOF
0.24 KM
Ausstattung / Objektdetails

Diese einzigartigen Büroflächen bestechen mit hochwertiger Ausstattung:

  • Teppich/Vinyl Boden
  • Teilklimatisierung
  • Brüstungskanäle
  • TG-Stellplätze
  • Terrasse
  • besetzter Empfang
  • Teeküche
  • Glasfaseranschluss vorhanden
Bitte lassen Sie Cookies zu,
um eine Karte von Google Maps anzuzeigen.

Kontakt

SPRECHEN SIE UNS AN!

Das könnte Sie auch interessieren

Finden Sie die individuelle Immobilie
Einfach, schnell und diskret in der Direktsuche


© 2026 - E & G Real Estate GmbH