E & G IMMOBILIEN > Gewerbeimmobilien > Spitzen-Büroflächen!
Außenansicht
Büro
Büro
Büro
1. OG
2.OG
Büro
Außenansicht
Büro
Büro
Büro
1. OG
2.OG
Büro

Spitzen-Büroflächen!

Böblingen

15,90
Miete € pro m²
429
Fläche teilbar ab (m²)

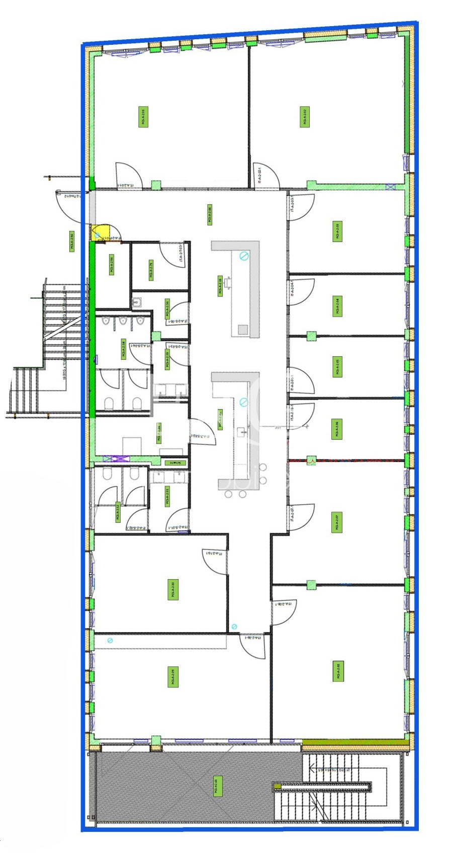
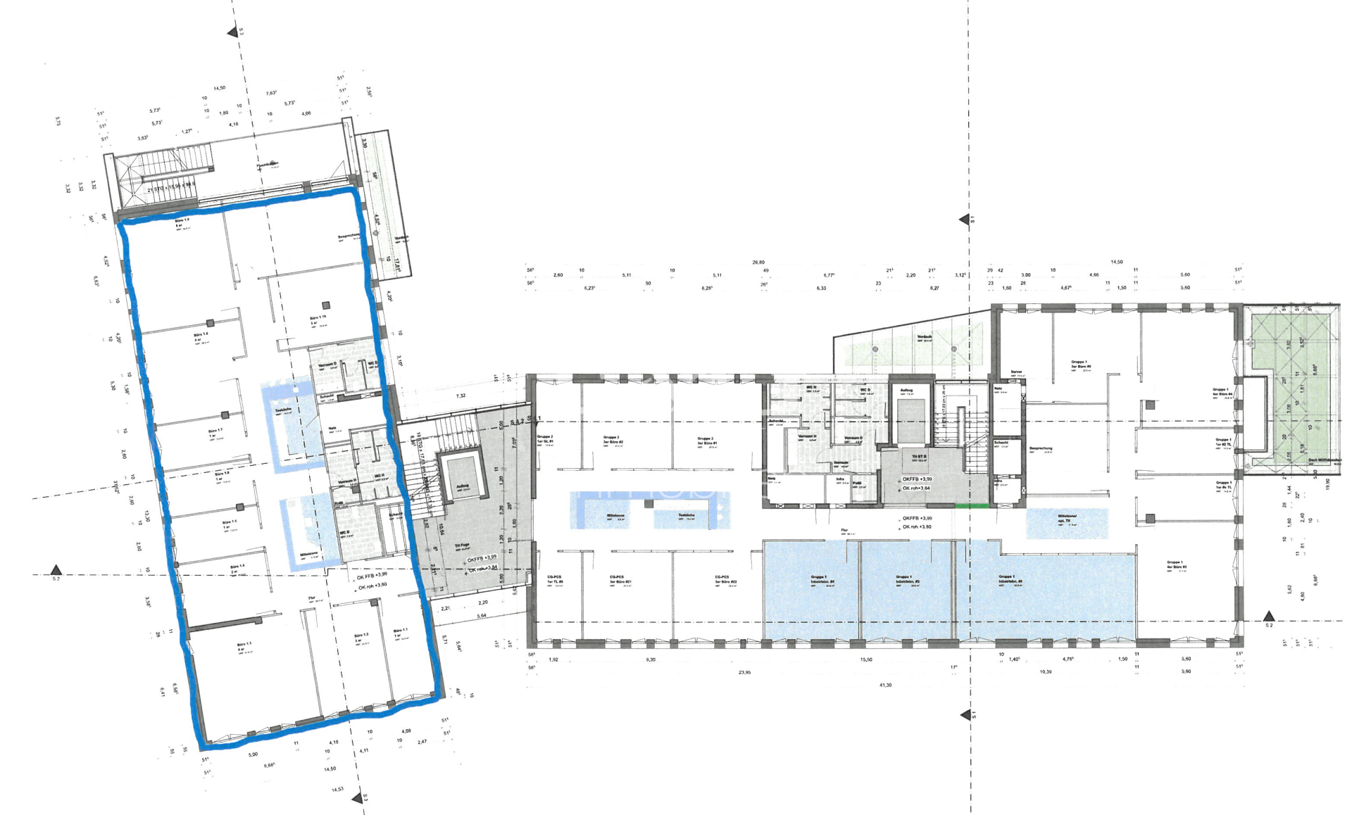
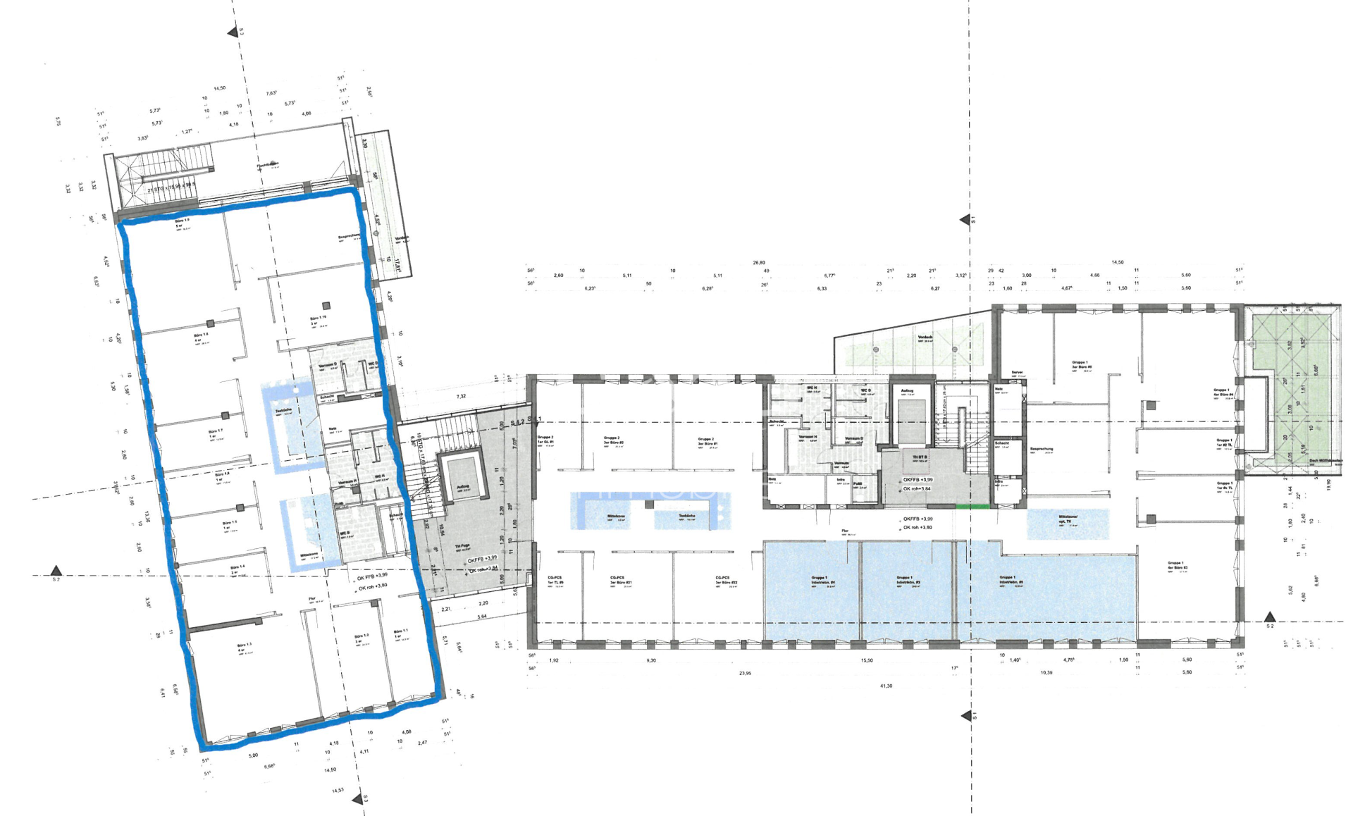
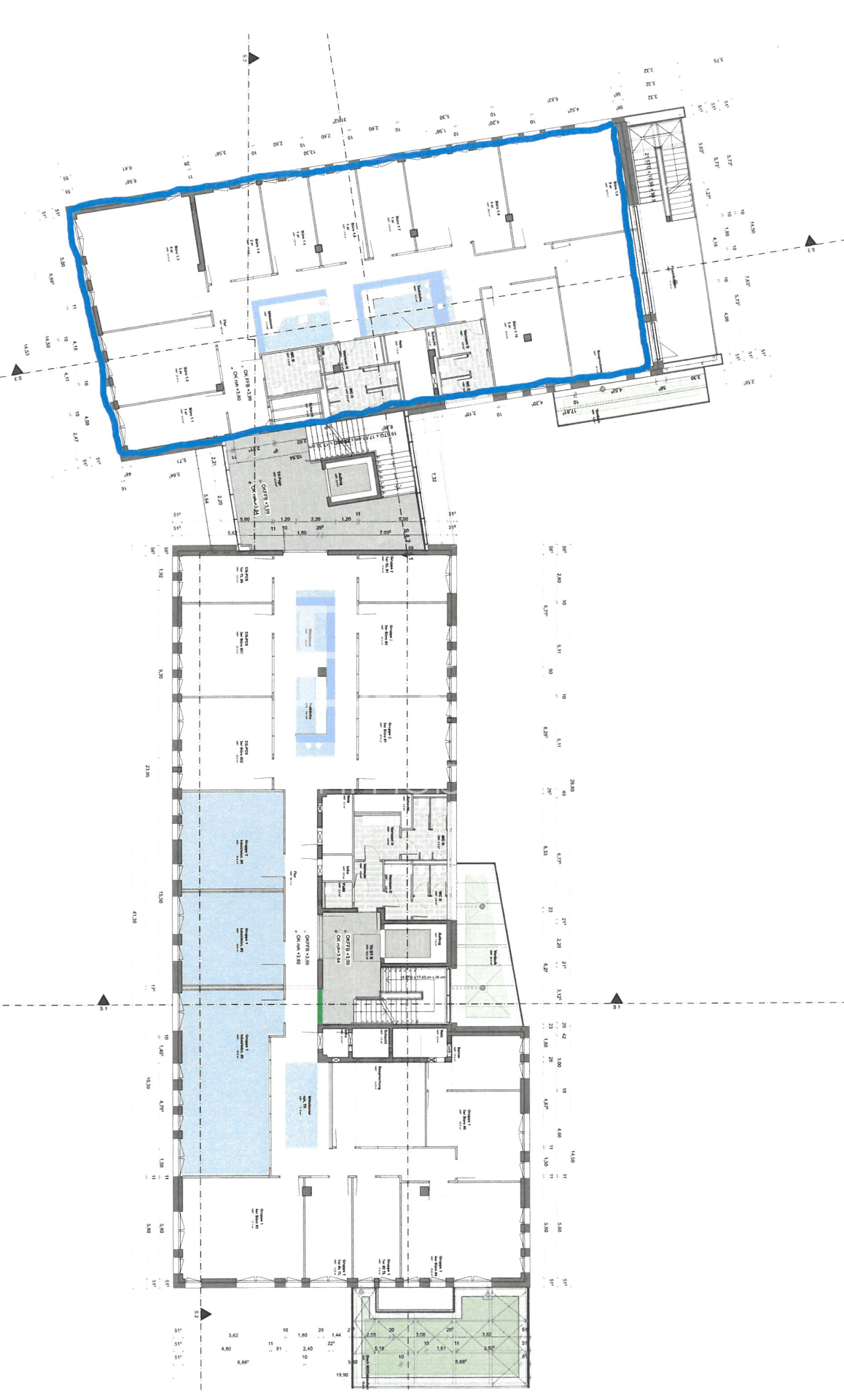
Die hochmodernen Büroflächen bestechen durch eine großzügige Verglasung, die für helle und freundliche Arbeitsräume sorgt. Das Airfield Office überzeugt mit einer erstklassigen Lage direkt am Böblinger Bahnhof und in unmittelbarer Nähe zur Innenstadt. Die Flächen sind optimal an den öffentlichen Nahverkehr angebunden, sodass Sindelfingen und der Stuttgarter Hauptbahnhof schnell erreichbar sind. Auch die A81 liegt nur wenige Minuten entfernt und gewährleistet eine hervorragende PKW-Anbindung. Die moderne Architektur verleiht dem Gebäude eine repräsentative Außenwirkung, während zahlreiche Restaurants, Bars und Cafés in der Umgebung ideale Pausen- und Geschäftsmöglichkeiten bieten. Mehrere Hotels ermöglichen zudem eine komfortable Unterbringung von Partnern und Kunden. Ein besonderes Highlight ist das hinter dem Gebäude gelegene Flugfeld, ein weitläufiger Park, der als Ruhezone dient und sich perfekt für entspannte Pausen eignet. Mit seiner Kombination aus exzellenter Infrastruktur, moderner Ausstattung und attraktiver Umgebung bietet das Airfield Office ideale Voraussetzungen für Unternehmen, die Wert auf eine repräsentative und angenehme Arbeitsatmosphäre legen. Im Objekt aktuell verfügbare Flächen: 1. OG - 444 m²


Eckdaten

OBJEKTTYP
Büro/Praxis
ORT
Böblingen
BÜRO- /PRAXIS­FLÄCHE IN M²
889
FLÄCHE TEILBAR AB (M²)
429
BAUJAHR
2023
PROVISION
provisionsfrei
OBJEKTNUMMER
EuG11659

LAGEKRITERIEN

ENTFERNUNG NÄCHSTER HAUPTBAHNHOF
21 KM
ENTFERNUNG NÄCHSTE AUTOBAHN
4 KM
ENTFERNUNG NÄCHSTER FLUGHAFEN
19.8 KM
Ausstattung / Objektdetails

Die Flächen überzeugen durch eine hochwertige Ausstattung:

  • Betonbauweise
  • Mauerwerk innen verputzt
  • Mauerwerk außen mit Vorhangfassade
  • Geschosshöhe 1.-3. OG 3,35m
  • Barrierefrei
  • Teilweise Türantriebe
  • Lichtdurchflutete Büroräume an den Fensterfronten
  • Sonnenschutz
  • Glastrennwände
  • Möbliert (nach Absprache)
  • KAT-7 Verkabelung
  • Teeküchen
  • Zentrales Treppenhaus
  • Konferenzraum
  • Betonkernkühlung
  • Bodenbelag
  • Dachterrasse, Dachtechnikzentrale
  • Tiefgarage
  • 5 E-Ladeplätze
  • Duschen/Umkleiden im UG
  • EDV-Verkabelung
  • Teeküche
  • Teilmöbliert
Bitte lassen Sie Cookies zu,
um eine Karte von Google Maps anzuzeigen.

Kontakt

SPRECHEN SIE UNS AN!

Das könnte Sie auch interessieren

Finden Sie die individuelle Immobilie
Einfach, schnell und diskret in der Direktsuche


© 2026 - E & G Real Estate GmbH