E & G IMMOBILIEN > Gewerbeimmobilien > 2026 in modernen Büroflächen! Gewerbegebiet - Schelmenwiesen
Titel
Aktueller Stand
Innen
Innen
Erdgeschoss
Obergeschoss
Eingang
Titel
Aktueller Stand
Innen
Innen
Erdgeschoss
Obergeschoss
Eingang

2026 in modernen Büroflächen! Gewerbegebiet - Schelmenwiesen

Gärtringen

15,00
Miete € pro m²
248
Fläche teilbar ab (m²)

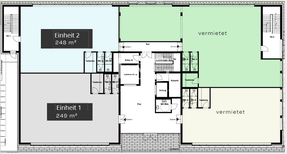
Die Mietflächen zeichnen sich durch eine hervorragende Sichtlage und eine optimale Verkehrsanbindung aus. In unmittelbarer Nähe befinden sich vielfältige Versorgungs- und Verpflegungsmöglichkeiten, die den Standort zusätzlich attraktiv machen. Die Flächen sind flexibel teilbar, sodass Einheiten nach Bedarf kombiniert werden können. Jede Mieteinheit verfügt über einen eigenen Zugang und wird separat versorgt, was eine individuelle Abrechnung ermöglicht. Die durchdachte Topausstattung sowie das modernste Außen- und Innendesign bieten eine hohe Funktionalität und Ästhetik. Ein repräsentatives Foyer sorgt für einen professionellen Empfang, während die Barrierefreiheit einen inklusiven Zugang für alle gewährleistet. Im Objekt aktuell verfügbare Flächen: EG (EH1) - 249 m² EG (EH2) - 248 m² EG (EH3) - 332 m² EG (EH4) - 207 m² 1. OG (EH1) - 580 m² 1. OG (EH2) - 530 m²


Eckdaten

OBJEKTTYP
Büro/Praxis
ORT
Gärtringen
BÜRO- /PRAXIS­FLÄCHE IN M²
1.607
FLÄCHE TEILBAR AB (M²)
248
PROVISION
provisionsfrei
OBJEKTNUMMER
EuG11892

LAGEKRITERIEN

ENTFERNUNG NÄCHSTER HAUPTBAHNHOF
30 KM
ENTFERNUNG NÄCHSTE AUTOBAHN
1 KM
ENTFERNUNG NÄCHSTER FLUGHAFEN
30 KM
Ausstattung / Objektdetails

Die Flächen verfügen über eine moderne und großzügige Ausstattung:

  • Flexibel trennbare Räume
  • Intelligentes Heizung-Lüftungs-Klimasystem
  • Jede Einheit verfügt über eine eigene, moderne Sanitäranlagen
  • EDV, Telefon und Strom durch Hohlböden erschließbar
  • Hochwertige Bodenbeläge
  • Optimaler Schallschutz durch modernste - Fassadentechniken und Akustikelemente
  • Energieeffizienz Gebäude
  • Lichtdurchflutete Räume durch natürliches Licht
  • Zeitgesteuerte Schließanlage
  • Großzügige Aufzugsanlagen
  • Tiefgarage
Bitte lassen Sie Cookies zu,
um eine Karte von Google Maps anzuzeigen.

Kontakt

SPRECHEN SIE UNS AN!

Das könnte Sie auch interessieren

Finden Sie die individuelle Immobilie
Einfach, schnell und diskret in der Direktsuche


© 2026 - E & G Real Estate GmbH