E & G IMMOBILIEN > Gewerbeimmobilien > Bürofläche in herrschaftlicher Villa
Gebäude
Bild
Büro
Büro
Büro
Büro
Büro
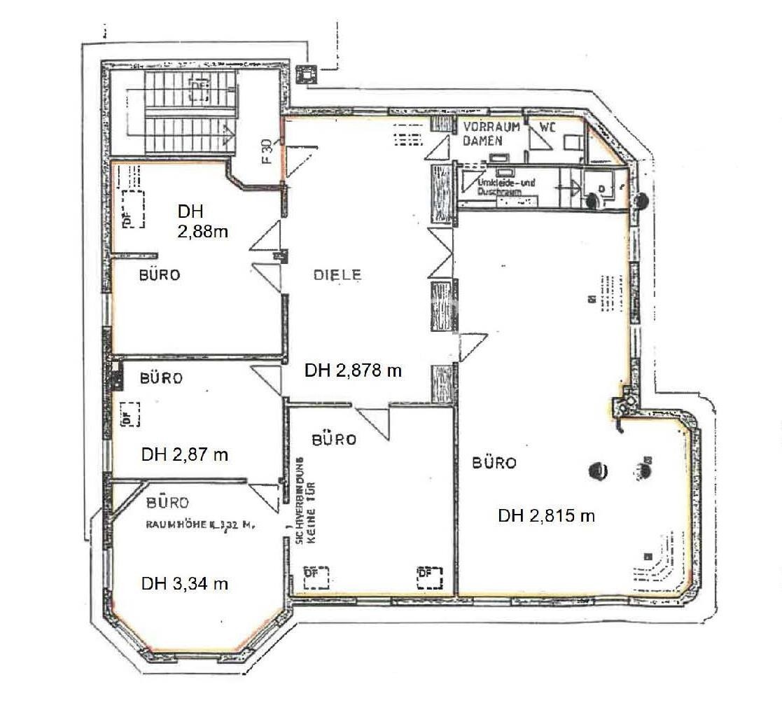
Grundriss
Bild
Gebäude
Bild
Büro
Büro
Büro
Büro
Büro
Grundriss
Bild

Bürofläche in herrschaftlicher Villa

Stuttgart

17,50
Miete € pro m²
196
Fläche teilbar ab (m²)

Die Bürofläche befindet sich im 2. Obergeschoss (Dachgeschoss) einer im Jahre 1896 von Lambert/Stahl im Stile des Historismus/Neobarock errichteten Villa. Das Gebäude steht unter Denkmalschutz. Die lichtdurchfluteten Räumlichkeiten sind Richtung Süden ausgerichtet und bestechen durch die fantastische Aussicht Richtung Fernsehturm


Eckdaten

OBJEKTTYP
Büro/Praxis
ORT
Stuttgart
BÜRO- /PRAXIS­FLÄCHE IN M²
196
FLÄCHE TEILBAR AB (M²)
196
BAUJAHR
1896
Ölheizung
Ja
PROVISION
provisionsfrei
OBJEKTNUMMER
EuG11956

LAGEKRITERIEN

ENTFERNUNG NÄCHSTER HAUPTBAHNHOF
2.5 KM
ENTFERNUNG NÄCHSTE AUTOBAHN
10 KM
ENTFERNUNG NÄCHSTER FLUGHAFEN
12.6 KM
Ausstattung / Objektdetails

Außergewöhnlich hohe Decken: Turmzimmer ca. 3,35 m, ansonsten ca. 2,90 mIT-Verkabelung: KAT 7 (kann vom Vormieter übernommen werden)Glasfaser-Anbieter: 1&1DoppelfensterEinbauschränkeSanitäre Anlagen: 1 WC, 1 WaschbeckenKellerraum im Untergeschoss: ca. 10 m²Küchenanschlüsse sind vorhandenAußenliegender Sonnenschutz: Holzrolläden

Bitte lassen Sie Cookies zu,
um eine Karte von Google Maps anzuzeigen.

Kontakt

SPRECHEN SIE UNS AN!

Das könnte Sie auch interessieren

Finden Sie die individuelle Immobilie
Einfach, schnell und diskret in der Direktsuche


© 2026 - E & G Real Estate GmbH