E & G IMMOBILIEN > Gewerbeimmobilien > Repräsentativer Standort - Attraktive & verkehrsgünstige Büroflächen in Ludwigsburg
Außenansicht
Büro
Treppenhaus
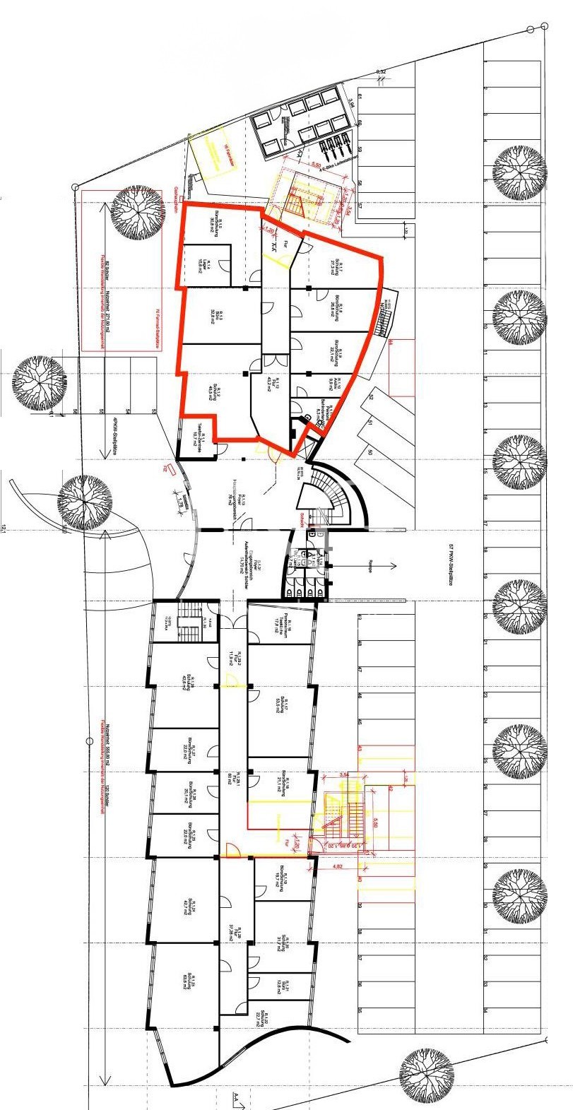
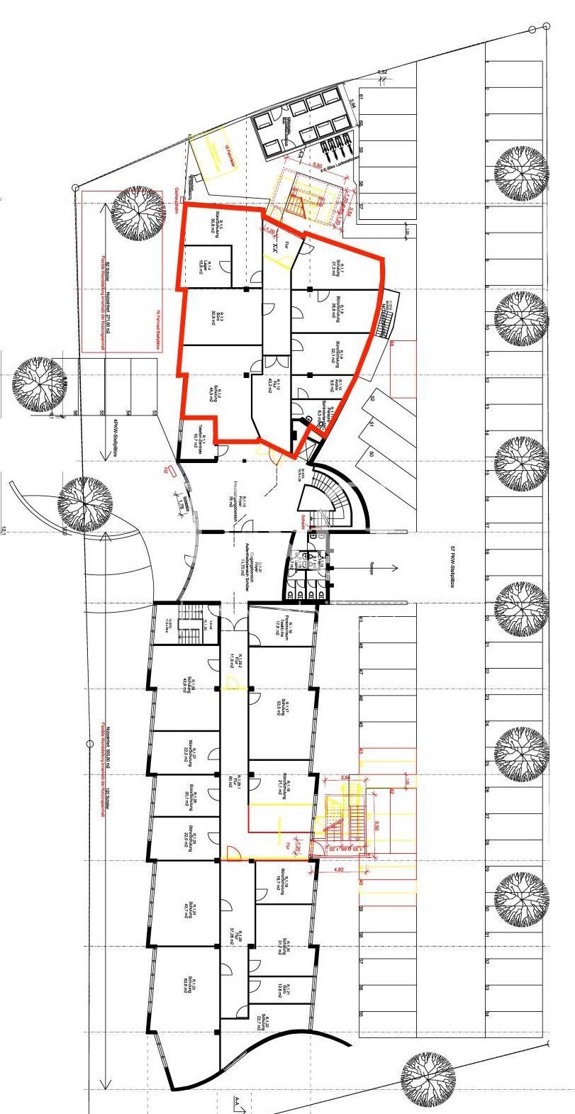
Erdgeschoss
Aussenansicht
Außenansicht
Büro
Treppenhaus
Erdgeschoss
Aussenansicht

Repräsentativer Standort - Attraktive & verkehrsgünstige Büroflächen in Ludwigsburg

Ludwigsburg

12,00
Miete € pro m²
343
Fläche teilbar ab (m²)

Das Objekt liegt verkehrsgünstig und trotzdem in ruhiger und professionelle Arbeitsatmosphäre. Sehr sympathisch ist die Nähe zu grünen Freiflächen und Spazierwegen für erholsame Pausen. Das Objekt wurde regelmäßig modernisiert und besticht durch moderne Sicherheitstechnik. Insgesamt finden Sie hier einen attraktiven Bürostandort mit Entwicklungspotenzial – insbesondere für Dienstleistungs- und Weiterbildungsunternehmen. Das Objekt bietet einen funktionalen und repräsentativen Standort für Unternehmen, die Wert auf gute Erreichbarkeit, ein gepflegtes Arbeitsumfeld und Synergien mit anderen gewerblichen Nutzern legen. Die Lage vereint urbanen Komfort mit ruhigem, grünem Umfeld – ideal für produktives Arbeiten und Kundenempfang. Im Objekt aktuell verfügbare Flächen: EG - 343 m²


Eckdaten

OBJEKTTYP
Büro/Praxis
ORT
Ludwigsburg
BÜRO- /PRAXIS­FLÄCHE IN M²
343
FLÄCHE TEILBAR AB (M²)
343
BAUJAHR
1990
PROVISION
provisionsfrei
OBJEKTNUMMER
EuG12130

LAGEKRITERIEN

ENTFERNUNG NÄCHSTER HAUPTBAHNHOF
17.5 KM
ENTFERNUNG NÄCHSTE AUTOBAHN
1.7 KM
ENTFERNUNG NÄCHSTER FLUGHAFEN
36.1 KM
Ausstattung / Objektdetails
  • Ausbau nach Mieterwunsch
  • Sicherheitssystem, inkl. Zugangskontrolle sowie Alarmanlage und Videoüberwachung
  • Variable Trennwände möglich
  • E-Ladestation möglich
  • Kühlung über Splitgeräte möglich
  • Personenaufzug
  • Voll ausgestatte Teeküchen
  • Außenliegender Sonnenschutz
  • LED-Deckenleuchten
  • EDV-Verkabelung mit Cat 7-Verkabelung
  • Glasfaseranschluss
Bitte lassen Sie Cookies zu,
um eine Karte von Google Maps anzuzeigen.

Kontakt

SPRECHEN SIE UNS AN!

Das könnte Sie auch interessieren

Finden Sie die individuelle Immobilie
Einfach, schnell und diskret in der Direktsuche


© 2026 - E & G Real Estate GmbH