E & G IMMOBILIEN > Gewerbeimmobilien > Gewerbefläche - Zentrale Lage in Kornwestheim
Außenansicht
Terrasse
Außenansicht
Innenansicht
Innenansicht
Innenansicht
Innenansicht
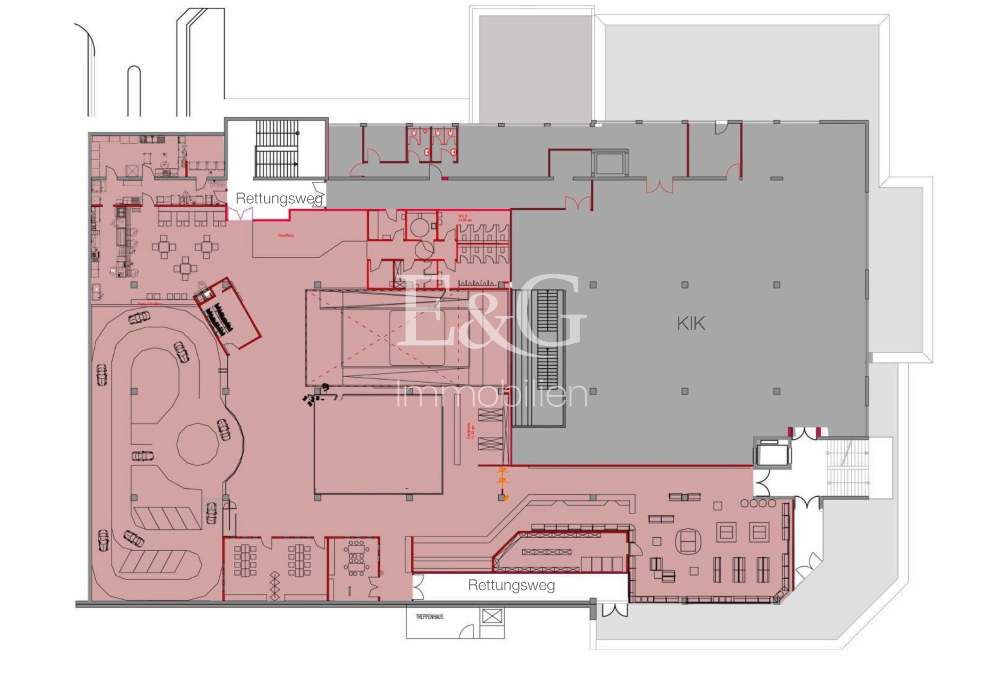
1. Obergeschoss
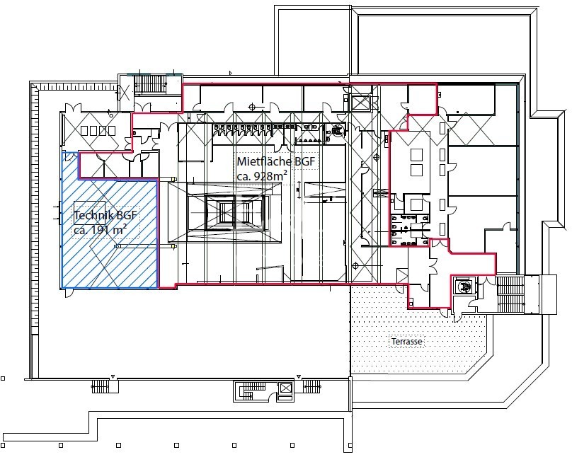
2. Obergeschoss
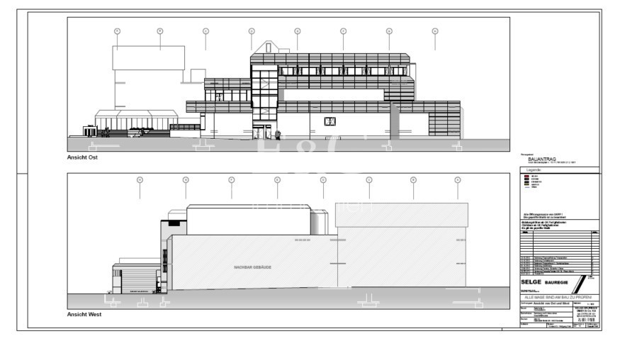
Schnitt Ansicht Süd
Schnitt Ansicht West
Treppenaufgang
Außenansicht
Terrasse
Außenansicht
Innenansicht
Innenansicht
Innenansicht
Innenansicht
1. Obergeschoss
2. Obergeschoss
Schnitt Ansicht Süd
Schnitt Ansicht West
Treppenaufgang

Gewerbefläche - Zentrale Lage in Kornwestheim

Kornwestheim

7,50
Miete € pro m²
2.200
Fläche teilbar ab (m²)

Das Wette Center in Kornwestheim ist ein etabliertes Gewerbeobjekt und bietet attraktive Voraussetzungen für eine erfolgreiche Vermietung. Die zur Vermietung stehenden Gewerbeflächen überzeugen durch ihre flexible Nutzbarkeit und eignen sich ideal für Büro-, Praxis-, Dienstleistungs-, Einzelhandels- oder Schulungskonzepte. Die Einheiten verfügen über funktionale Grundrisse mit guter Belichtung und ermöglichen eine individuelle Raumgestaltung entsprechend den Anforderungen des zukünftigen Mieters. Anpassungen an Ausbau und Ausstattung sind – je nach Einheit – möglich und erlauben eine bedarfsgerechte Nutzung der Flächen. Das Gebäude ist barrierearm zugänglich und mit Aufzügen ausgestattet. Stellplätze stehen sowohl in der hauseigenen Tiefgarage als auch im direkten Umfeld zur Verfügung, was eine komfortable Erreichbarkeit für Mitarbeiter und Kunden gewährleistet. Durch die Mischung verschiedener gewerblicher Nutzungen innerhalb des Centers profitiert das Objekt von einer bestehenden Frequenz und einem lebendigen Umfeld. Die professionelle Gebäudestruktur sowie die gute Sichtbarkeit machen das Wette Center zu einem attraktiven Standort für langfristige Mietverhältnisse.


Eckdaten

OBJEKTTYP
Büro/Praxis
ORT
Kornwestheim
BÜRO- /PRAXIS­FLÄCHE IN M²
2.200
FLÄCHE TEILBAR AB (M²)
2.200
PROVISION
provisionsfrei
OBJEKTNUMMER
EuG12278

LAGEKRITERIEN

ENTFERNUNG NÄCHSTER FLUGHAFEN
36 KM
Ausstattung / Objektdetails
  • Offene Raumstruktur
  • Dachterrasse
  • Verbindung der beiden Etagen über eine offene - Treppe
  • Personenaufzug
Bitte lassen Sie Cookies zu,
um eine Karte von Google Maps anzuzeigen.

Kontakt

SPRECHEN SIE UNS AN!

Das könnte Sie auch interessieren

Finden Sie die individuelle Immobilie
Einfach, schnell und diskret in der Direktsuche


© 2026 - E & G Real Estate GmbH