E & G IMMOBILIEN > Gewerbeimmobilien > Neckarspinnerei-Quartier | Leben, Arbeiten, Ankommen
Luftbild
Visualisierung
Visualisierung
Innenaufnahme
Innenaufnahme
Innenaufnahme
Innenaufnahme
Innenaufnahme
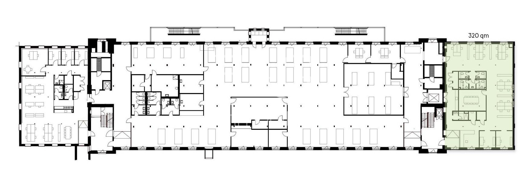
1.OG
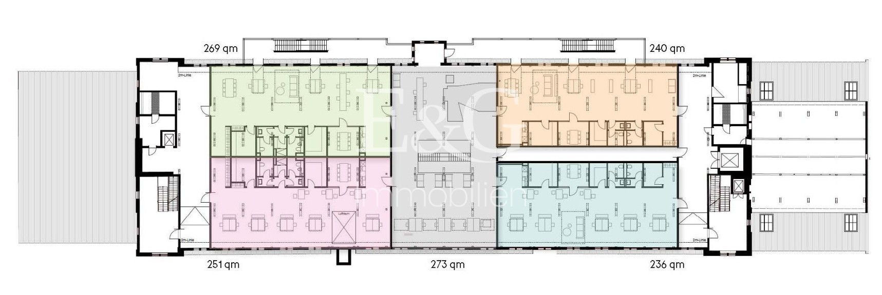
2.OG
DG
Außenaufnahme
Luftbild
Visualisierung
Visualisierung
Innenaufnahme
Innenaufnahme
Innenaufnahme
Innenaufnahme
Innenaufnahme
1.OG
2.OG
DG
Außenaufnahme

Neckarspinnerei-Quartier | Leben, Arbeiten, Ankommen

Wendlingen am Neckar

auf Anfrage
Preis
201
Fläche teilbar ab (m²)

Der historische & denkmalgeschützte Spinnerei Hochbau aus dem 19. Jahrhundert bildet das prägende Zentrum des Neckarspinnerei Quartiers und zeichnet sich durch seine markante rote Sichtziegelfassade aus. Das Gebäude wird gerade aufwendig & mit großer Sorgfalt revitalisiert und zu einem modernen, lebendigen Büro- und Community-Standort transformiert. Die charakteristische Klinkerfassade, Stahlträger und großformatige Sprossenfenster bleiben dabei erhalten – ergänzt durch eine hochwertige, nachhaltige Innenarchitektur. Ein Ort, an dem Geschichte, Design und Funktionalität auf besondere Weise verschmelzen. Die weiteren Bestandsgebäude im Areal werden bereits teilweise genutzt und spiegeln durch gewerbliche sowie gemeinnützige Konzepte den industriellen Ursprung und die Weiterentwicklung des Areals wieder. Highlights: - Nachhaltige Quartiersentwicklung mit hoher Aufenthaltsqualität - Co-Working-Spaces mit flexiblen Mietmodellen - Kantine im Gebäude - Flexible Anmietung von Räumen für Events & Firmenveranstaltungen - Unterschiedliche Flächengrößen – für jeden was dabei - Direkt am Neckarufer – ideal für Pausen & das Get-Together am Feierabend - Lebendiges Netzwerk & starke Community - Stellplätze & Fahrradabstellplätze vorhanden


Eckdaten

OBJEKTTYP
Büro/Praxis
ORT
Wendlingen am Neckar
BÜRO- /PRAXIS­FLÄCHE IN M²
3.447
FLÄCHE TEILBAR AB (M²)
201
BAUJAHR
1860
PROVISION
provisionsfrei
OBJEKTNUMMER
EuG12351
Ausstattung / Objektdetails
  • Energieeffiziente Heiz- und Kühltechnik
  • CAT-7 Verkabelung (bereits verlegt)
  • Glasfaser vorhanden
  • Hohe Decken
  • Großzügige Fenster (z.T. erneuert, teilweise restauriert und energetisch ertüchtigt)
  • Personenaufzug & barrierefreier Zugang
  • Grundausleuchtung
  • Duschen mit Umkleiden
  • Außenbereiche zur Neckarseite
  • Kopfbau mit KfW-70 Standard
  • Endbau mit KfW-55 Standard
Bitte lassen Sie Cookies zu,
um eine Karte von Google Maps anzuzeigen.

Kontakt

SPRECHEN SIE UNS AN!

Das könnte Sie auch interessieren

Finden Sie die individuelle Immobilie
Einfach, schnell und diskret in der Direktsuche


© 2026 - E & G Real Estate GmbH