E & G IMMOBILIEN > Gewerbeimmobilien > Moderne und zentrale Flächen
S'Zentrum
Bürofläche
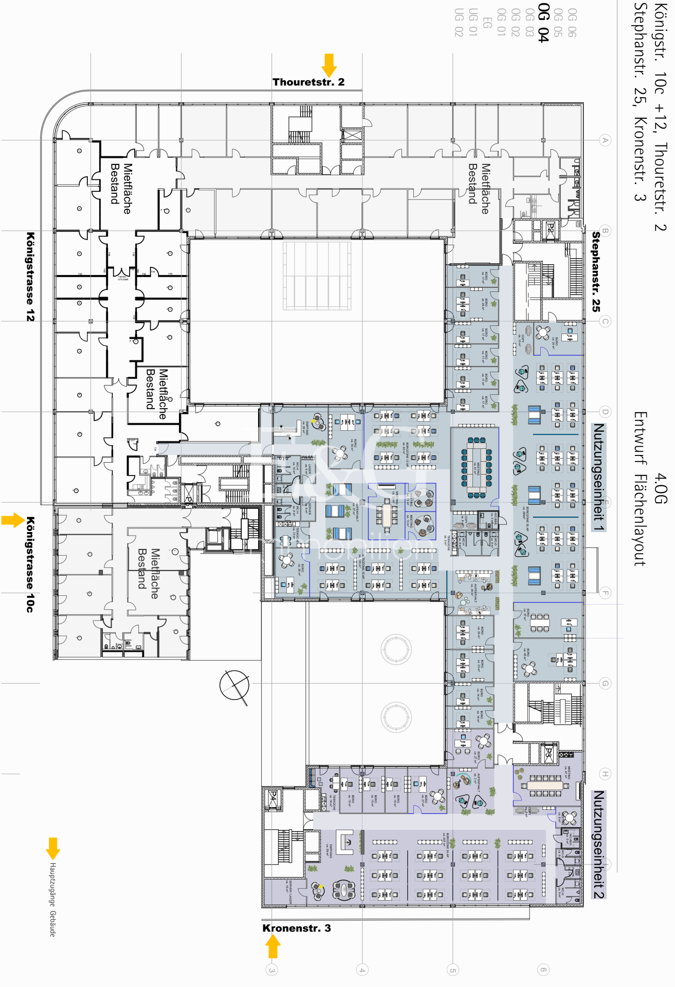
Grundriss 4.OG
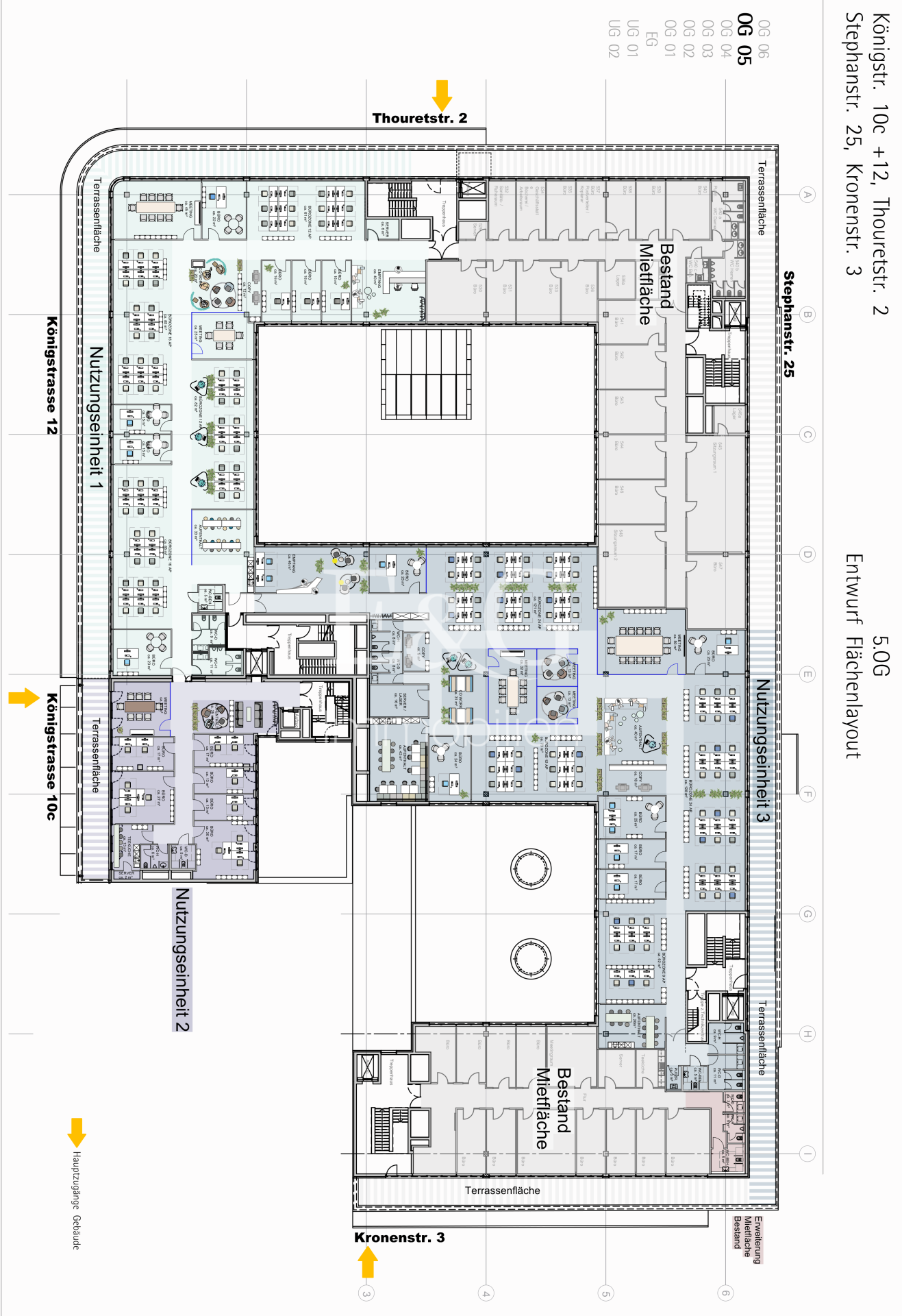
Grundriss 5.OG
S'Zentrum
Bürofläche
Grundriss 4.OG
Grundriss 5.OG

Moderne und zentrale Flächen

Stuttgart

27,00
Miete € pro m²
646
Fläche teilbar ab (m²)

"s'Zentrum" besticht durch seine erstklassige Lage direkt auf der Königsstraße, mitten im Herzen Stuttgarts. Der Hauptbahnhof ist in nur zwei Gehminuten erreichbar und gewährleistet eine optimale Anbindung. In unmittelbarer Umgebung finden sich zahlreiche Restaurants und Cafés, die ideale Pausenmöglichkeiten bieten. Die zur Vermietung stehenden Flächen eignen sich hervorragend als moderne und repräsentative Büroflächen in bester Innenstadtlage. 5. OG: ca. 2.347 m² 4. OG: ca. 2.073 m²


Eckdaten

OBJEKTTYP
Büro/Praxis
ORT
Stuttgart
BÜRO- /PRAXIS­FLÄCHE IN M²
4.420
FLÄCHE TEILBAR AB (M²)
646
BAUJAHR
2002
PROVISION
provisionsfrei
OBJEKTNUMMER
EuG1615

LAGEKRITERIEN

ENTFERNUNG NÄCHSTE AUTOBAHN
13.4 KM
ENTFERNUNG NÄCHSTER FLUGHAFEN
14 KM
Ausstattung / Objektdetails

Die Fläche besticht durch folgende Ausstattung:

  • 6-geschossige repräsentative Büro- Einzelhandelsimmobilie
  • Sehr gut ausgestattete Büroflächen mit modernster Technik
  • Moderne Glasfassade
  • Kat6-Verkabelung vorhanden
  • Ausgestattet mit eingerichteten Teeküchen
  • Personenaufzug
  • Revitalisierung
  • Klimatisierung möglich
  • Zugang über Königstraße
Bitte lassen Sie Cookies zu,
um eine Karte von Google Maps anzuzeigen.

Kontakt

SPRECHEN SIE UNS AN!

Das könnte Sie auch interessieren

Finden Sie die individuelle Immobilie
Einfach, schnell und diskret in der Direktsuche


© 2026 - E & G Real Estate GmbH