E & G IMMOBILIEN > Gewerbeimmobilien > FLEXIBLE BÜROFLÄCHEN IM STEP 9
Außenansicht
Erdgeschoss
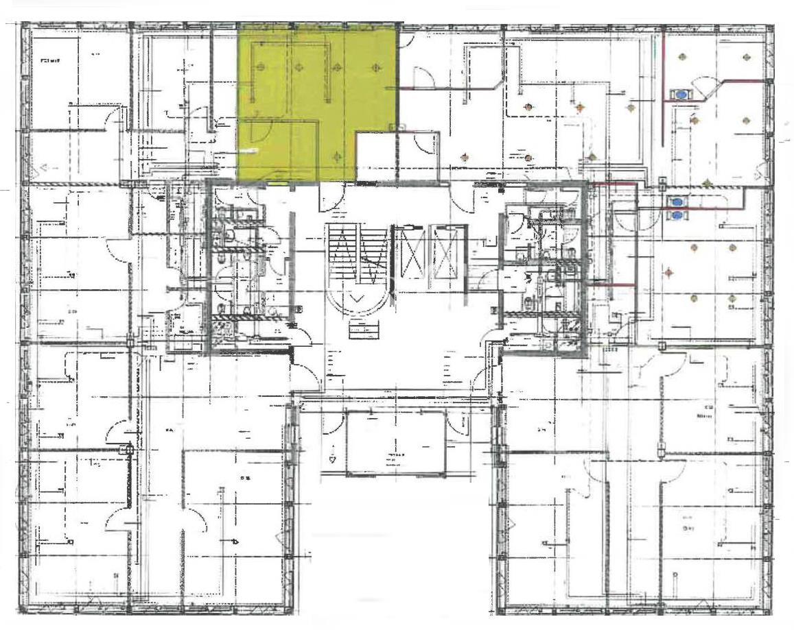
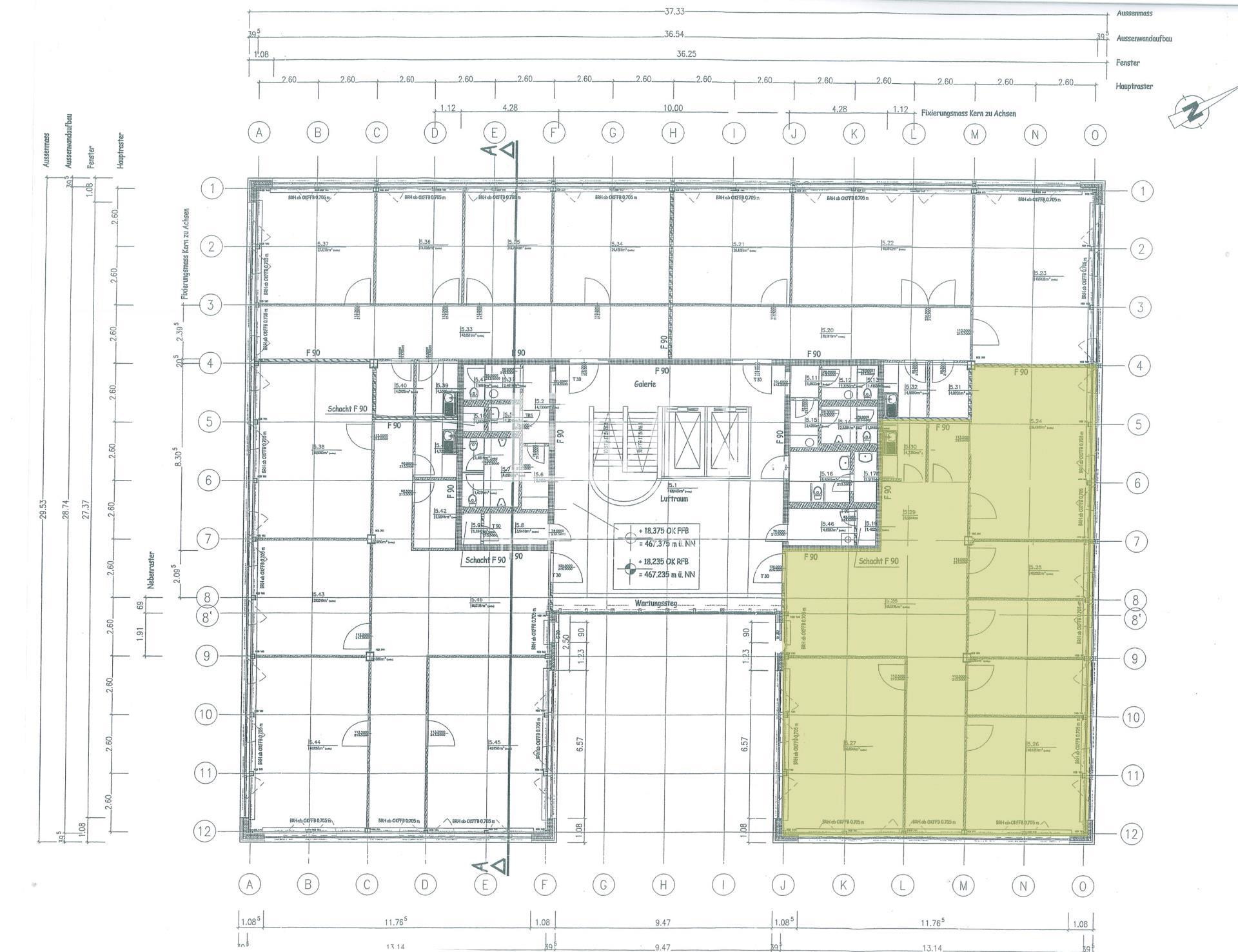
STEP 9 - 5. OG
Außenansicht
Erdgeschoss
STEP 9 - 5. OG

FLEXIBLE BÜROFLÄCHEN IM STEP 9

Stuttgart

16,50
Miete € pro m²
61
Fläche teilbar ab (m²)

Der STEP Stuttgarter Engineering Park befindet sich an einem erstklassigen Standort im Südwesten der Landeshauptstadt Stuttgart, Ortsteil Stuttgart-Vaihingen, und verfügt über ideale Verkehrsanbindungen.  Die S-Bahnhaltestelle Österfeld grenzt unmittelbar an das STEP Areal und wird von der S-Bahn direkt angefahren. Die angrenzende B 14 führt direkt in die Stuttgarter Innenstadt. Ein direkter Autobahnanschluss an die A 831, von wo es nur wenige Kilometer bis zum Autobahnkreuz Stuttgart sind, ist ebenfalls vorhanden.


Eckdaten

OBJEKTTYP
Büro/Praxis
ORT
Stuttgart
BÜRO- /PRAXIS­FLÄCHE IN M²
322
FLÄCHE TEILBAR AB (M²)
61
BAUJAHR
2003
PROVISION
provisionsfrei
OBJEKTNUMMER
EuG1765

LAGEKRITERIEN

ENTFERNUNG NÄCHSTER HAUPTBAHNHOF
10.5 KM
ENTFERNUNG NÄCHSTE AUTOBAHN
1.8 KM
ENTFERNUNG NÄCHSTER FLUGHAFEN
10.4 KM
ENTFERNUNG NÄCHSTE BUSHALTESTELLE
0.35 KM
ENTFERNUNG NÄCHSTER BAHNHOF
1 KM
Ausstattung / Objektdetails

Die Flächen verfügen über eine moderne Ausstattung:

  • Kantine, Bistro, Konferenzbereich und Fitnessstudio auf dem Gelände
  • moderner und hochwertiger Bürostandard
  • Teilweise Kühlung vorhanden
  • Änderungen der Raumaufteilung sind möglich

hauseigene Tiefgarage

Bitte lassen Sie Cookies zu,
um eine Karte von Google Maps anzuzeigen.

Kontakt

SPRECHEN SIE UNS AN!

Das könnte Sie auch interessieren

Finden Sie die individuelle Immobilie
Einfach, schnell und diskret in der Direktsuche


© 2026 - E & G Real Estate GmbH