E & G IMMOBILIEN > Gewerbeimmobilien > Flexible Büroflächen zu attraktiven Konditionen – ideal für 2–3 Jahre Interimsnutzung
Außenansicht
Innenansicht
Innenansicht
Innenansicht
Innenansicht
Schnitt
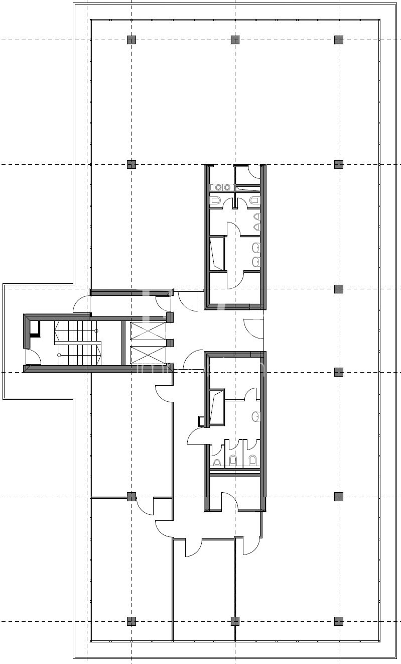
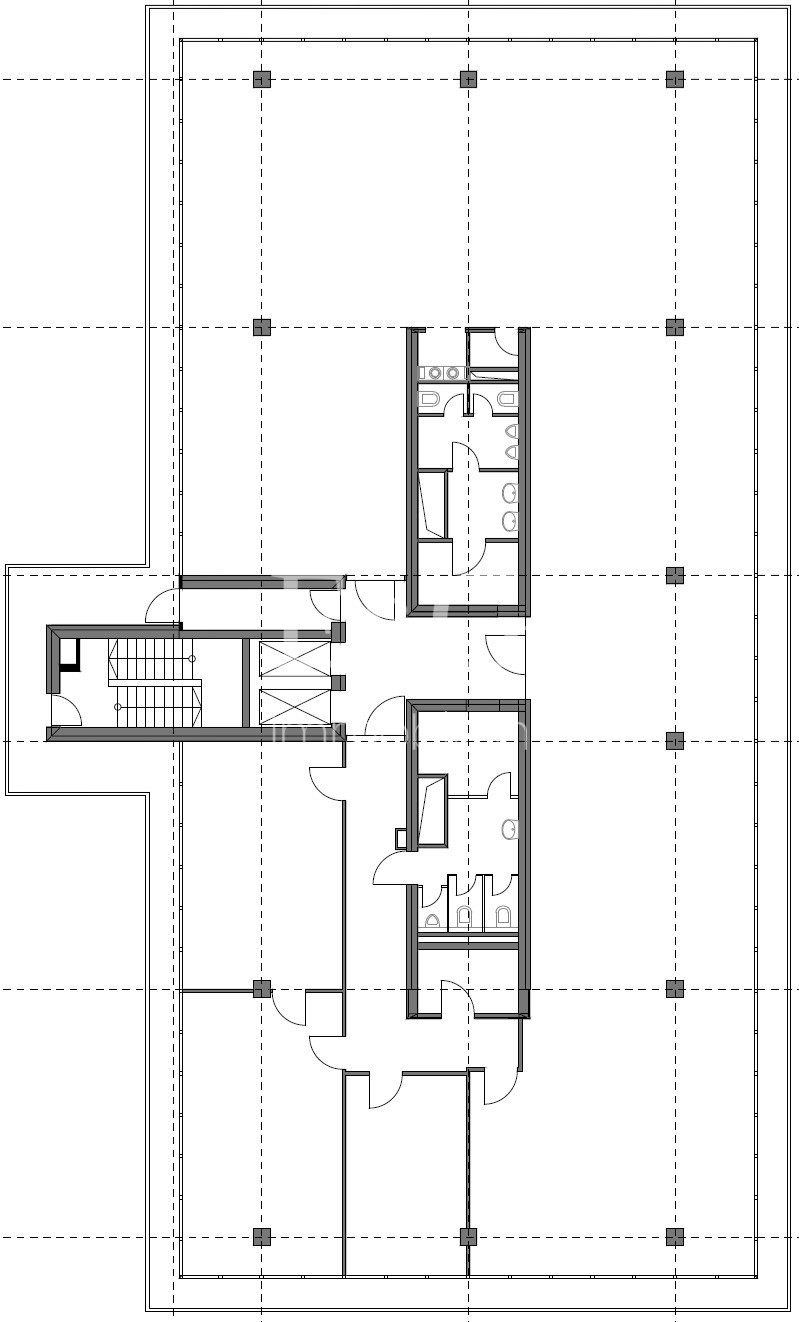
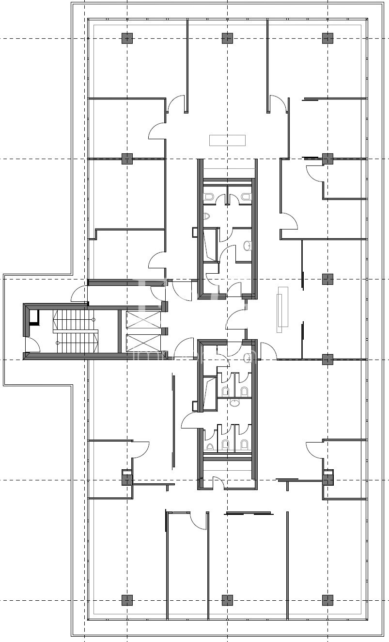
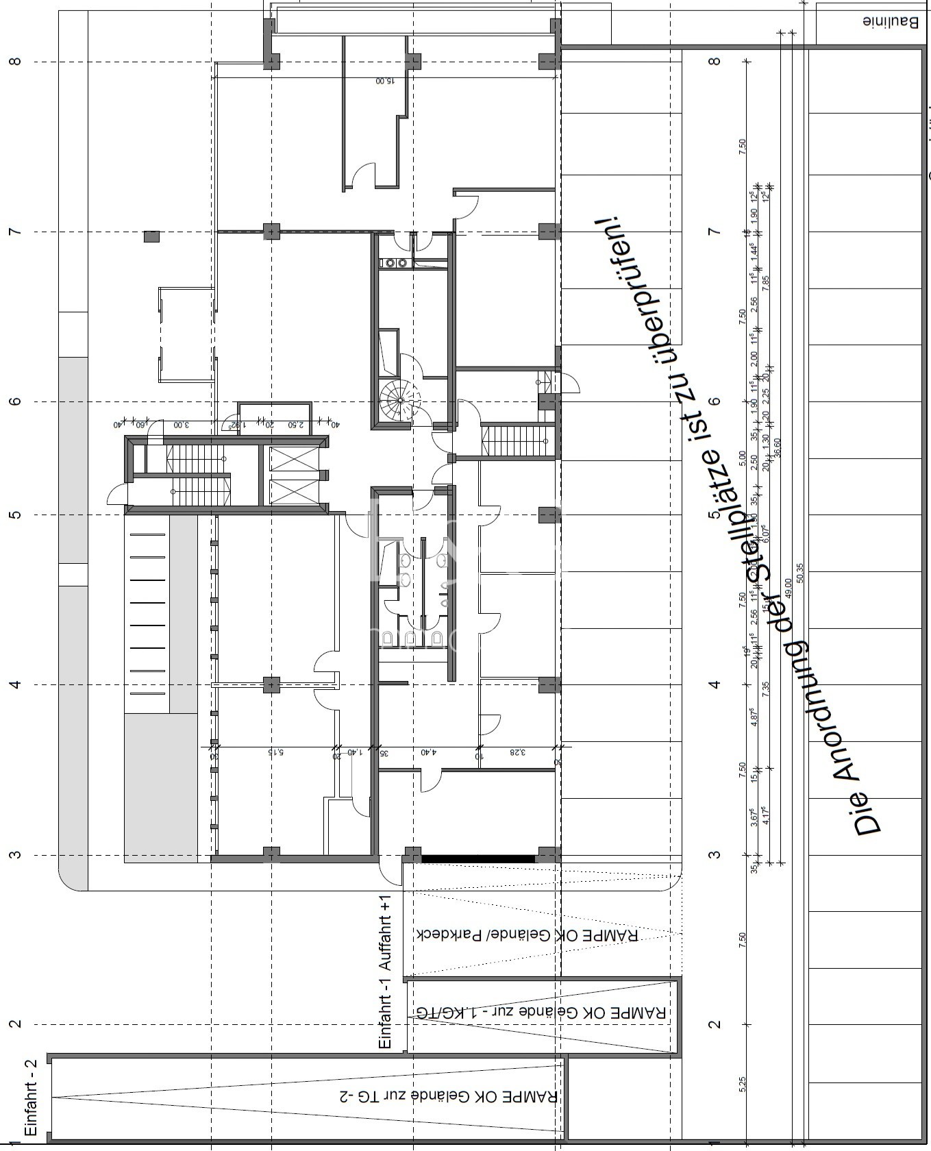
Erdgeschoss
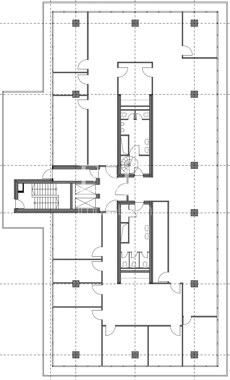
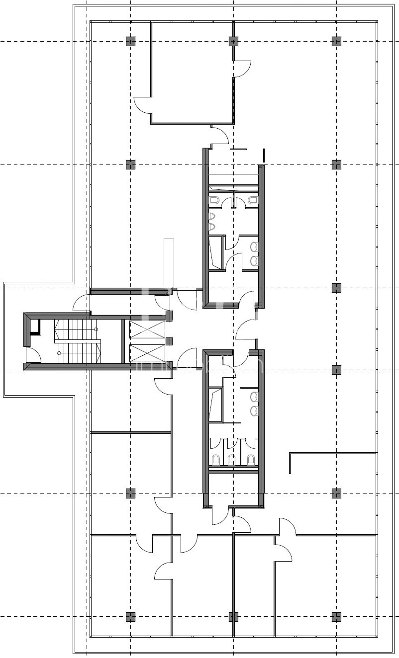
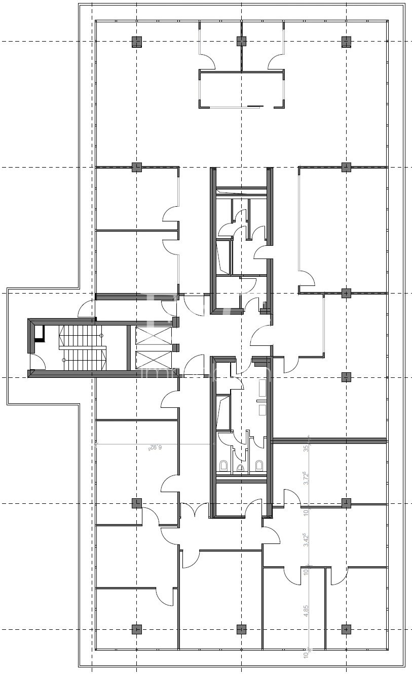
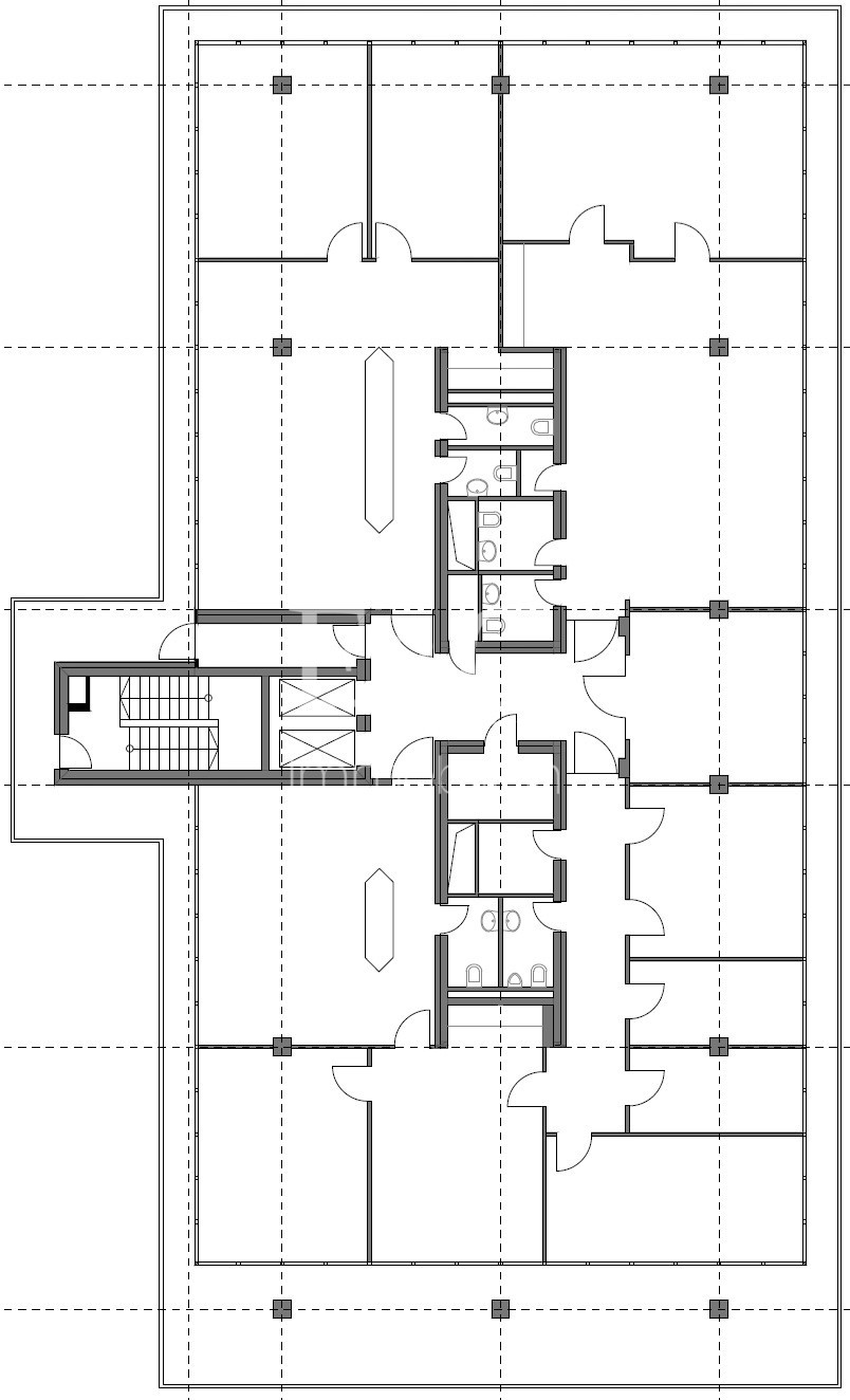
1. Obergeschoss
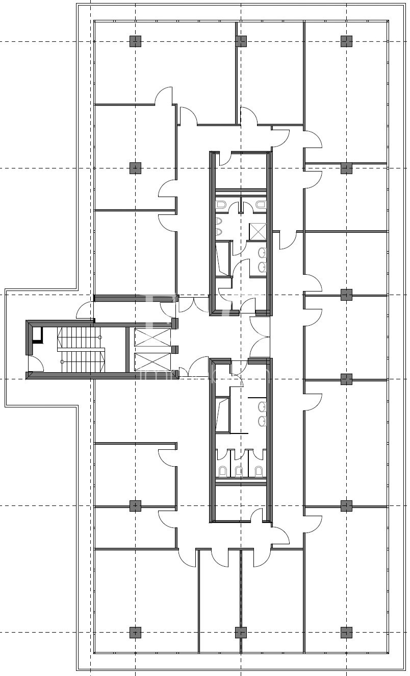
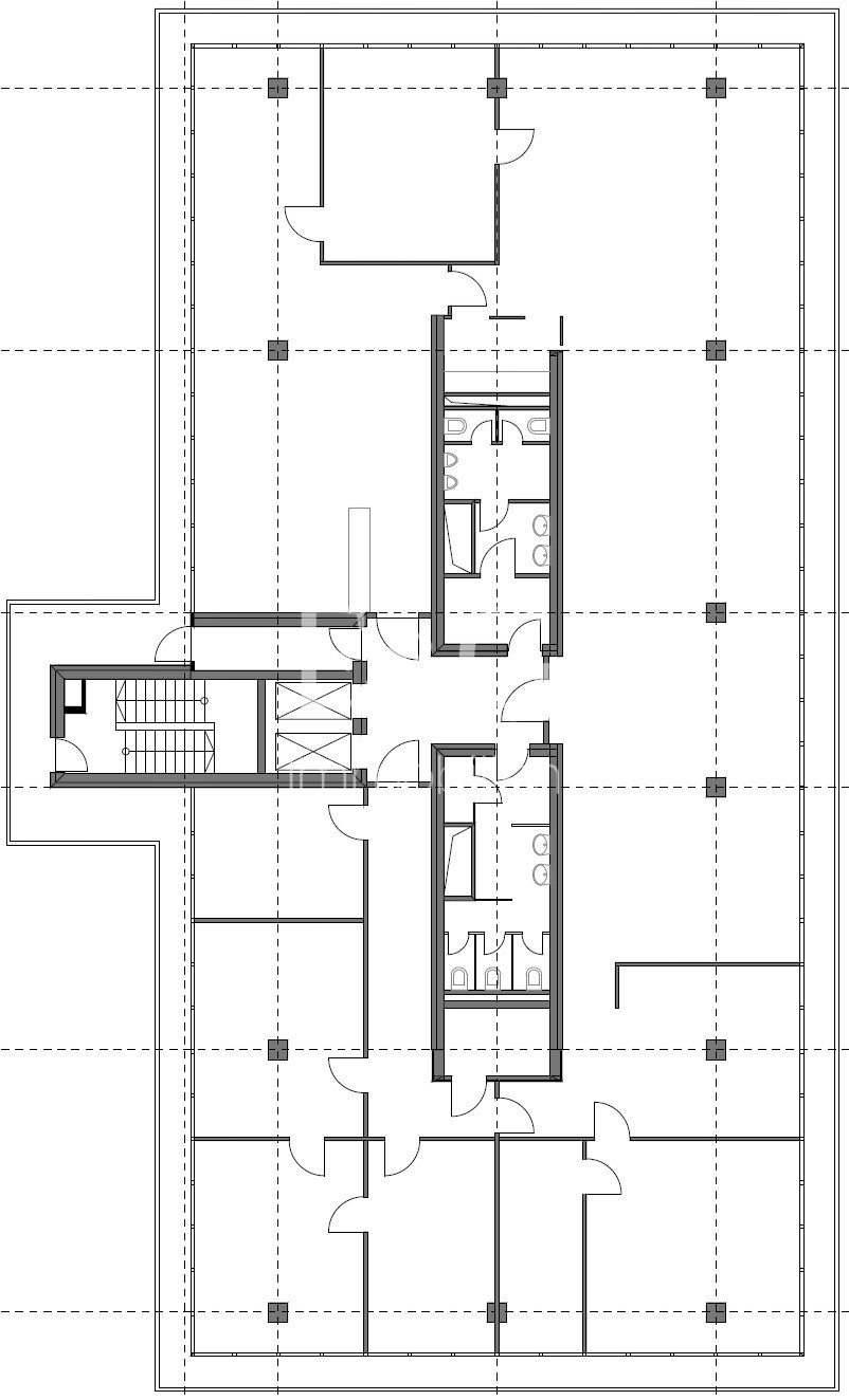
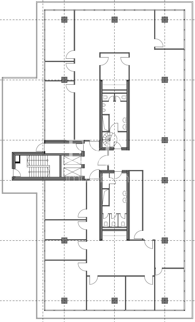
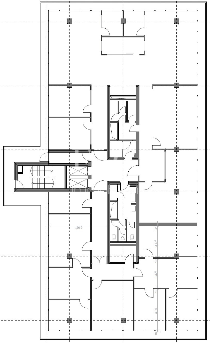
2. Obergeschoss
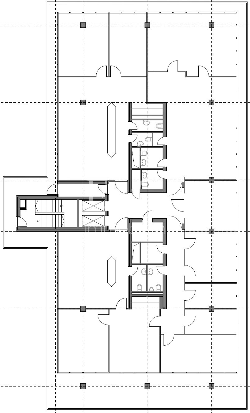
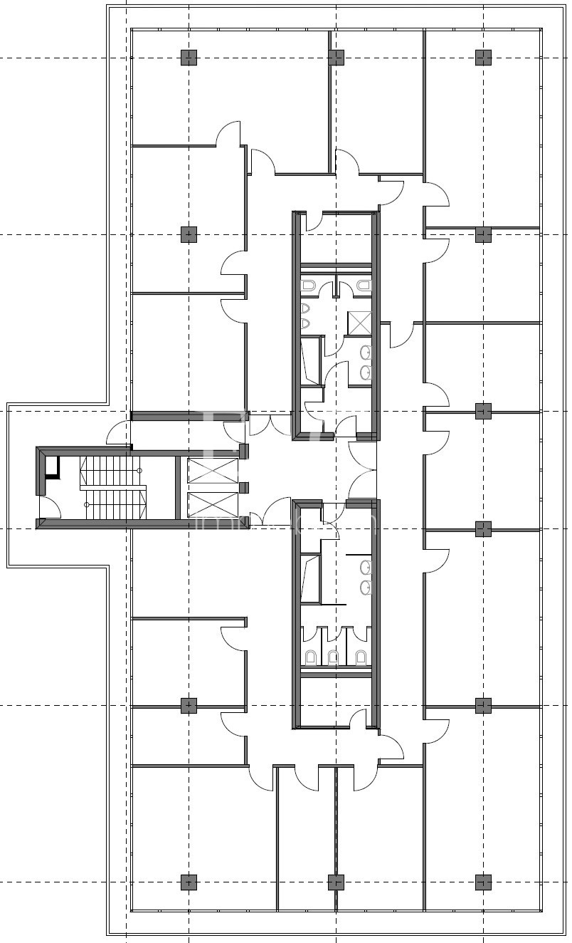
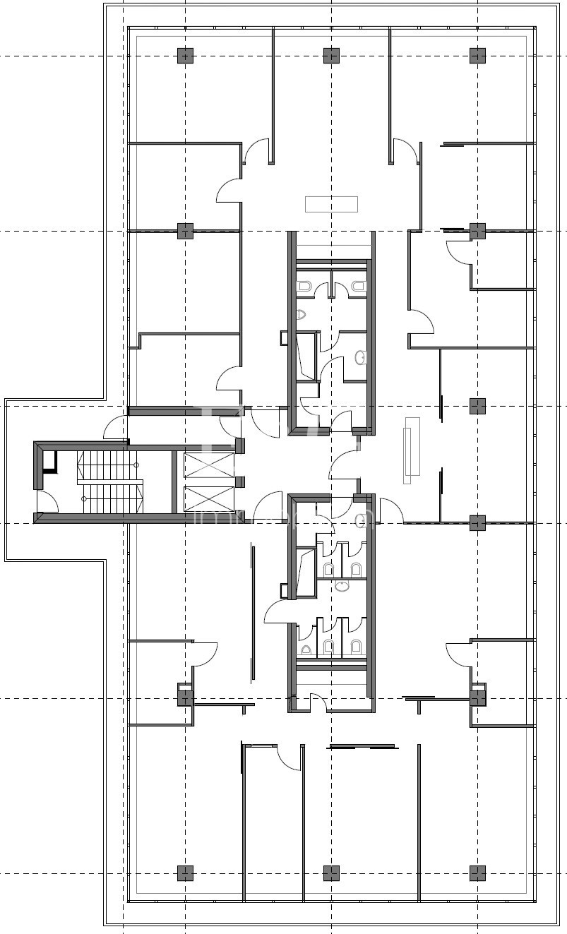
3. Obergeschoss
4. Obergeschoss
5. Obergeschoss
6. Obergeschoss
7. Obergeschoss
Außenansicht
Innenansicht
Innenansicht
Innenansicht
Innenansicht
Schnitt
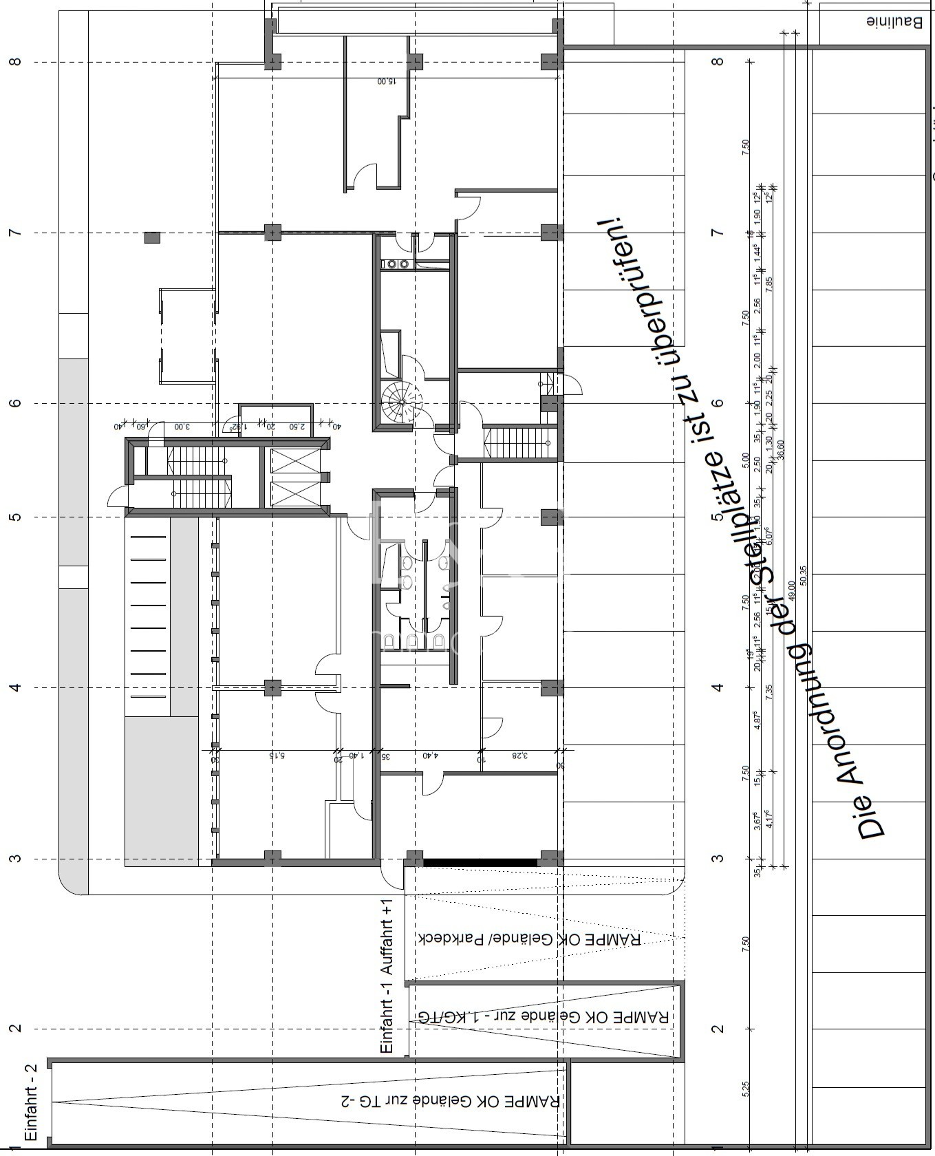
Erdgeschoss
1. Obergeschoss
2. Obergeschoss
3. Obergeschoss
4. Obergeschoss
5. Obergeschoss
6. Obergeschoss
7. Obergeschoss

Flexible Büroflächen zu attraktiven Konditionen – ideal für 2–3 Jahre Interimsnutzung

München

14,50
Miete € pro m²
5.729
Fläche teilbar ab (m²)

Das Bürogebäude bietet helle, funktionale und effizient geschnittene Büroflächen in verkehrsgünstiger Lage im Münchner Westen. Die Flächen überzeugen durch eine klare Grundrissstruktur, gute Belichtung sowie eine wirtschaftliche Flächeneffizienz und lassen sich flexibel an unterschiedliche Nutzungskonzepte anpassen. Dank der sehr guten Anbindung an den Individual- und öffentlichen Nahverkehr ist der Standort sowohl für Mitarbeitende als auch für Kunden optimal erreichbar. Das Objekt eignet sich insbesondere für Unternehmen, die eine pragmatische, gut angebundene und funktionale Bürofläche in München suchen. Mietkonditionen / Besonderheiten: Die Anmietung erfolgt im Rahmen einer zeitlich befristeten Interimsnutzung mit einer maximalen Laufzeit bis aktuell ca. 2029. Hieraus ergeben sich attraktive Mietkonditionen deutlich unter dem marktüblichen Niveau, ohne Kompromisse bei Lage oder Funktionalität eingehen zu müssen. Diese Lösung ist ideal für: Projekt- und Wachstumsteams Übergangs- oder Konsolidierungsphasen, Unternehmen mit mittelfristigem Flächenbedarf, sowie kostenbewusste Nutzer mit Fokus auf Effizienz. Eine wirtschaftlich äußerst interessante Bürooption im Münchner Westen für Unternehmen, die Flexibilität, gute Erreichbarkeit und Planungssicherheit schätzen.


Eckdaten

OBJEKTTYP
Büro/Praxis
ORT
München
Ölheizung
Ja
BÜRO- /PRAXIS­FLÄCHE IN M²
5.729
FLÄCHE TEILBAR AB (M²)
5.729
BAUJAHR
1972
Ölheizung
Ja
PROVISION
provisionsfrei
OBJEKTNUMMER
EuG24114

LAGEKRITERIEN

ENTFERNUNG NÄCHSTER HAUPTBAHNHOF
4.9 KM
ENTFERNUNG NÄCHSTE AUTOBAHN
2.8 KM
ENTFERNUNG NÄCHSTER FLUGHAFEN
37.7 KM
Ausstattung / Objektdetails
  • Helle, funktionale und effizient geschnittene Büroflächen
  • Baujahr 1972
  • Flexible Grundrissgestaltung – Einzel-, Gruppen- oder Kombibüros möglich
  • Raumhöhe ca. 3,00 m
  • Außenliegender Sonnenschutz
  • Vorhandene EDV-/IT-Verkabelung
  • Personenaufzug vorhanden
  • Zusätzliche Lager- und Archivflächen verfügbar
  • Stellplätze vorhanden
Bitte lassen Sie Cookies zu,
um eine Karte von Google Maps anzuzeigen.

Kontakt

SPRECHEN SIE UNS AN!

Das könnte Sie auch interessieren

Finden Sie die individuelle Immobilie
Einfach, schnell und diskret in der Direktsuche


© 2026 - E & G Real Estate GmbH