E & G IMMOBILIEN > Gewerbeimmobilien > Vermietung von modernen Büroflächen
Titelbild
Außenansicht
Außenansicht
Außenansicht
EG ca. 533 m²
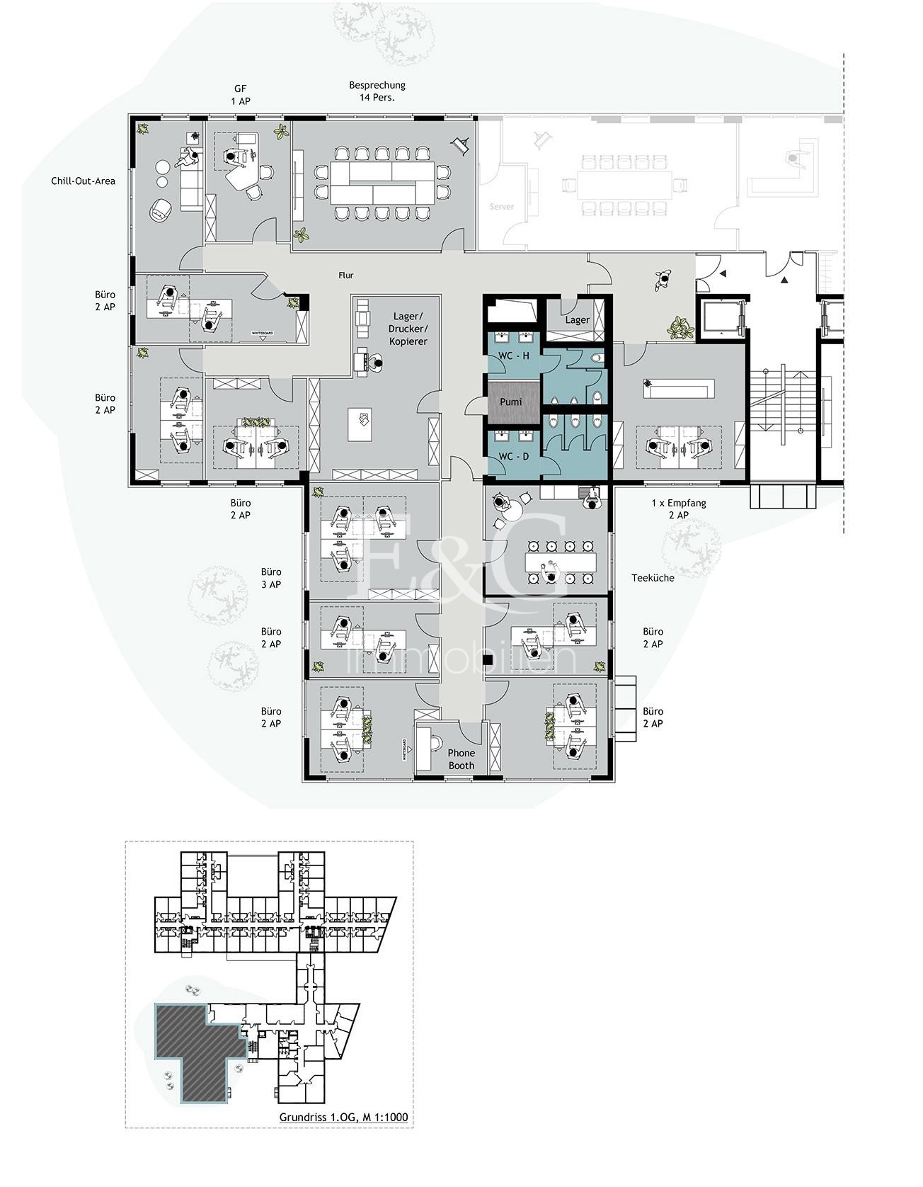
1. OG
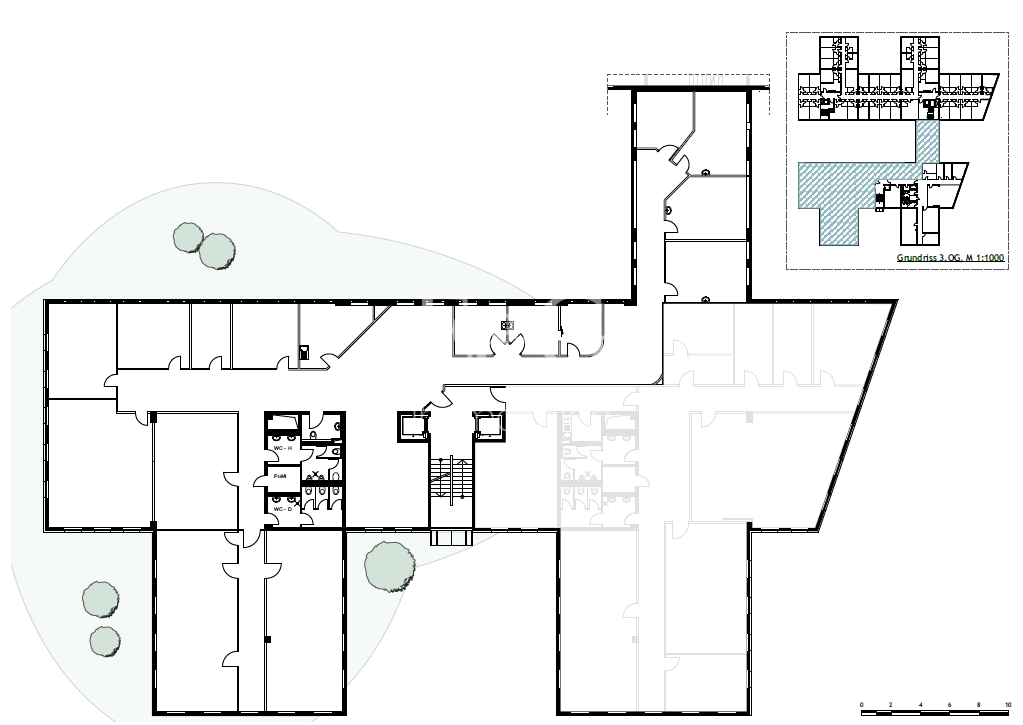
3. Obergeschoss
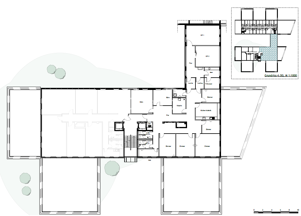
4. Obergeschoss
Titelbild
Außenansicht
Außenansicht
Außenansicht
EG ca. 533 m²
1. OG
3. Obergeschoss
4. Obergeschoss

Vermietung von modernen Büroflächen

Stuttgart

14,00
Miete € pro m²
476
Fläche teilbar ab (m²)

Das moderne Bürogebäude Eichwiesenring 1/1 überzeugt durch seine exponierte Ecklage direkt an der Hauptzufahrtsstraße des Gewerbegebiets Fasanenhof. Der U-förmige Grundriss des Gebäudes ermöglicht eine flexible Aufteilung in verschiedene Mietbereiche sowie individuelle Grundrissgestaltungen. Eine hauseigene Tiefgarage sorgt zudem für ausreichende Parkmöglichkeiten. Im angrenzenden Gebäude Eichwiesenring 1/2 befindet sich außerdem ein Hotel, das den Standort für Geschäftspartner oder Besucher zusätzlich attraktiv macht. Die Büroflächen profitieren von einer exzellenten Verkehrsanbindung. Über die nahe gelegene Bundesstraße B 27 ist in nur wenigen Fahrminuten die Autobahn A 8 (ca. 300 Meter von der Anschlussstelle entfernt) erreichbar, sodass der Stuttgarter Flughafen und die Messe bequem angefahren werden können. Auch die U-Bahn-Haltestelle "EnBW City", die nur etwa vier Gehminuten entfernt liegt, verbindet den Standort direkt mit dem Stuttgarter Hauptbahnhof und dem gesamten ÖPNV-Netz der Region. Von dort aus sind alle S-Bahn- und U-Bahnlinien verfügbar, sodass neben dem Flughafen, der Messe und den umliegenden Städten wie Herrenberg, Plochingen, Schorndorf, Filderstadt oder Bietigheim auch viele deutsche und europäische Metropolen über die Züge der Deutschen Bahn erreichbar sind.


Eckdaten

OBJEKTTYP
Büro/Praxis
ORT
Stuttgart
BÜRO- /PRAXIS­FLÄCHE IN M²
3.378
FLÄCHE TEILBAR AB (M²)
476
BAUJAHR
1991
PROVISION
provisionsfrei
OBJEKTNUMMER
EuG3216

LAGEKRITERIEN

ENTFERNUNG NÄCHSTER HAUPTBAHNHOF
10 KM
ENTFERNUNG NÄCHSTE AUTOBAHN
3.3 KM
ENTFERNUNG ZUM ZENTRUM
10 KM
ENTFERNUNG NÄCHSTER FLUGHAFEN
4.6 KM
Ausstattung / Objektdetails

Die Fläche besticht durch folgende Ausstattung:

  • Eine anpassbare Raumaufteilung
  • Arbeitsplatzgerechte Beleuchtungskörper
  • Abgehängte Decken
  • Datenvernetzung über Bodentanks
  • Anmietung von Stellplätzen im Außenbereich und in der Tiefgarage möglich
  • EDV-Verkabelung über Bodentanks
  • Serverraumkühlung teilweise vorhanden
  • Die Praxisfläche verfügt über einen eigenen OP Bereich
Bitte lassen Sie Cookies zu,
um eine Karte von Google Maps anzuzeigen.

Kontakt

SPRECHEN SIE UNS AN!

Das könnte Sie auch interessieren

Finden Sie die individuelle Immobilie
Einfach, schnell und diskret in der Direktsuche


© 2026 - E & G Real Estate GmbH