E & G IMMOBILIEN > Gewerbeimmobilien > Exklusiver Neubau mit hervorragender Anbindung und Top-Ausstattung!
Außenbild
Flughafen
Ausbaubeispiel
Ausbaubeispiel
Ausbaubeispiel
Ausbaubeispiel
Innenhof
Freiflächenplan 1.+2. Bauabschnitt
4. Obergeschoss_Nord_2.BA
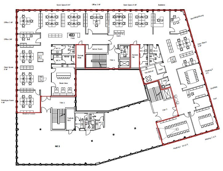
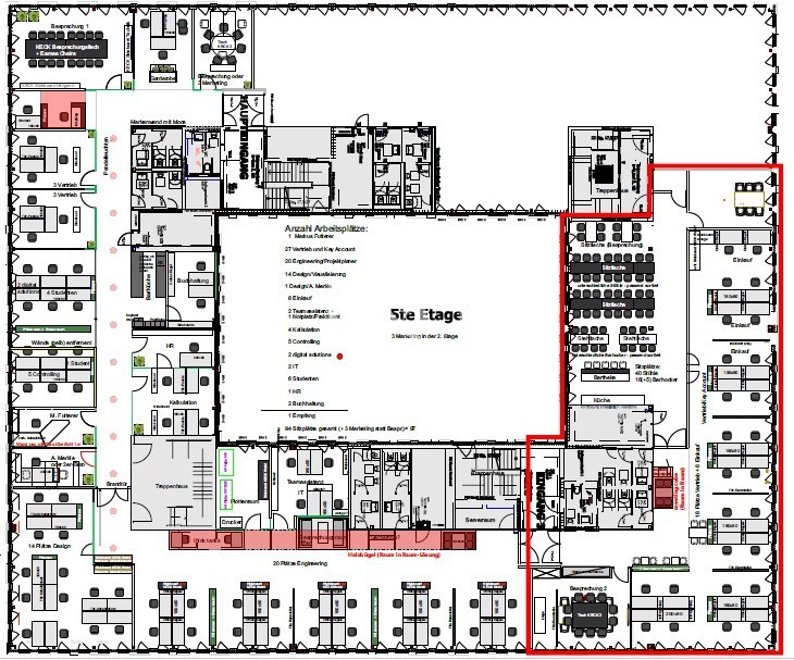
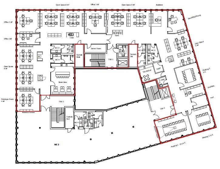
5. Obergeschoss
Außenbild
Außenbild
Flughafen
Ausbaubeispiel
Ausbaubeispiel
Ausbaubeispiel
Ausbaubeispiel
Innenhof
Freiflächenplan 1.+2. Bauabschnitt
4. Obergeschoss_Nord_2.BA
5. Obergeschoss
Außenbild

Exklusiver Neubau mit hervorragender Anbindung und Top-Ausstattung!

Stuttgart

21,00
Miete € pro m²
460
Fläche teilbar ab (m²)

Der Campus besteht aus einem fünfgeschossigen U-förmigen Bürogebäude, das in Stahlbeton-Skelettkonstruktion erbaut wurde. Das Gebäude besticht durch eine moderne Fassadengestaltung mit viel Glaselementen, einem repräsentativen Eingangsbereich und ein zentral angeordnetes Treppenhaus mit Personenaufzügen. Die Flächen werden hell gestaltet und es wird bei der Einrichtung auf hochwertige und zeitgemäße Material- und Ausstattungskomponenten geachtet. Eine hohe Energiekosteneffizienz steht mit im Vordergrund. Die Dachterrasse ist auf den Staffelgeschossen direkt zugänglich. Durch die großen Fensterfronten, die sich alle öffnen lassen, ist eine freundliche Atmosphäre gewährleistet. Ein modernes, in den Campus integriertes Parkhaus mit ca. 200 Stellplätzen befindet sich auf dem hinteren Teil des Grundstücks. Eine DGNB Gold Zertifizierung wird angestrebt. Mietflächen befinden sich im ausgebauten Zustand. 4. OG: ca. 895 m² 5. OG: ca. 460 m²


Eckdaten

OBJEKTTYP
Büro/Praxis
ORT
Stuttgart
BÜRO- /PRAXIS­FLÄCHE IN M²
1.355
FLÄCHE TEILBAR AB (M²)
460
PROVISION
provisionsfrei
OBJEKTNUMMER
EuG7480

LAGEKRITERIEN

ENTFERNUNG NÄCHSTER HAUPTBAHNHOF
10 KM
ENTFERNUNG NÄCHSTE AUTOBAHN
4.5 KM
ENTFERNUNG ZUM ZENTRUM
10 KM
ENTFERNUNG NÄCHSTER FLUGHAFEN
5 KM
Ausstattung / Objektdetails

Die Fläche besticht durch eine großzügige und hochwertige Ausstattung:

  • Begrünter Innenhof, sowie begrünte Dachterrasse
  • Lichte Raumhöhe (3 Meter)
  • Hohlraumböden mit Bodentanks
  • Klimaanlage
  • Außenliegender, elektrischer Sonnenschutz von Windwächter
  • 3 Personenaufzüge
  • Objekteigenes Parkhaus
  • Moderne Außenanlage
  • Schlingenteppich in den Büroräumen
  • Einlegeleuchten in den Büroräumen
  • 1 Bodentank mit 2 Doppelsteckdosen pro Doppelarbeitsplatz
  • Videosprechanlage mir 2 Zoll Monitor als Auftischgerät
  • Berührungslose Zutrittskontrolle mittels Transponder
  • Fenster mit 3-fach Verglasung
  • Hauseigenes Parkhaus
  • E Ladestationen für PKWHohlraumböden mit - Bodentanks

Außenliegender, elektrischer Sonnenschutz von Windwächter

  • 3 Personenaufzüge



  • Moderne Außenanlage

Schlingenteppich in den Büroräumen

Bitte lassen Sie Cookies zu,
um eine Karte von Google Maps anzuzeigen.

Kontakt

SPRECHEN SIE UNS AN!

Das könnte Sie auch interessieren

Finden Sie die individuelle Immobilie
Einfach, schnell und diskret in der Direktsuche


© 2026 - E & G Real Estate GmbH