E & G IMMOBILIEN > Gewerbeimmobilien > BÜROFLÄCHEN IM STEP 5
Titelbild
Luftbild
Eingang
Büro
Büro
Büro
Büro
Büro
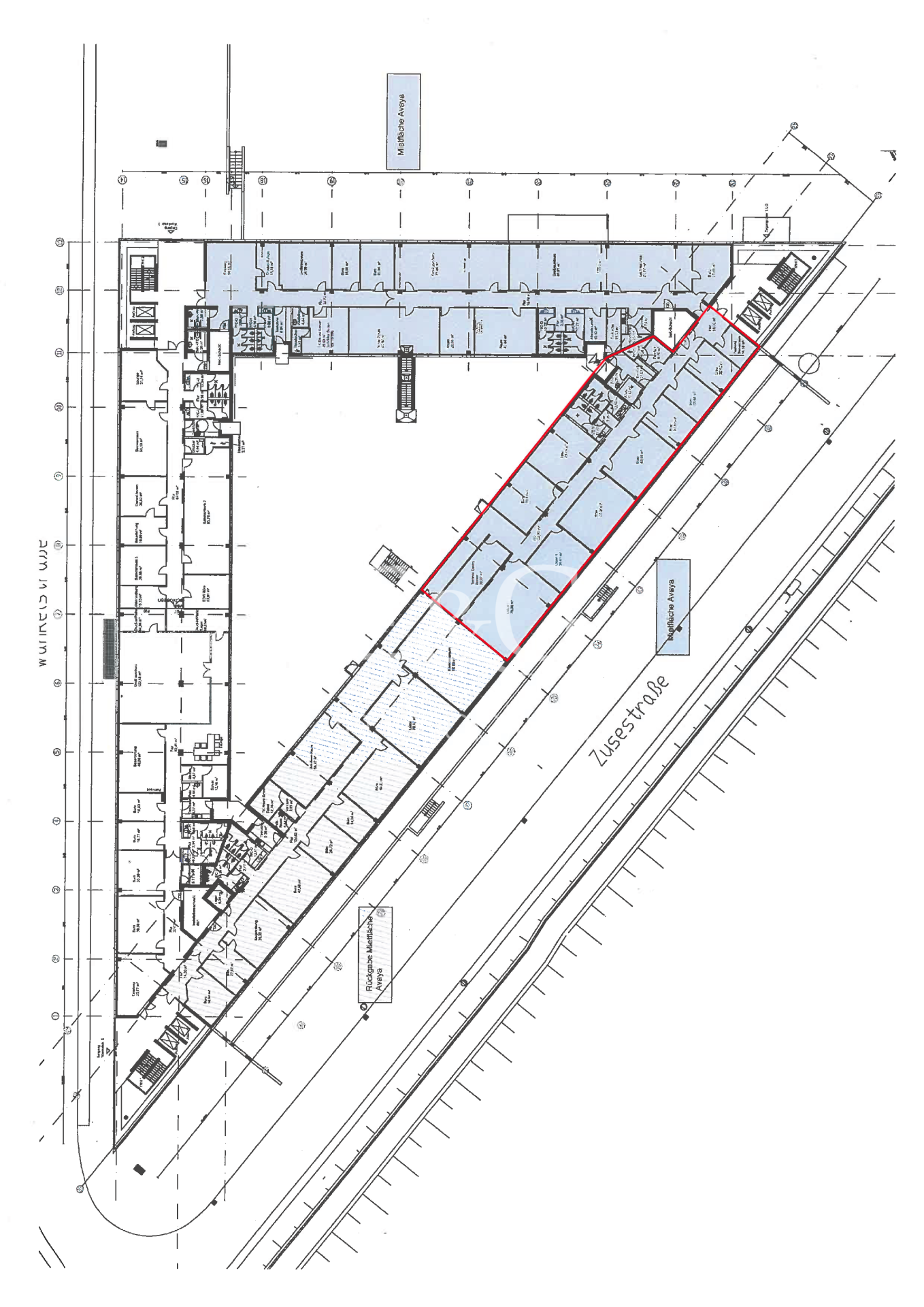
Erdgeschoss
1. Obergeschoss
3. Obergeschoss
Übersichtsplan STEP
Titelbild
Luftbild
Eingang
Büro
Büro
Büro
Büro
Büro
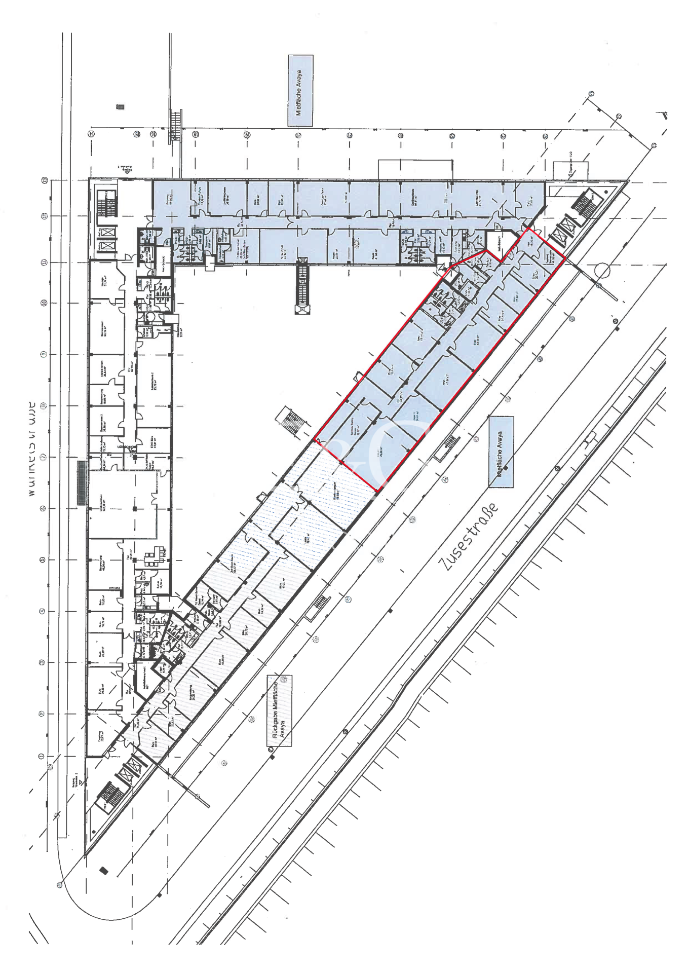
Erdgeschoss
1. Obergeschoss
3. Obergeschoss
Übersichtsplan STEP

BÜROFLÄCHEN IM STEP 5

Stuttgart

14,50
Miete € pro m²
500
Fläche teilbar ab (m²)

Die angebotene Bürofläche befindet sich im renommierten STEP Stuttgarter Engineering Park in Stuttgart-Vaihingen, einem etablierten Technologie- und Innovationsstandort mit ausgezeichneter Verkehrsanbindung. Die direkte Nähe zur S-Bahnhaltestelle Österfeld gewährleistet eine optimale Anbindung an das öffentliche Nahverkehrsnetz. Zusätzlich sorgt die angrenzende B 14 für eine schnelle Verbindung in die Stuttgarter Innenstadt, während der nahegelegene Autobahnanschluss an die A 831 eine direkte Weiterfahrt zum Autobahnkreuz Stuttgart ermöglicht. Die Kombination aus moderner Infrastruktur, hervorragender Erreichbarkeit und einem dynamischen Umfeld macht diese Bürofläche zu einem idealen Standort für Unternehmen, die Wert auf Effizienz und Vernetzung legen. Im Objekt aktuell verfügbare Flächen: EG - 567 m² 1. OG - 961 m² 1. OG - 798 m² 1. OG - 1.278 m² 2. OG - 782 m² 2. OG - 523 m² 3. OG - 961 m²


Eckdaten

OBJEKTTYP
Büro/Praxis
ORT
Stuttgart
BÜRO- /PRAXIS­FLÄCHE IN M²
5.870
FLÄCHE TEILBAR AB (M²)
500
BAUJAHR
2002
PROVISION
provisionsfrei
OBJEKTNUMMER
EuG1225

LAGEKRITERIEN

ENTFERNUNG NÄCHSTER HAUPTBAHNHOF
10.6 KM
ENTFERNUNG NÄCHSTE AUTOBAHN
2.5 KM
ENTFERNUNG NÄCHSTER FLUGHAFEN
10.4 KM
ENTFERNUNG NÄCHSTER BAHNHOF
1.3 KM
Ausstattung / Objektdetails

Das STEP 5 verfügt über eine hochqualitative Ausstattung:

  • Hohlraumboden mit Bodentanks
  • Teppichboden
  • Pendelleuchten
  • Teilweise Glaselemente
  • Personenaufzug
  • Hauseigene Tiefgarage
  • Betriebsrestaurant, Bistro, Konferenzbereich und - Fitnessstudio auf dem Areal
Bitte lassen Sie Cookies zu,
um eine Karte von Google Maps anzuzeigen.

Kontakt

SPRECHEN SIE UNS AN!

Das könnte Sie auch interessieren

Finden Sie die individuelle Immobilie
Einfach, schnell und diskret in der Direktsuche


© 2026 - E & G Real Estate GmbH