E & G IMMOBILIEN > Gewerbeimmobilien > Büroflächen Nahe Haltestelle "SOL"
Titelbild
Büro
Büro
Büro
Büro
Büro
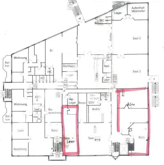
1. Obergeschoss
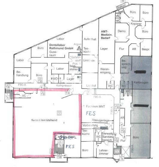
2. Obergeschoss
Büro
Titelbild
Büro
Büro
Büro
Büro
Büro
1. Obergeschoss
2. Obergeschoss
Büro

Büroflächen Nahe Haltestelle "SOL"

Holzgerlingen

9,50
Miete € pro m²
80
Fläche teilbar ab (m²)

Die Fläche befindet sich nahe Stuttgart in direkter Nähe zum größten Produktionswerk der Daimler AG Deutschland in Sindelfingen. Dies ist innerhalb von ca. 10 Fahrminuten erreichbar und liegt somit im Zielradius für Zulieferer und Dienstleister für den sequenziellen automotiven Sektor. Das Gewerbegebiet Buch/Sol ist ein ausgezeichneter Industrie- und Logistikstandort, nicht zuletzt durch die starke Präsenz der wichtigsten Konzerne Deutschlands. Die Liegenschaft ist optimal an die wichtigsten Verkehrswege angebunden. In unmittelbarer Nähe befinden sich nicht nur die A 81 sondern auch die B 464, welche ortsdurchgangsfrei ins Daimlerwerk Sindelfingen führt.


Eckdaten

OBJEKTTYP
Büro/Praxis
ORT
Holzgerlingen
BÜRO- /PRAXIS­FLÄCHE IN M²
552
FLÄCHE TEILBAR AB (M²)
80
BAUJAHR
1990
PROVISION
provisionsfrei
OBJEKTNUMMER
EuG7633

LAGEKRITERIEN

ENTFERNUNG NÄCHSTE AUTOBAHN
9 KM
ENTFERNUNG NÄCHSTER FLUGHAFEN
29.5 KM
Ausstattung / Objektdetails

Die Flächen verfügen über folgende Ausstattung:

Standard-AusstattungArchiv2. OG:Klimatisiert2 verglaste BesprechungszimmerPersonenaufzug

  • WC wird an den Nachbarn bezahlt, mtl. 20,00 EUR
  • Zur Schönbahnhaltestelle Sol, ca. 500 m
Bitte lassen Sie Cookies zu,
um eine Karte von Google Maps anzuzeigen.

Kontakt

SPRECHEN SIE UNS AN!

Das könnte Sie auch interessieren

Finden Sie die individuelle Immobilie
Einfach, schnell und diskret in der Direktsuche


© 2026 - E & G Real Estate GmbH