E & G IMMOBILIEN > Wohnimmobilien > Provisionsfrei: Modernes Reihenmittelhaus mit Gartengeschoss und Terrasse - Baubeginn Oktober
Außenvisualisierung
Küche/Innenvisualisierung
Außenvisualisierung
Ansicht
Ansicht
Ansicht3
Außenvisualisierung
Draufsicht
Innenvisualisierung
Innenvisualisierung
Außenvisualisierung
Grundriss-Skizze UG/EG/DG
Außenvisualisierung
Küche/Innenvisualisierung
Außenvisualisierung
Ansicht
Ansicht
Ansicht3
Außenvisualisierung
Draufsicht
Innenvisualisierung
Innenvisualisierung
Außenvisualisierung
Grundriss-Skizze UG/EG/DG

Provisionsfrei: Modernes Reihenmittelhaus mit Gartengeschoss und Terrasse - Baubeginn Oktober

Leinfelden-Echterdingen

675.000,00
Kaufpreis in €
128
Wohnfläche in ca. m²
133
Grundstücksfläche in ca. m²

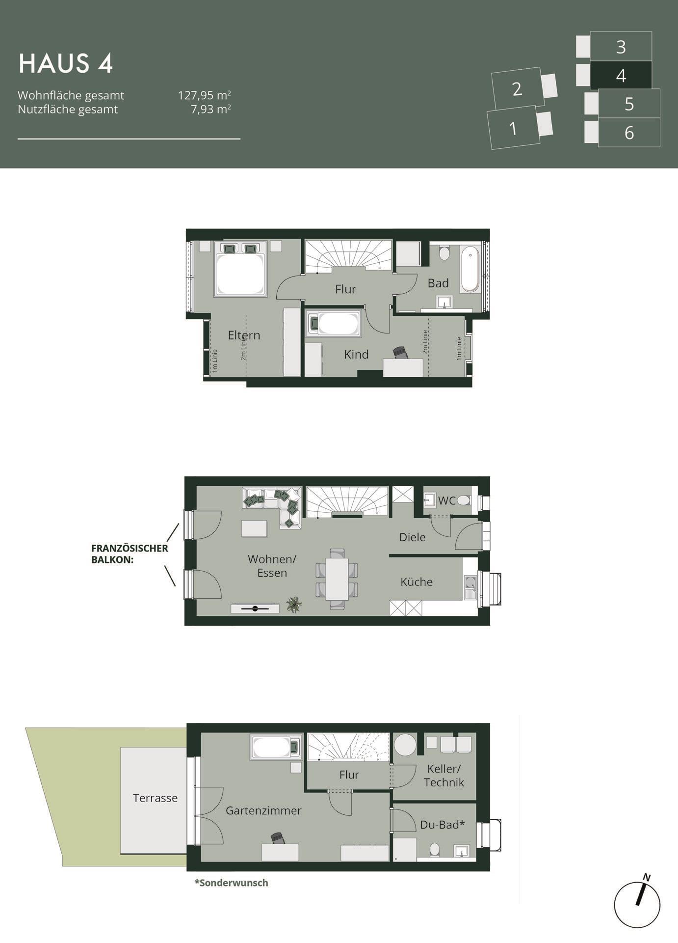
Im Neubauprojekt BÖ52 in Musberg entstehen 6 moderne Reihen- und Doppelhäuser mit klarer Architektur, hellen Räumen und viel Platz zum Wohlfühlen. Die großzügigen Wohnbereiche, privaten Gärten oder Dachterrassen und das ausbaufähige Dachstudio bieten Raum für Familie, Rückzug und gemeinsame Momente. Dank nachhaltiger Technik (KfW 40 QNG, PV-Anlage, Wärmepumpe) wohnen Sie nicht nur komfortabel, sondern auch zukunftssicher – und das provisionsfrei über uns als Vertriebspartner. Jetzt schnell sein! Jetzt Exposé anfordern und Besichtigungstermin vereinbaren! Haus 1 | DHH | Kaufpreis 845.000 EUR Wohnfläche ca. 152 m², Grundstücksfläche. ca. 199 m² Haus 3 | REH | Kaufpreis 745.000 EUR Wohnfläche. ca. 127 m², Grundstücksfläche. ca. 193 m² Haus 4| RMH | Kaufpreis 675.000 EUR Wohnfläche. ca. 128 m², Grundstücksfläche. ca. 133 m² Haus 5 | RMH | Kaufpreis 675.000 EUR Wohnfläche. ca. 128 m², Grundstücksfläche. ca. 135 m² Baubeginn: ca. Anfang Oktober 2025 Fertigstellung: ca. Ende 2026 *Einbauküche im Wert von 10.000 EUR inklusive! Bei höherem Kaufpreis trägt der Käufer die Differenz. Keine Barauszahlung oder Anrechnung möglich.


Eckdaten

OBJEKTTYP
Haus
ORT
Leinfelden-Echterdingen
ZIMMER
4.5
WOHNFLÄCHE IN CA M²
128
GRUNDSTÜCKSFLÄCHE IN CA M²
133
Terrasse / Balkon
Ja
PROVISION
provisionsfrei
OBJEKTNUMMER
EuG1-10010/G1/E4/Eh2
GEG (Gebäudeenergiegesetz): Die Erstellung des Energieausweises wird nach Fertigstellung des Gebäudes vom Bauherrn/Eigentümer beantragt.
Ausstattung / Objektdetails

Schlüsselfertig inklusive Keller und ausgebautem Gartenzimmer. Massive Bauweise Stein auf Stein und durch den TÜV abgenommene Handwerkerqualität. Die Parkierung ist ebenfalls schon im Festpreis inkludiert.

Wir arbeiten mit der Fa. Weisenburger Bau zusammen, die über 70 Jahre Erfahrung im Bau von Doppelhaus- und Reihenhäusern verfügt. Zudem finden Sie eine einzigartige Musterausstellung in Karlsruhe. Machen Sie sich einen ersten Eindruck unter: www.weisenburger.de/immobilienangebot/bemusterungszentrum-baustein

Die Häuser werden energetisch auf hohem Niveau errichtet und garantieren nachhaltig einen hohen Wohn- und Marktwert.

Der Baubeginn ist Anfang Oktober 2025 und aktuell können noch Ihre individuellen Sonderwünsche hinsichtlich der Ausstattung und der Grundrissplanung im Rahmen der Möglichkeiten berücksichtigt werden.

Die Ausstattungs-Highlights:

  • KfW 40 – mit QNG-Zertifizierung
  • Photovoltaikanlage & Luft-Wasser-Wärmepumpe
  • Fußbodenheizung in allen Wohnräumen
  • Bodengleiche Dusche
  • Elektrische Rollläden
  • Kunststofffenster mit Wärmeschutzverglasung
  • Massives Eichenparkett
  • Hochwertige Sanitärausstattung
  • Stellplatz
  • Ausgebautes Gartenzimmer
Bitte lassen Sie Cookies zu,
um eine Karte von Google Maps anzuzeigen.

Kontakt

SPRECHEN SIE UNS AN!

Das könnte Sie auch interessieren

Finden Sie Ihr neues Zuhause
Einfach, schnell und diskret in der Direktsuche


© 2025 - E & G Private Immobilien GmbH